Maison neuve, 82 m² - La Chapelle-Saint-Aubin (72650)
424 190 €
La Chapelle-Saint-Aubin (72650)
Proposée par MAISONS CONCEPT AGENCE DU MANS – 4 pièces - 3 chambres - terrain 851 m²
|
|
| Maisons Concept AGENCE DU MANS |
- Demande d'information
- Prendre rendez-vous
MAISON À CONSTRUIRE : ceci est une annonce d'une maison neuve à construire.
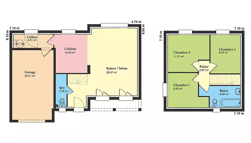
Nous vous proposons cette maison neuve, baptisée Tentation City, une demeure contemporaine à étage qui se distingue par son design unique et son adaptabilité à tous les environnements. Avec une surface habitable de 82 m², cette maison est conçue pour répondre aux besoins de confort et d'espace de ses résidents, offrant 3 chambres réparties dans un agencement de 3 pièces pensé pour maximiser l'espace et la luminosité.
Tentation City se caractérise par son garage intégré, une dalle d'étage en béton robuste et des combles aménagés, offrant ainsi un espace supplémentaire qui peut être adapté selon vos besoins. Conforme à la réglementation thermique RT2020, cette maison basse consommation est un choix idéal pour ceux qui cherchent à réduire leur empreinte écologique tout en bénéficiant d'un confort optimal toute l'année.
Les options les plus plébiscitées, telles que l'enduit bi-ton et les menuiseries en aluminium, ajoutent une touche d'élégance et de modernité à l'ensemble, permettant à chaque propriétaire de personnaliser sa maison selon ses goûts et préférences. La structure même de Tentation City rompt avec la monotonie des constructions contemporaines standards grâce à son jeu de hauteur et ses différents compartiments, ainsi qu'une galerie en façade qui lui confère une allure à la fois moderne et intemporelle.
Cette maison est non seulement modulable et personnalisable à volonté, mais elle est également conçue pour s'intégrer harmonieusement dans son environnement, reflétant ainsi un parfait équilibre entre innovation architecturale et respect de la nature.
Opter pour Tentation City, c'est choisir une maison qui allie esthétique, fonctionnalité et performance énergétique, le tout conforme à la nouvelle réglementation environnementale RE2020. C'est l'assurance de vivre dans un espace qui répond non seulement à vos attentes en matière de confort et de design, mais qui contribue également à la préservation de notre planète pour les générations futures.
Référence : 48327
Les informations sur les risques auxquels ce bien est exposé sont disponibles sur le site Géorisques : www.georisques.gouv.fr
Tentation City se caractérise par son garage intégré, une dalle d'étage en béton robuste et des combles aménagés, offrant ainsi un espace supplémentaire qui peut être adapté selon vos besoins. Conforme à la réglementation thermique RT2020, cette maison basse consommation est un choix idéal pour ceux qui cherchent à réduire leur empreinte écologique tout en bénéficiant d'un confort optimal toute l'année.
Les options les plus plébiscitées, telles que l'enduit bi-ton et les menuiseries en aluminium, ajoutent une touche d'élégance et de modernité à l'ensemble, permettant à chaque propriétaire de personnaliser sa maison selon ses goûts et préférences. La structure même de Tentation City rompt avec la monotonie des constructions contemporaines standards grâce à son jeu de hauteur et ses différents compartiments, ainsi qu'une galerie en façade qui lui confère une allure à la fois moderne et intemporelle.
Cette maison est non seulement modulable et personnalisable à volonté, mais elle est également conçue pour s'intégrer harmonieusement dans son environnement, reflétant ainsi un parfait équilibre entre innovation architecturale et respect de la nature.
Opter pour Tentation City, c'est choisir une maison qui allie esthétique, fonctionnalité et performance énergétique, le tout conforme à la nouvelle réglementation environnementale RE2020. C'est l'assurance de vivre dans un espace qui répond non seulement à vos attentes en matière de confort et de design, mais qui contribue également à la préservation de notre planète pour les générations futures.
Référence : 48327
Les informations sur les risques auxquels ce bien est exposé sont disponibles sur le site Géorisques : www.georisques.gouv.fr
- Prix
-
- Prix total : 424 190 €
- Prix du modèle de maison : 179 990 €
- Prix du terrain : 244 200 €
- Terrain
-
- Surface : 851 m²
- Maison
-
- Surface : 82 m²
- Pièces : 4
- Chambres : 3
- Être rappelé par un conseiller
- Demander plus d’infos
- Demande d'information
La Chapelle-Saint-Aubin (72650)
Maisons à proximité
Maison neuve, 97 m²
La Chapelle-Saint-Aubin (72650)
La Chapelle-Saint-Aubin (72650)
Maison de 4 pièces
Maison neuve, 73 m²
Saint-Pavace (72190)
Saint-Pavace (72190)
Maison de 4 pièces
Maison neuve
Saint-Pavace (72190)
Saint-Pavace (72190)
Maison de 3 pièces
Maison neuve, 120 m²
Saint-Saturnin (72650)
Saint-Saturnin (72650)
Maison de 4 pièces
Maison neuve, 68 m²
Saint-Saturnin (72650)
Saint-Saturnin (72650)
Maison de 3 pièces
Maison neuve, 87 m²
Saint-Saturnin (72650)
Saint-Saturnin (72650)
Maison de 4 pièces
Programmes à proximité
Néméa Le Mans Université
Le Mans (72000)
Le Mans (72000)
Appartements de 1 pièce
Livraison 2ème trimestre 2027
HARMONIE
Le Mans (72000)
Le Mans (72000)
Appartement de 4 pièces
Livraison 2ème trimestre 2026
LES BOSQUETS TR.1
Le Mans (72000)
Le Mans (72000)
Appartements de 1 à 4 pièces
Livraison 4ème trimestre 2027
Epsilon
Le Mans (72000)
Le Mans (72000)
Appartements de 1 à 3 pièces
Livraison 4ème trimestre 2027
Contacter MAISONS CONCEPT AGENCE DU MANS pour recevoir plus d'informations
Remplissez le formulaire ci-dessous, vos informations sont transmises directement au constructeur qui vous contactera par email ou par téléphone afin de traiter votre demande. En savoir plus.
Voir tous nos programmes immobiliers neufs à La Chapelle-Saint-Aubin