Maison neuve, 59 m² - Jouques (13490)

298 000 €
Jouques (13490)

Proposée par AZUR & CONSTRUCTIONS – 3 pièces - 2 chambres - terrain 804 m²

AZUR & CONSTRUCTIONS
AZUR & CONSTRUCTIONS
  • Demande d'information
MAISON À CONSTRUIRE : ceci est une annonce d'une maison neuve à construire.
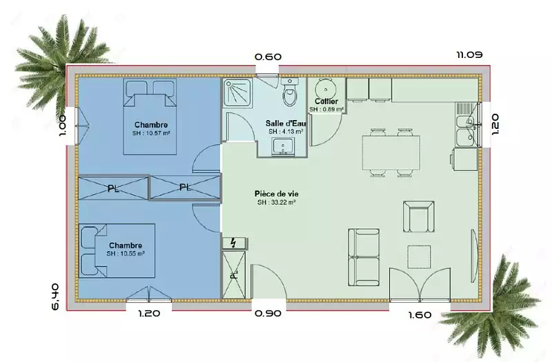
VENTE : maison T3 (59 m²) à Jouques
Emplacement privilégié - À Jouques (13490), maison neuve en vente de 3 pièces, 59 m² et 804 m² de terrain. Son intérieur dispose de deux chambres, d'une cuisine et d'une salle de bains.
À proximité : gare (Meyrargues), écoles, tennis, commerces, boulangeries, épicerie, boucheries-charcuteries et bureau de poste. Marché Place des Anciens Comb le dimanche matin. Autoroutes A51 et A8 et nationale N296 accessibles à 18 km. Mer Méditerranée à 45 km. Aix-en-Provence à 24 km.
Le prix de vente de cette maison de 3 pièces est de 298 000 €.
N'hésitez pas à prendre contact avec Anthony ANGELI (06-18-28-79-40) pour obtenir de plus amples informations sur la maison.
Référence : AA2334621_2
Terrain proposé par un partenaire foncier selon disponibilités et autorisation de publicité au prix de 185 000 €. Hors droit d'enregistrement et frais de notaire. Terrain + Maison proposés au prix de 113 000 € (Hors branchements et raccordements, papiers peints, peintures, revêtement de sol dans les chambres. Tarif modifiable sans préavis). Etiquette énergie : A. Différents modèles disponibles pour ce terrain. Assurances et garanties du constructeur (RC professionnelle, décennale, dommage ouvrage, garantie de remboursement de l'acompte, livraison à prix et délai convenu) : https://www.azur-et-constructions.com/mentions-legales/.

Les informations sur les risques auxquels ce bien est exposé sont disponibles sur le site Géorisques : www.georisques.gouv.fr


Prix
  • Prix total : 298 000 €
  • Prix du modèle de maison : 113 000 €
  • Prix du terrain : 185 000 €

Terrain
  • Surface : 804 m²

Maison
  • Surface : 59 m²
  • Pièces : 3
  • Chambres : 2

  • Être rappelé par un conseiller
  • Demander plus d’infos
  • Demande d'information
Jouques (13490)

Programmes à proximité

PARC CARLOTTA
PARC CARLOTTA
Aix-en-Provence (13100)

Appartements de 4 pièces
Livraison 3ème trimestre 2026

Les Bastides de Célony
Les Bastides de Célony
Aix-en-Provence (13100)

Appartements de 3 à 4 pièces
Livraison 2ème trimestre 2025

Domaine Saint Marc
Domaine Saint Marc
Aix-en-Provence (13100)

Appartements de 3 à 4 pièces
Livraison 2ème trimestre 2025

PROCHAINEMENT TRETS BRS
PROCHAINEMENT TRETS BRS
Trets (13530)

Appartements de 2 à 4 pièces
Livraison 2ème trimestre 2028

Domaine de l'Oratoire
Domaine de l'Oratoire
Aix-en-Provence (13090)

Appartements de 3 à 4 pièces et maisons de 4 à 5 pièces
Livraison 4ème trimestre 2026

Contacter AZUR & CONSTRUCTIONS pour recevoir plus d'informations

Remplissez le formulaire ci-dessous, vos informations sont transmises directement au constructeur qui vous contactera par email ou par téléphone afin de traiter votre demande. En savoir plus.

Voir tous nos programmes immobiliers neufs à Jouques