Maison neuve, 113 m² - Igney (88150)
250 270 €
Igney (88150)
Proposée par BATILOR AGENCE D’ EPINAL (88000) – VOSGES – RÉGION – 5 pièces - 4 chambres - terrain 1 870 m²
|
|
| Batilor Agence d’ Epinal (88000) – Vosges – Région |
- Demande d'information
- Prendre rendez-vous
MAISON À CONSTRUIRE : ceci est une annonce d'une maison neuve à construire.
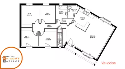
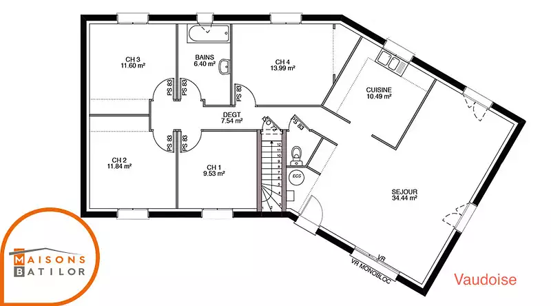
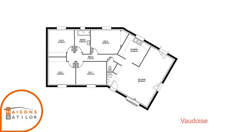
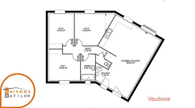
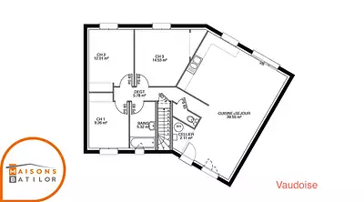
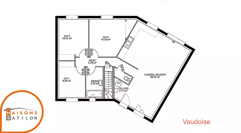
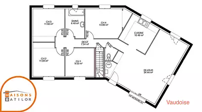
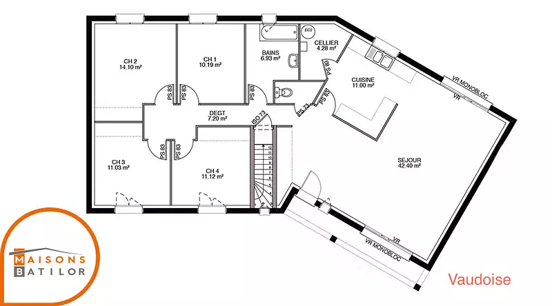
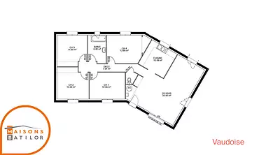
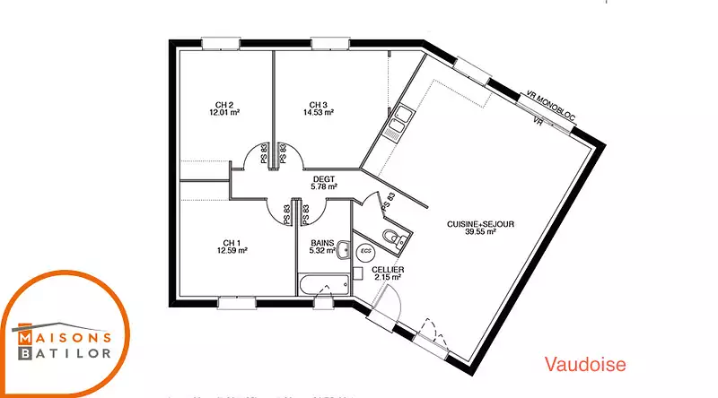
Nous vous proposons cette maison neuve, baptisée Vaudoise, qui allie avec brio l'esthétique d'une maison en V au côté pratique d'une maison traditionnelle à étage. Conçue pour répondre aux attentes des familles modernes, la Vaudoise offre une surface habitable de 113 m², parfaitement répartie pour maximiser le confort et l'espace de vie.
Cette demeure se distingue par ses 4 chambres spacieuses, permettant à chaque membre de la famille de bénéficier de son propre espace, et ses 4 pièces lumineuses qui invitent à la convivialité et au partage. Les combles aménageables offrent un potentiel supplémentaire pour créer un espace personnalisé selon vos besoins, qu'il s'agisse d'une salle de jeux, d'un bureau ou d'une chambre supplémentaire.
La Vaudoise est également équipée de deux salles de bains, garantissant ainsi une fonctionnalité optimale lors des routines matinales ou des moments de détente. Les grandes pièces, pensées pour le bien-être de ses habitants, favorisent une circulation fluide et une ambiance agréable tout au long de l'année.
Parmi les options les plus plébiscitées par nos clients, la Vaudoise répond aux exigences de la basse consommation et est conforme à la norme RE2020, assurant ainsi une efficacité énergétique de premier ordre. Cette maison neuve est donc non seulement un choix respectueux de l'environnement, mais elle permet également de réaliser des économies significatives sur les factures d'énergie.
La Vaudoise est une invitation à vivre dans une maison qui respecte à la fois l'environnement et les besoins de ses occupants. Avec ses caractéristiques soigneusement pensées et ses options répondant aux demandes les plus exigeantes, cette maison est le choix idéal pour ceux qui cherchent à allier confort, esthétique et performance énergétique. Faites le premier pas vers la maison de vos rêves en choisissant la Vaudoise.
Référence : 23401
Les informations sur les risques auxquels ce bien est exposé sont disponibles sur le site Géorisques : www.georisques.gouv.fr
Cette demeure se distingue par ses 4 chambres spacieuses, permettant à chaque membre de la famille de bénéficier de son propre espace, et ses 4 pièces lumineuses qui invitent à la convivialité et au partage. Les combles aménageables offrent un potentiel supplémentaire pour créer un espace personnalisé selon vos besoins, qu'il s'agisse d'une salle de jeux, d'un bureau ou d'une chambre supplémentaire.
La Vaudoise est également équipée de deux salles de bains, garantissant ainsi une fonctionnalité optimale lors des routines matinales ou des moments de détente. Les grandes pièces, pensées pour le bien-être de ses habitants, favorisent une circulation fluide et une ambiance agréable tout au long de l'année.
Parmi les options les plus plébiscitées par nos clients, la Vaudoise répond aux exigences de la basse consommation et est conforme à la norme RE2020, assurant ainsi une efficacité énergétique de premier ordre. Cette maison neuve est donc non seulement un choix respectueux de l'environnement, mais elle permet également de réaliser des économies significatives sur les factures d'énergie.
La Vaudoise est une invitation à vivre dans une maison qui respecte à la fois l'environnement et les besoins de ses occupants. Avec ses caractéristiques soigneusement pensées et ses options répondant aux demandes les plus exigeantes, cette maison est le choix idéal pour ceux qui cherchent à allier confort, esthétique et performance énergétique. Faites le premier pas vers la maison de vos rêves en choisissant la Vaudoise.
Référence : 23401
Les informations sur les risques auxquels ce bien est exposé sont disponibles sur le site Géorisques : www.georisques.gouv.fr
- Prix
-
- Prix total : 250 270 €
- Prix du modèle de maison : 165 270 €
- Prix du terrain : 85 000 €
- Terrain
-
- Surface : 1 870 m²
- Maison
-
- Surface : 113 m²
- Pièces : 5
- Chambres : 4
- Être rappelé par un conseiller
- Demander plus d’infos
- Demande d'information
Igney (88150)
Maisons à proximité
Maison neuve, 108 m²
Bouxières-aux-Bois (88270)
Bouxières-aux-Bois (88270)
Maison de 5 pièces
Maison neuve, 109 m²
Sercoeur (88600)
Sercoeur (88600)
Maison de 5 pièces
Maison neuve, 135 m²
Sercoeur (88600)
Sercoeur (88600)
Maison de 5 pièces
Maison neuve, 80 m²
Sercoeur (88600)
Sercoeur (88600)
Maison de 4 pièces
Maison neuve, 106 m²
Sercoeur (88600)
Sercoeur (88600)
Maison de 4 pièces
Maison neuve, 75 m²
Epinal (88000)
Epinal (88000)
Maison de 4 pièces
Programmes à proximité
Contacter BATILOR AGENCE D’ EPINAL (88000) – VOSGES – RÉGION pour recevoir plus d'informations
Remplissez le formulaire ci-dessous, vos informations sont transmises directement au constructeur qui vous contactera par email ou par téléphone afin de traiter votre demande. En savoir plus.