Maison neuve, 119 m² - Hôpital-Camfrout (29460)

318 672 €
Hôpital-Camfrout (29460)

Proposée par MAISONS DE L'AVENIR – 6 pièces - 5 chambres - terrain 670 m²

MAISONS DE L'AVENIR
MAISONS DE L'AVENIR
(63 avis)
  • Demande d'information
MAISON À CONSTRUIRE : ceci est une annonce d'une maison neuve à construire.
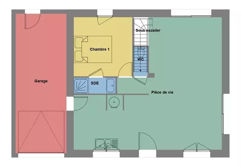
Hôpital-Camfrout : maison F6 (119 m²) à vendre
Proche de Brest - À Hôpital-Camfrout (29460), maison neuve en vente de 6 pièces, 2 niveaux, 119 m² de surface sur 670 m² de terrain. Elle est composée de cinq chambres, d'une cuisine et de deux salles de bains.
Le prix de vente de cette maison de 6 pièces est de 318 672 €.
Contactez Aurélie CAGNARD pour toute question sur la maison ou sur les modalités de vente.
Référence : AC2412651_2
Terrain proposé par un partenaire foncier selon disponibilités et autorisation de publicité au prix de 49 820 €. Hors droit d'enregistrement et frais de notaire. Terrain + Maison proposés au prix de 268 852 € (Hors branchements et raccordements, papiers peints, peintures, revêtement de sol dans les chambres. Tarif modifiable sans préavis). Etiquette énergie : A. Différents modèles disponibles pour ce terrain. Assurances et garanties du constructeur (RC professionnelle, décennale, dommage ouvrage, garantie de remboursement de l'acompte, livraison à prix et délai convenu) : https://www.maisonsdelavenir.com/mentions-legales/.

Les informations sur les risques auxquels ce bien est exposé sont disponibles sur le site Géorisques : www.georisques.gouv.fr


Prix
  • Prix total : 318 672 €
  • Prix du modèle de maison : 268 852 €
  • Prix du terrain : 49 820 €

Terrain
  • Surface : 670 m²

Maison
  • Surface : 119 m²
  • Pièces : 6
  • Chambres : 5
  • Garage : 1

  • Être rappelé par un conseiller
  • Demander plus d’infos
  • Demande d'information
Hôpital-Camfrout (29460)

Programmes à proximité

QUAI ELORN
QUAI ELORN
Landerneau (29800)

Appartements de 3 à 4 pièces
Livraison 2ème trimestre 2027

KOYA 3
KOYA 3
Guipavas (29490)

Appartements de 2 pièces
Livraison 2ème trimestre 2028

KOYA 2
KOYA 2
Guipavas (29490)

Appartements de 3 à 4 pièces
Livraison 1er trimestre 2027

LE TALISMAN
LE TALISMAN
Brest (29200)

Appartements de 2 à 4 pièces
Livraison 2ème trimestre 2028

IROISE
IROISE
Brest (29200)

Appartements de 2 à 4 pièces

Les Allées de la plage
Les Allées de la plage
Brest (29200)

Appartements de 3 à 4 pièces
Livraison 1er trimestre 2027

Contacter MAISONS DE L'AVENIR pour recevoir plus d'informations

Remplissez le formulaire ci-dessous, vos informations sont transmises directement au constructeur qui vous contactera par email ou par téléphone afin de traiter votre demande. En savoir plus.

Voir tous nos programmes immobiliers neufs à Hôpital-Camfrout