Maison neuve, 81 m² - Han-devant-Pierrepont (54620)
233 318 €
Han-devant-Pierrepont (54620)
Proposée par MAISONS VESTA AGENCE DE YUTZ (57) – 4 pièces - 3 chambres - terrain 510 m²
|
|
| Maisons Vesta Agence de Yutz (57) |
- Demande d'information
- Prendre rendez-vous
MAISON À CONSTRUIRE : ceci est une annonce d'une maison neuve à construire.
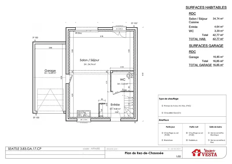
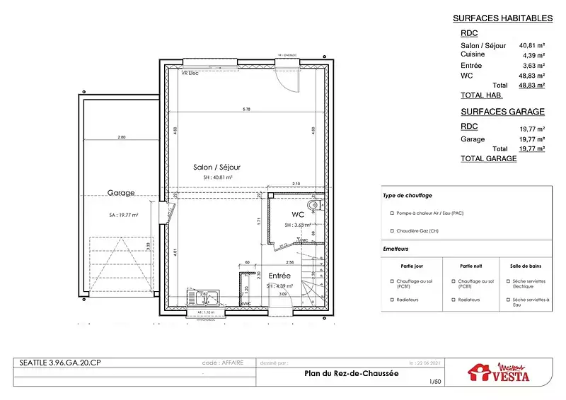
Sur ce terrain, nous vous proposons cette maison neuve : le modèle SEATTLE, conçu par Maisons Vesta. Avec une surface de 81 m², cette maison à étage offre un excellent rapport qualité/prix et s'adapte parfaitement aux terrains avec une façade courte.
Dès l'entrée, vous serez séduit par un espace salon/séjour/cuisine ouverte, entièrement modulable selon vos goûts et vos besoins. Le rez-de-chaussée comprend également un WC indépendant et un cellier, ajoutant une touche de praticité à votre quotidien.
À l'étage, vous découvrirez trois chambres spacieuses, chacune conçue pour intégrer un dressing sur mesure, offrant ainsi un espace de rangement optimal. La partie nuit est complétée par un second WC indépendant et une très grande salle de bain, équipée pour accueillir à la fois une baignoire, une douche et une double vasque, idéale pour les matins animés des familles actives.
Cette maison neuve est basse consommation et conforme à la RE2020, garantissant ainsi des performances énergétiques optimales et un confort de vie inégalé.
Ne manquez pas cette opportunité unique de devenir propriétaire d'une maison moderne, fonctionnelle et éco-responsable avec Maisons Vesta. Contactez-nous dès aujourd'hui pour plus d'informations et pour découvrir les différentes configurations disponibles selon la surface désirée.
Référence : 6062
Les informations sur les risques auxquels ce bien est exposé sont disponibles sur le site Géorisques : www.georisques.gouv.fr
Dès l'entrée, vous serez séduit par un espace salon/séjour/cuisine ouverte, entièrement modulable selon vos goûts et vos besoins. Le rez-de-chaussée comprend également un WC indépendant et un cellier, ajoutant une touche de praticité à votre quotidien.
À l'étage, vous découvrirez trois chambres spacieuses, chacune conçue pour intégrer un dressing sur mesure, offrant ainsi un espace de rangement optimal. La partie nuit est complétée par un second WC indépendant et une très grande salle de bain, équipée pour accueillir à la fois une baignoire, une douche et une double vasque, idéale pour les matins animés des familles actives.
Cette maison neuve est basse consommation et conforme à la RE2020, garantissant ainsi des performances énergétiques optimales et un confort de vie inégalé.
Ne manquez pas cette opportunité unique de devenir propriétaire d'une maison moderne, fonctionnelle et éco-responsable avec Maisons Vesta. Contactez-nous dès aujourd'hui pour plus d'informations et pour découvrir les différentes configurations disponibles selon la surface désirée.
Référence : 6062
Les informations sur les risques auxquels ce bien est exposé sont disponibles sur le site Géorisques : www.georisques.gouv.fr
- Prix
-
- Prix total : 233 318 €
- Prix du modèle de maison : 164 318 €
- Prix du terrain : 69 000 €
- Terrain
-
- Surface : 510 m²
- Maison
-
- Surface : 81 m²
- Pièces : 4
- Chambres : 3
- Être rappelé par un conseiller
- Demander plus d’infos
- Demande d'information
Han-devant-Pierrepont (54620)
Maisons à proximité
Maison neuve, 92 m²
Han-devant-Pierrepont (54620)
Han-devant-Pierrepont (54620)
Maison de 5 pièces
Maison neuve, 90 m²
Han-devant-Pierrepont (54620)
Han-devant-Pierrepont (54620)
Maison de 4 pièces
Maison neuve, 100 m²
Pierrepont (54620)
Pierrepont (54620)
Maison de 6 pièces
Maison neuve, 100 m²
Pierrepont (54620)
Pierrepont (54620)
Maison de 6 pièces
Maison neuve, 90 m²
Pierrepont (54620)
Pierrepont (54620)
Maison de 5 pièces
Maison neuve, 100 m²
Doncourt-lès-Longuyon (54620)
Doncourt-lès-Longuyon (54620)
Maison de 6 pièces
Programmes à proximité
Le Domaine Haut-Jardin
Villerupt (54190)
Villerupt (54190)
Appartements de 2 à 4 pièces
ALTER EGO
Rédange (57390)
Rédange (57390)
Appartements de 3 à 4 pièces
Livraison 2ème trimestre 2027
Cœur d'Opale
Audun-le-Tiche (57390)
Audun-le-Tiche (57390)
Appartements de 2 à 4 pièces
Villa Ève
Angevillers (57440)
Angevillers (57440)
Appartements de 3 à 4 pièces
Contacter MAISONS VESTA AGENCE DE YUTZ (57) pour recevoir plus d'informations
Remplissez le formulaire ci-dessous, vos informations sont transmises directement au constructeur qui vous contactera par email ou par téléphone afin de traiter votre demande. En savoir plus.
Voir tous nos programmes immobiliers neufs à Han-devant-Pierrepont