Maison neuve, 100 m² - Guérigny (58130)
223 291 €
Guérigny (58130)
Proposée par STYL HABITAT AGENCE DE VARENNES-VAUZELLES / NEVERS – 5 pièces - 4 chambres - terrain 1 360 m²
|
|
| Styl habitat Agence de Varennes-Vauzelles / Nevers |
- Demande d'information
- Prendre rendez-vous
MAISON À CONSTRUIRE : ceci est une annonce d'une maison neuve à construire.
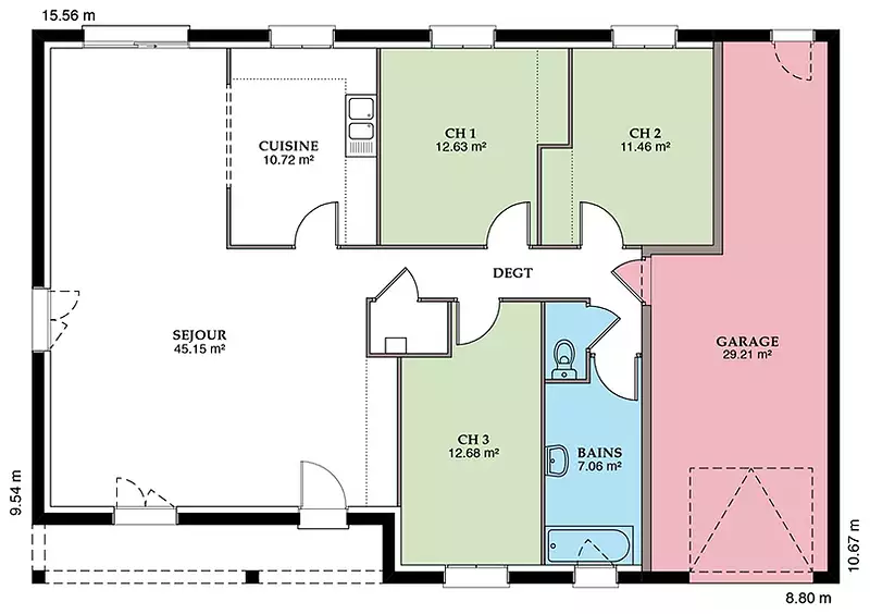
Nous vous proposons cette maison neuve, baptisée ""Menilière"", un modèle de construction qui allie élégance et fonctionnalité, conçu pour répondre aux attentes des familles modernes. Avec une surface habitable de 100 m², cette maison est pensée pour offrir confort et bien-être à ses occupants.
La Menilière se distingue par son architecture soignée, disponible en versions à 2 ou 4 pans, permettant ainsi de s'adapter à vos préférences esthétiques et aux spécificités de votre terrain. Son design extérieur, à la fois contemporain et intemporel, promet de s'intégrer harmonieusement dans son environnement.
Cette maison est composée de 4 pièces judicieusement réparties, incluant 4 chambres spacieuses, garantissant ainsi un espace privé confortable pour chaque membre de la famille. L'agencement intérieur est conçu pour maximiser l'espace de vie commun, favorisant les moments de convivialité et le bien-être quotidien.
L'un des atouts majeurs de la Menilière est son garage intégré, offrant non seulement un espace de stationnement sécurisé pour votre véhicule mais aussi un espace de rangement supplémentaire, essentiel pour une maison ordonnée et fonctionnelle.
Soucieux de l'environnement et de votre confort, nous avons conçu la Menilière pour être une maison basse consommation, conforme à la réglementation environnementale RE2020. Cette norme garantit une efficacité énergétique optimale, réduisant ainsi vos factures d'énergie tout en contribuant à la protection de l'environnement. Grâce à une isolation performante, un système de chauffage économique et une conception orientée vers l'efficacité énergétique, la Menilière vous promet un habitat sain, confortable et respectueux de la planète.
Choisir la Menilière, c'est opter pour une maison neuve qui répond à vos exigences de confort, de style et de durabilité. Nous vous invitons à nous contacter pour plus d'informations sur ce modèle exceptionnel et pour débuter ensemble le projet de construction de la maison de
Référence : 13373
Les informations sur les risques auxquels ce bien est exposé sont disponibles sur le site Géorisques : www.georisques.gouv.fr
La Menilière se distingue par son architecture soignée, disponible en versions à 2 ou 4 pans, permettant ainsi de s'adapter à vos préférences esthétiques et aux spécificités de votre terrain. Son design extérieur, à la fois contemporain et intemporel, promet de s'intégrer harmonieusement dans son environnement.
Cette maison est composée de 4 pièces judicieusement réparties, incluant 4 chambres spacieuses, garantissant ainsi un espace privé confortable pour chaque membre de la famille. L'agencement intérieur est conçu pour maximiser l'espace de vie commun, favorisant les moments de convivialité et le bien-être quotidien.
L'un des atouts majeurs de la Menilière est son garage intégré, offrant non seulement un espace de stationnement sécurisé pour votre véhicule mais aussi un espace de rangement supplémentaire, essentiel pour une maison ordonnée et fonctionnelle.
Soucieux de l'environnement et de votre confort, nous avons conçu la Menilière pour être une maison basse consommation, conforme à la réglementation environnementale RE2020. Cette norme garantit une efficacité énergétique optimale, réduisant ainsi vos factures d'énergie tout en contribuant à la protection de l'environnement. Grâce à une isolation performante, un système de chauffage économique et une conception orientée vers l'efficacité énergétique, la Menilière vous promet un habitat sain, confortable et respectueux de la planète.
Choisir la Menilière, c'est opter pour une maison neuve qui répond à vos exigences de confort, de style et de durabilité. Nous vous invitons à nous contacter pour plus d'informations sur ce modèle exceptionnel et pour débuter ensemble le projet de construction de la maison de
Référence : 13373
Les informations sur les risques auxquels ce bien est exposé sont disponibles sur le site Géorisques : www.georisques.gouv.fr
- Prix
-
- Prix total : 223 291 €
- Prix du modèle de maison : 162 291 €
- Prix du terrain : 61 000 €
- Terrain
-
- Surface : 1 360 m²
- Maison
-
- Surface : 100 m²
- Pièces : 5
- Chambres : 4
- Être rappelé par un conseiller
- Demander plus d’infos
- Demande d'information
Guérigny (58130)
Maisons à proximité
Maison neuve, 108 m²
Guérigny (58130)
Guérigny (58130)
Maison de 5 pièces
Maison neuve, 90 m²
Guérigny (58130)
Guérigny (58130)
Maison de 5 pièces
Maison neuve, 87 m²
Parigny-les-Vaux (58320)
Parigny-les-Vaux (58320)
Maison de 4 pièces
Maison neuve, 73 m²
Urzy (58130)
Urzy (58130)
Maison de 4 pièces
Maison neuve, 131 m²
Poiseux (58130)
Poiseux (58130)
Maison de 5 pièces
Maison neuve, 109 m²
Saint-Aubin-les-Forges (58130)
Saint-Aubin-les-Forges (58130)
Maison de 5 pièces
Programmes à proximité
Contacter STYL HABITAT AGENCE DE VARENNES-VAUZELLES / NEVERS pour recevoir plus d'informations
Remplissez le formulaire ci-dessous, vos informations sont transmises directement au constructeur qui vous contactera par email ou par téléphone afin de traiter votre demande. En savoir plus.