Maison neuve, 97 m² - Griselles (45210)
212 352 €
Griselles (45210)
Proposée par BABEAU SEGUIN AGENCE DE NEMOURS (77140) – SEINE ET – 4 pièces - 3 chambres - terrain 1 202 m²
|
|
| Babeau Seguin Agence de Nemours (77140) – Seine et |
- Demande d'information
- Prendre rendez-vous
MAISON À CONSTRUIRE : ceci est une annonce d'une maison neuve à construire.
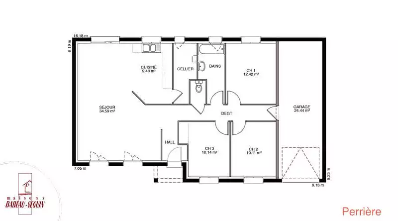
Sur ce terrain, nous vous proposons cette maison neuve Perrière de 97 m². Ce modèle design de plain-pied possède deux hauteurs de toits qui cassent la monotonie de la façade, offrant ainsi une esthétique moderne et attrayante. Avec ses 3 chambres et ses 4 pièces, cette maison familiale par excellence saura vous séduire.
La Perrière est une maison traditionnelle possédant une avancée de toit qui vient protéger les portes-fenêtres de la façade avant et la porte d’entrée. Ce modèle peut être agrémenté d’un garage ou d’un sous-sol disponible en option, selon vos besoins et préférences.
Construite par Babeau-Seguin, constructeur offrant le meilleur rapport qualité/prix du marché, cette maison neuve est basse consommation et conforme à la RE2020, garantissant ainsi des performances énergétiques optimales et un confort de vie inégalé.
Disposant d'un très bon rapport qualité/prix et de tout le savoir-faire Babeau-Seguin, la Perrière est un modèle de maison à prix réduit sans pour autant être une maison low-cost. Cerise sur le gâteau ? Le plan est personnalisable en fonction de votre mode de vie !
Ne manquez pas cette opportunité unique de construire la maison de vos rêves sur ce terrain. Contactez-nous dès maintenant pour plus d'informations et pour découvrir toutes les options disponibles pour personnaliser votre future maison Perrière.
Référence : 91973
Les informations sur les risques auxquels ce bien est exposé sont disponibles sur le site Géorisques : www.georisques.gouv.fr
La Perrière est une maison traditionnelle possédant une avancée de toit qui vient protéger les portes-fenêtres de la façade avant et la porte d’entrée. Ce modèle peut être agrémenté d’un garage ou d’un sous-sol disponible en option, selon vos besoins et préférences.
Construite par Babeau-Seguin, constructeur offrant le meilleur rapport qualité/prix du marché, cette maison neuve est basse consommation et conforme à la RE2020, garantissant ainsi des performances énergétiques optimales et un confort de vie inégalé.
Disposant d'un très bon rapport qualité/prix et de tout le savoir-faire Babeau-Seguin, la Perrière est un modèle de maison à prix réduit sans pour autant être une maison low-cost. Cerise sur le gâteau ? Le plan est personnalisable en fonction de votre mode de vie !
Ne manquez pas cette opportunité unique de construire la maison de vos rêves sur ce terrain. Contactez-nous dès maintenant pour plus d'informations et pour découvrir toutes les options disponibles pour personnaliser votre future maison Perrière.
Référence : 91973
Les informations sur les risques auxquels ce bien est exposé sont disponibles sur le site Géorisques : www.georisques.gouv.fr
- Prix
-
- Prix total : 212 352 €
- Prix du modèle de maison : 157 272 €
- Prix du terrain : 55 080 €
- Terrain
-
- Surface : 1 202 m²
- Maison
-
- Surface : 97 m²
- Pièces : 4
- Chambres : 3
- Être rappelé par un conseiller
- Demander plus d’infos
- Demande d'information
Griselles (45210)
Maisons à proximité
Maison neuve, 118 m²
Griselles (45210)
Griselles (45210)
Maison de 5 pièces
Maison neuve, 134 m²
Griselles (45210)
Griselles (45210)
Maison de 5 pièces
Maison neuve, 110 m²
Griselles (45210)
Griselles (45210)
Maison de 5 pièces
Maison neuve, 96 m²
Griselles (45210)
Griselles (45210)
Maison de 5 pièces
Maison neuve, 183 m²
Griselles (45210)
Griselles (45210)
Maison de 5 pièces
Maison neuve, 90 m²
Griselles (45210)
Griselles (45210)
Maison de 4 pièces
Programmes à proximité
Les Jardins du Grand Pont
Nemours (77140)
Nemours (77140)
Appartements de 2 à 4 pièces
Livraison 3ème trimestre 2028
Résidence Le Fleury
Nemours (77140)
Nemours (77140)
Appartements de 3 pièces et maisons de 4 pièces
Livraison 4ème trimestre 2026
Contacter BABEAU SEGUIN AGENCE DE NEMOURS (77140) – SEINE ET pour recevoir plus d'informations
Remplissez le formulaire ci-dessous, vos informations sont transmises directement au constructeur qui vous contactera par email ou par téléphone afin de traiter votre demande. En savoir plus.