Maison neuve, 157 m² - Grillon (84600)
440 000 €
Grillon (84600)
Proposée par MAISONS FRANCE CONFORT – 6 pièces - 5 chambres - terrain 802 m²
|
|
| MAISONS FRANCE CONFORT |
| (120 avis) |
- Demande d'information
- Prendre rendez-vous
MAISON À CONSTRUIRE : ceci est une annonce d'une maison neuve à construire.
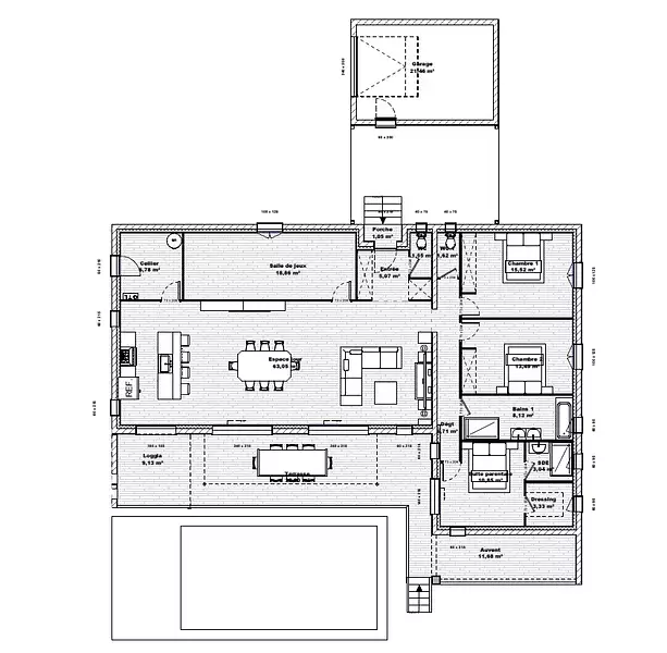
Cette villa de plain-pied au style très moderne se distingue par son originalité et sa douceur marquées par l'architecture contemporaine de son porche et la luminosité de son séjour. L'aménagement de la surface a tout pour vous séduire, grâce à une vaste pièce à vivre composée d'un salon-séjour tourné vers le jardin.
La cuisine ouverte est également propice à la convivialité. Elle permet de vous retrouver facilement autour d'un bon plat tout en profitant d'une surface généreuse très accueillante.
Notre modèle se compose d'une grande salle de jeux, de 4 chambres, dont une suite parentale avec dressing et salle d'eau, offrant un grand espace de rangement pour vous simplifier la vie. Cet habitat de 157 m² habitable avec garage séparé de 21,66 m² réponds parfaitement à un mode de vie familial.
Vous serez également séduit par ses nombreuses options (volets roulants électriques, centralisation, domotique...)
Votre conseiller en construction Olivier PUAUX 06.01.46.37.15 MAISONS FRANCE CONFORT se tient à votre disposition pour en savoir plus à propos de cette habitation, en découvrir d'autres ou bien même créer votre projet personnalisé.
Contactez-le sans plus tarder, pour donner vie à votre projet !!!
Référence : OP2403194_5
Terrain proposé par un partenaire foncier selon disponibilités et autorisation de publicité au prix de 111 000 €. Hors droit d'enregistrement et frais de notaire. Terrain + Maison proposés au prix de 329 000 € (Hors branchements et raccordements, papiers peints, peintures, revêtement de sol dans les chambres. Tarif modifiable sans préavis). Etiquette énergie : A. Différents modèles disponibles pour ce terrain. Assurances et garanties du constructeur (RC professionnelle, décennale, dommage ouvrage, garantie de remboursement de l'acompte, livraison à prix et délai convenu) : https://www.maisons-france-confort.fr/mentions-legales/. HEXAOM Services est enregistré auprès de l'ORIAS en tant que Courtier en financement, Niveau 1, sous le numéro 14001345.
Les informations sur les risques auxquels ce bien est exposé sont disponibles sur le site Géorisques : www.georisques.gouv.fr
La cuisine ouverte est également propice à la convivialité. Elle permet de vous retrouver facilement autour d'un bon plat tout en profitant d'une surface généreuse très accueillante.
Notre modèle se compose d'une grande salle de jeux, de 4 chambres, dont une suite parentale avec dressing et salle d'eau, offrant un grand espace de rangement pour vous simplifier la vie. Cet habitat de 157 m² habitable avec garage séparé de 21,66 m² réponds parfaitement à un mode de vie familial.
Vous serez également séduit par ses nombreuses options (volets roulants électriques, centralisation, domotique...)
Votre conseiller en construction Olivier PUAUX 06.01.46.37.15 MAISONS FRANCE CONFORT se tient à votre disposition pour en savoir plus à propos de cette habitation, en découvrir d'autres ou bien même créer votre projet personnalisé.
Contactez-le sans plus tarder, pour donner vie à votre projet !!!
Référence : OP2403194_5
Terrain proposé par un partenaire foncier selon disponibilités et autorisation de publicité au prix de 111 000 €. Hors droit d'enregistrement et frais de notaire. Terrain + Maison proposés au prix de 329 000 € (Hors branchements et raccordements, papiers peints, peintures, revêtement de sol dans les chambres. Tarif modifiable sans préavis). Etiquette énergie : A. Différents modèles disponibles pour ce terrain. Assurances et garanties du constructeur (RC professionnelle, décennale, dommage ouvrage, garantie de remboursement de l'acompte, livraison à prix et délai convenu) : https://www.maisons-france-confort.fr/mentions-legales/. HEXAOM Services est enregistré auprès de l'ORIAS en tant que Courtier en financement, Niveau 1, sous le numéro 14001345.
Les informations sur les risques auxquels ce bien est exposé sont disponibles sur le site Géorisques : www.georisques.gouv.fr
- Prix
-
- Prix total : 440 000 €
- Prix du modèle de maison : 329 000 €
- Prix du terrain : 111 000 €
- Terrain
-
- Surface : 802 m²
- Maison
-
- Surface : 157 m²
- Pièces : 6
- Chambres : 5
- Garage : 1
- Être rappelé par un conseiller
- Demander plus d’infos
- Demande d'information
Grillon (84600)
Maisons à proximité
Maison neuve, 120 m²
Grillon (84600)
Grillon (84600)
Maison de 5 pièces
Maison neuve, 114 m²
Grillon (84600)
Grillon (84600)
Maison de 5 pièces
Maison neuve, 120 m²
Grillon (84600)
Grillon (84600)
Maison de 5 pièces
Maison neuve, 102 m²
Grillon (84600)
Grillon (84600)
Maison de 4 pièces
Maison neuve, 100 m²
Grillon (84600)
Grillon (84600)
Maison de 4 pièces
Maison neuve, 113 m²
Grillon (84600)
Grillon (84600)
Maison de 6 pièces
Programmes à proximité
Contacter MAISONS FRANCE CONFORT pour recevoir plus d'informations
Remplissez le formulaire ci-dessous, vos informations sont transmises directement au constructeur qui vous contactera par email ou par téléphone afin de traiter votre demande. En savoir plus.