Maison neuve, 91 m² - Gravigny (27930)
273 786 €
Gravigny (27930)
Proposée par MAISONS BALENCY – 6 pièces - 4 chambres - terrain 737 m²
|
|
| MAISONS BALENCY |
- Demande d'information
- Prendre rendez-vous
MAISON À CONSTRUIRE : ceci est une annonce d'une maison neuve à construire.
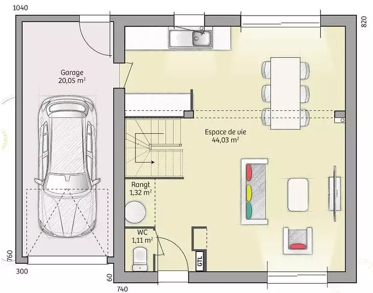
A construire sur la commune de Gravigny, cette jolie maison de 6 pièces (91 m²).
PROCHE D'ÉVREUX
À deux pas d'Évreux à Gravigny (27930), ayez le coup de coeur pour cette maison de 6 pièces de 91 m² sur un terrain de 737 m².
Sur 2 niveaux, elle est composée de quatre chambres, une cuisine et une salle de bains.
L'École Primaire Paul Langevin-Henri Wallon et le Collège Marcel Pagnol sont implantés à moins de 10 minutes à pied.
Côté transports, on trouve la gare Évreux Normandie à moins de 10 minutes en voiture. Les nationales N154 et N13 sont accessibles à moins de 5 km.
Ce projet maison + terrain est proposée à l'achat pour 273 786 €.
Contactez notre agence Maisons Balency Gravigny, pour plus de renseignements.
Notre conseillère commerciale Élodie DUPRÉ (07-43-61-26-52) sera ravie de vous répondre.
Donnez vie à vos projets immobiliers avec Maisons Balency Gravigny.
Annonce proposée par un Agent Commercial Partenaire.
Référence : ED2415471_2
Terrain proposé par un partenaire foncier selon disponibilités et autorisation de publicité au prix de 110 500 €. Hors droit d'enregistrement et frais de notaire. Terrain + Maison proposés au prix de 163 286 € (Hors branchements et raccordements, papiers peints, peintures, revêtement de sol dans les chambres. Tarif modifiable sans préavis). Etiquette énergie : A. Différents modèles disponibles pour ce terrain. Assurances et garanties du constructeur (RC professionnelle, décennale, dommage ouvrage, garantie de remboursement de l'acompte, livraison à prix et délai convenu) : https://www.maisons-balency.fr/informations-legales/. HEXAOM Services est enregistré auprès de l'ORIAS en tant que Courtier en financement, Niveau 1, sous le numéro 14001345.
Les informations sur les risques auxquels ce bien est exposé sont disponibles sur le site Géorisques : www.georisques.gouv.fr
PROCHE D'ÉVREUX
À deux pas d'Évreux à Gravigny (27930), ayez le coup de coeur pour cette maison de 6 pièces de 91 m² sur un terrain de 737 m².
Sur 2 niveaux, elle est composée de quatre chambres, une cuisine et une salle de bains.
L'École Primaire Paul Langevin-Henri Wallon et le Collège Marcel Pagnol sont implantés à moins de 10 minutes à pied.
Côté transports, on trouve la gare Évreux Normandie à moins de 10 minutes en voiture. Les nationales N154 et N13 sont accessibles à moins de 5 km.
Ce projet maison + terrain est proposée à l'achat pour 273 786 €.
Contactez notre agence Maisons Balency Gravigny, pour plus de renseignements.
Notre conseillère commerciale Élodie DUPRÉ (07-43-61-26-52) sera ravie de vous répondre.
Donnez vie à vos projets immobiliers avec Maisons Balency Gravigny.
Annonce proposée par un Agent Commercial Partenaire.
Référence : ED2415471_2
Terrain proposé par un partenaire foncier selon disponibilités et autorisation de publicité au prix de 110 500 €. Hors droit d'enregistrement et frais de notaire. Terrain + Maison proposés au prix de 163 286 € (Hors branchements et raccordements, papiers peints, peintures, revêtement de sol dans les chambres. Tarif modifiable sans préavis). Etiquette énergie : A. Différents modèles disponibles pour ce terrain. Assurances et garanties du constructeur (RC professionnelle, décennale, dommage ouvrage, garantie de remboursement de l'acompte, livraison à prix et délai convenu) : https://www.maisons-balency.fr/informations-legales/. HEXAOM Services est enregistré auprès de l'ORIAS en tant que Courtier en financement, Niveau 1, sous le numéro 14001345.
Les informations sur les risques auxquels ce bien est exposé sont disponibles sur le site Géorisques : www.georisques.gouv.fr
- Prix
-
- Prix total : 273 786 €
- Prix du modèle de maison : 163 286 €
- Prix du terrain : 110 500 €
- Terrain
-
- Surface : 737 m²
- Maison
-
- Surface : 91 m²
- Pièces : 6
- Chambres : 4
- Garage : 1
- Être rappelé par un conseiller
- Demander plus d’infos
- Demande d'information
Gravigny (27930)
Maisons à proximité
Maison neuve, 174 m²
Gravigny (27930)
Gravigny (27930)
Maison de 8 pièces
Maison neuve, 114 m²
Gravigny (27930)
Gravigny (27930)
Maison de 6 pièces
Maison neuve, 115 m²
Gravigny (27930)
Gravigny (27930)
Maison de 5 pièces
Maison neuve, 114 m²
Gravigny (27930)
Gravigny (27930)
Maison de 6 pièces
Maison neuve, 110 m²
Gravigny (27930)
Gravigny (27930)
Maison de 4 pièces
Maison neuve, 92 m²
Gravigny (27930)
Gravigny (27930)
Maison de 5 pièces
Programmes à proximité
À 15 min*à pied du centre ville
Louviers (27400)
Louviers (27400)
Appartements de 2 à 3 pièces et maisons de 3 pièces
Reverso Louviers
Louviers (27400)
Louviers (27400)
Appartements de 1 à 3 pièces
Livraison 4ème trimestre 2025
LE 25 BULLY
Vernon (27200)
Vernon (27200)
Appartements de 1 à 2 pièces
Livraison 3ème trimestre 2027
Le Jardin des Officiers
Vernon (27200)
Vernon (27200)
Appartements de 2 à 4 pièces
Livraison 2ème trimestre 2026
LES JARDINS DE GAMILLY
Vernon (27200)
Vernon (27200)
Appartement de 2 pièces
Livraison 2ème trimestre 2026
Contacter MAISONS BALENCY pour recevoir plus d'informations
Remplissez le formulaire ci-dessous, vos informations sont transmises directement au constructeur qui vous contactera par email ou par téléphone afin de traiter votre demande. En savoir plus.