Maison neuve, 91 m² - Girancourt (88390)
210 530 €
Girancourt (88390)
Proposée par BATILOR AGENCE D’ EPINAL (88000) – VOSGES – RÉGION – 5 pièces - 4 chambres - terrain 1 447 m²
|
|
| Batilor Agence d’ Epinal (88000) – Vosges – Région |
- Demande d'information
- Prendre rendez-vous
MAISON À CONSTRUIRE : ceci est une annonce d'une maison neuve à construire.
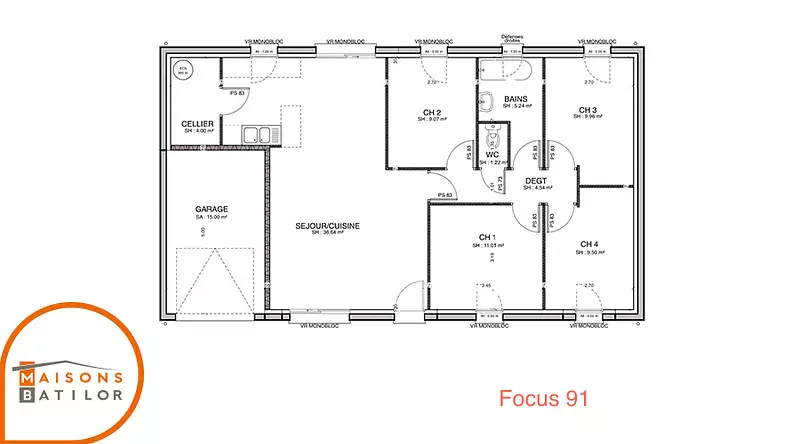
Nous vous proposons cette maison neuve, baptisée Focus 91, une demeure qui allie tradition et modernité, conçue pour répondre aux attentes des familles en quête d'un foyer spacieux et économique. Avec une surface habitable de 91 m², cette maison de plain-pied ne manquera pas de vous séduire par ses volumes généreux et son agencement optimisé, le tout dans le respect des dernières normes environnementales RE2020.
La Focus 91 se distingue par ses quatre chambres lumineuses, chacune offrant plus de 10 m² d'espace personnel, garantissant ainsi intimité et confort pour tous les membres de la famille. La pièce de vie, d'une superficie de plus de 30 m², bénéficie d'une conception traversante avec une cuisine ouverte, créant un espace convivial et accueillant. Un cellier pratique, une salle de bain équipée d'une baignoire, et des toilettes séparées complètent l'ensemble, rendant cette maison aussi fonctionnelle qu'agréable à vivre.
L'un des atouts majeurs de la Focus 91 réside dans ses baies coulissantes qui baignent l'intérieur de lumière naturelle et offrent un accès direct au jardin, permettant ainsi de profiter pleinement des beaux jours. Conçue pour être économe en énergie, cette maison basse consommation est parfaitement conforme à la réglementation RE2020, vous assurant des économies significatives sur vos factures énergétiques tout en contribuant à la protection de l'environnement.
Pour répondre aux goûts et aux besoins de chacun, la Focus 91 propose également des options de personnalisation très prisées, telles que le crépis coloré, permettant d'ajouter une touche d'originalité à votre façade.
En choisissant la Focus 91, vous optez pour une maison neuve écologique, spacieuse et confortable, le tout à un coût avantageux. Une opportunité à saisir pour les familles désireuses de s'installer dans un lieu de vie harmonieux, respectueux de l'environnement et adapté à leur mode de vie.
Référence : 23309
Les informations sur les risques auxquels ce bien est exposé sont disponibles sur le site Géorisques : www.georisques.gouv.fr
La Focus 91 se distingue par ses quatre chambres lumineuses, chacune offrant plus de 10 m² d'espace personnel, garantissant ainsi intimité et confort pour tous les membres de la famille. La pièce de vie, d'une superficie de plus de 30 m², bénéficie d'une conception traversante avec une cuisine ouverte, créant un espace convivial et accueillant. Un cellier pratique, une salle de bain équipée d'une baignoire, et des toilettes séparées complètent l'ensemble, rendant cette maison aussi fonctionnelle qu'agréable à vivre.
L'un des atouts majeurs de la Focus 91 réside dans ses baies coulissantes qui baignent l'intérieur de lumière naturelle et offrent un accès direct au jardin, permettant ainsi de profiter pleinement des beaux jours. Conçue pour être économe en énergie, cette maison basse consommation est parfaitement conforme à la réglementation RE2020, vous assurant des économies significatives sur vos factures énergétiques tout en contribuant à la protection de l'environnement.
Pour répondre aux goûts et aux besoins de chacun, la Focus 91 propose également des options de personnalisation très prisées, telles que le crépis coloré, permettant d'ajouter une touche d'originalité à votre façade.
En choisissant la Focus 91, vous optez pour une maison neuve écologique, spacieuse et confortable, le tout à un coût avantageux. Une opportunité à saisir pour les familles désireuses de s'installer dans un lieu de vie harmonieux, respectueux de l'environnement et adapté à leur mode de vie.
Référence : 23309
Les informations sur les risques auxquels ce bien est exposé sont disponibles sur le site Géorisques : www.georisques.gouv.fr
- Prix
-
- Prix total : 210 530 €
- Prix du modèle de maison : 154 530 €
- Prix du terrain : 56 000 €
- Terrain
-
- Surface : 1 447 m²
- Maison
-
- Surface : 91 m²
- Pièces : 5
- Chambres : 4
- Être rappelé par un conseiller
- Demander plus d’infos
- Demande d'information
Girancourt (88390)
Maisons à proximité
Maison neuve, 89 m²
Dommartin-aux-Bois (88390)
Dommartin-aux-Bois (88390)
Maison de 4 pièces
Maison neuve, 91 m²
Gorhey (88270)
Gorhey (88270)
Maison de 4 pièces
Maison neuve, 108 m²
Madonne-et-Lamerey (88270)
Madonne-et-Lamerey (88270)
Maison de 5 pièces
Maison neuve, 75 m²
Madonne-et-Lamerey (88270)
Madonne-et-Lamerey (88270)
Maison de 4 pièces
Maison neuve, 89 m²
Chantraine (88000)
Chantraine (88000)
Maison de 4 pièces
Maison neuve, 79 m²
Uriménil (88220)
Uriménil (88220)
Maison de 4 pièces
Programmes à proximité
Contacter BATILOR AGENCE D’ EPINAL (88000) – VOSGES – RÉGION pour recevoir plus d'informations
Remplissez le formulaire ci-dessous, vos informations sont transmises directement au constructeur qui vous contactera par email ou par téléphone afin de traiter votre demande. En savoir plus.