Maison neuve, 107 m² - Giffaumont-Champaubert (51290)
232 600 €
Giffaumont-Champaubert (51290)
Proposée par PAVILLONS PAROT - CONSTRUCTEUR DE MAISONS EN HAUTE – 4 pièces - 3 chambres - terrain 10 137 m²
|
|
| Pavillons Parot - Constructeur de maisons en Haute |
- Demande d'information
- Prendre rendez-vous
MAISON À CONSTRUIRE : ceci est une annonce d'une maison neuve à construire.
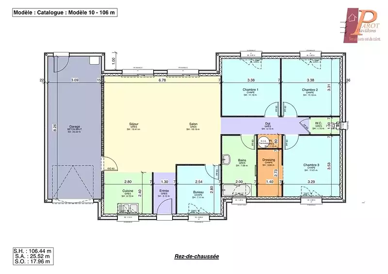
Sur ce terrain, nous vous proposons cette maison neuve, modèle Tourelle, conçue par Pavillons Parot. Avec une surface de 107 m², cette demeure de charme se distingue par son plan en T et son toit aux formes travaillées, recouvert de tuiles en terre cuite H10.
La maison Tourelle offre un espace de vie optimisé et divisé en deux zones distinctes. D’un côté, vous trouverez l’espace nuit comprenant trois chambres, dont une suite parentale avec dressing, idéale pour offrir aux parents un espace privé et confortable. De l’autre côté, un grand garage intégré avec une porte communicante pour plus de praticité. Au centre, l’espace de vie lumineux et convivial, parfait pour des moments en famille ou entre amis.
Cette maison est conforme à la réglementation environnementale RE2020, garantissant une basse consommation énergétique et un respect accru de l’environnement. Maison familiale par excellence, elle est conçue pour offrir un confort optimal à chacun de ses occupants.
Ne manquez pas cette opportunité unique de vivre dans une maison neuve, moderne et respectueuse de l’environnement, avec toutes les commodités nécessaires pour une vie agréable et sereine.
Référence : 15634
Les informations sur les risques auxquels ce bien est exposé sont disponibles sur le site Géorisques : www.georisques.gouv.fr
La maison Tourelle offre un espace de vie optimisé et divisé en deux zones distinctes. D’un côté, vous trouverez l’espace nuit comprenant trois chambres, dont une suite parentale avec dressing, idéale pour offrir aux parents un espace privé et confortable. De l’autre côté, un grand garage intégré avec une porte communicante pour plus de praticité. Au centre, l’espace de vie lumineux et convivial, parfait pour des moments en famille ou entre amis.
Cette maison est conforme à la réglementation environnementale RE2020, garantissant une basse consommation énergétique et un respect accru de l’environnement. Maison familiale par excellence, elle est conçue pour offrir un confort optimal à chacun de ses occupants.
Ne manquez pas cette opportunité unique de vivre dans une maison neuve, moderne et respectueuse de l’environnement, avec toutes les commodités nécessaires pour une vie agréable et sereine.
Référence : 15634
Les informations sur les risques auxquels ce bien est exposé sont disponibles sur le site Géorisques : www.georisques.gouv.fr
- Prix
-
- Prix total : 232 600 €
- Prix du modèle de maison : 159 600 €
- Prix du terrain : 73 000 €
- Terrain
-
- Surface : 10 137 m²
- Maison
-
- Surface : 107 m²
- Pièces : 4
- Chambres : 3
- Être rappelé par un conseiller
- Demander plus d’infos
- Demande d'information
Giffaumont-Champaubert (51290)
Maisons à proximité
Maison neuve, 73 m²
Giffaumont-Champaubert (51290)
Giffaumont-Champaubert (51290)
Maison de 5 pièces
Maison neuve, 90 m²
Giffaumont-Champaubert (51290)
Giffaumont-Champaubert (51290)
Maison de 5 pièces
Maison neuve, 89 m²
Giffaumont-Champaubert (51290)
Giffaumont-Champaubert (51290)
Maison de 5 pièces
Maison neuve, 91 m²
Planrupt (52220)
Planrupt (52220)
Maison de 4 pièces
Maison neuve, 100 m²
Eclaron-Braucourt-Sainte-Livière (52290)
Eclaron-Braucourt-Sainte-Livière (52290)
Maison de 4 pièces
Maison neuve, 90 m²
La Porte du Der (52220)
La Porte du Der (52220)
Maison de 5 pièces
Programmes à proximité
Le Clos d'Alice
Saint-Dizier (52100)
Saint-Dizier (52100)
Appartements de 1 à 4 pièces
Contacter PAVILLONS PAROT - CONSTRUCTEUR DE MAISONS EN HAUTE pour recevoir plus d'informations
Remplissez le formulaire ci-dessous, vos informations sont transmises directement au constructeur qui vous contactera par email ou par téléphone afin de traiter votre demande. En savoir plus.
Voir tous nos programmes immobiliers neufs à Giffaumont-Champaubert