Maison neuve, 85 m² - Gauville-la-Campagne (27930)
226 000 €
Gauville-la-Campagne (27930)
Proposée par EXTRACO - CONSTRUCTION | RÉNOVATION – 4 pièces - 3 chambres - terrain 902 m²
|
|
| EXTRACO - Construction | Rénovation |
- Demande d'information
- Prendre rendez-vous
MAISON À CONSTRUIRE : ceci est une annonce d'une maison neuve à construire.
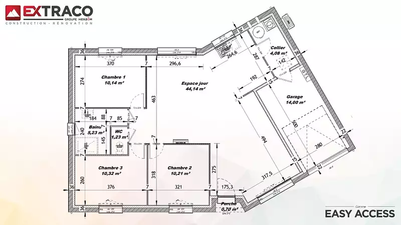
VENTE d'une maison de 4 pièces (85 m²) à Gauville-la-Campagne
IDÉALEMENT SITUÉE - MAISON 4 PIÈCES NEUVE
En vente : située à deux pas d'Évreux, nous sommes heureux de vous présenter cette maison de 4 pièces de plain-pied de 85 m² et de 902 m² de terrain idéalement située dans Gauville-la-Campagne (27930). Son intérieur offre trois chambres, une cuisine et une salle de bains.
Cette maison est neuve.
Cette maison est située dans un secteur attractif. Une école élémentaire y est implantée. Niveau transports, il y a les gares Évreux Normandie et La Bonneville-sur-Iton à moins de 10 minutes en voiture. Les nationales N13 et N154 sont accessibles à moins de 7 km. On trouve un commerce à proximité de la maison.
Elle est à vendre pour la somme de 226 000 €.
. Faites de vos projets immobiliers une réalité avec Les Maisons Extraco Gravigny.
Référence : OS2391640_2
Terrain proposé par un partenaire foncier selon disponibilités et autorisation de publicité au prix de 80 000 €. Hors droit d'enregistrement et frais de notaire. Terrain + Maison proposés au prix de 146 000 € (Hors branchements et raccordements, papiers peints, peintures, revêtement de sol dans les chambres. Tarif modifiable sans préavis). Etiquette énergie : A. Différents modèles disponibles pour ce terrain.
Les informations sur les risques auxquels ce bien est exposé sont disponibles sur le site Géorisques : www.georisques.gouv.fr
IDÉALEMENT SITUÉE - MAISON 4 PIÈCES NEUVE
En vente : située à deux pas d'Évreux, nous sommes heureux de vous présenter cette maison de 4 pièces de plain-pied de 85 m² et de 902 m² de terrain idéalement située dans Gauville-la-Campagne (27930). Son intérieur offre trois chambres, une cuisine et une salle de bains.
Cette maison est neuve.
Cette maison est située dans un secteur attractif. Une école élémentaire y est implantée. Niveau transports, il y a les gares Évreux Normandie et La Bonneville-sur-Iton à moins de 10 minutes en voiture. Les nationales N13 et N154 sont accessibles à moins de 7 km. On trouve un commerce à proximité de la maison.
Elle est à vendre pour la somme de 226 000 €.
. Faites de vos projets immobiliers une réalité avec Les Maisons Extraco Gravigny.
Référence : OS2391640_2
Terrain proposé par un partenaire foncier selon disponibilités et autorisation de publicité au prix de 80 000 €. Hors droit d'enregistrement et frais de notaire. Terrain + Maison proposés au prix de 146 000 € (Hors branchements et raccordements, papiers peints, peintures, revêtement de sol dans les chambres. Tarif modifiable sans préavis). Etiquette énergie : A. Différents modèles disponibles pour ce terrain.
Les informations sur les risques auxquels ce bien est exposé sont disponibles sur le site Géorisques : www.georisques.gouv.fr
- Prix
-
- Prix total : 226 000 €
- Prix du modèle de maison : 146 000 €
- Prix du terrain : 80 000 €
- Terrain
-
- Surface : 902 m²
- Maison
-
- Surface : 85 m²
- Pièces : 4
- Chambres : 3
- Garage : 1
- Être rappelé par un conseiller
- Demander plus d’infos
- Demande d'information
Gauville-la-Campagne (27930)
Maisons à proximité
Maison neuve, 92 m²
Gauville-la-Campagne (27930)
Gauville-la-Campagne (27930)
Maison de 5 pièces
Maison neuve, 86 m²
Gauville-la-Campagne (27930)
Gauville-la-Campagne (27930)
Maison de 5 pièces
Maison neuve, 98 m²
Gauville-la-Campagne (27930)
Gauville-la-Campagne (27930)
Maison de 4 pièces
Maison neuve, 81 m²
Aviron (27930)
Aviron (27930)
Maison de 4 pièces
Maison neuve, 106,97 m²
Aviron (27930)
Aviron (27930)
Maison de 6 pièces
Maison neuve, 91 m²
Aviron (27930)
Aviron (27930)
Maison de 4 pièces
Programmes à proximité
Reverso Louviers
Louviers (27400)
Louviers (27400)
Appartements de 1 à 3 pièces
Livraison 4ème trimestre 2025
Contacter EXTRACO - CONSTRUCTION | RÉNOVATION pour recevoir plus d'informations
Remplissez le formulaire ci-dessous, vos informations sont transmises directement au constructeur qui vous contactera par email ou par téléphone afin de traiter votre demande. En savoir plus.
Voir tous nos programmes immobiliers neufs à Gauville-la-Campagne