Maison neuve, 120 m² - Francheville (69340)

499 000 €
Francheville (69340)

Proposée par MAISONS ALAIN MÉTRAL – 5 pièces - terrain 690 m²

 Maisons Alain Métral
Maisons Alain Métral
  • Demande d'information
MAISON À CONSTRUIRE : ceci est une annonce d'une maison neuve à construire.
Maisons Alain Métral vous propose un projet de construction sur un terrain de de 690 m² sur la commune de Francheville.
Le Permis de ce projet est déjà accepté.
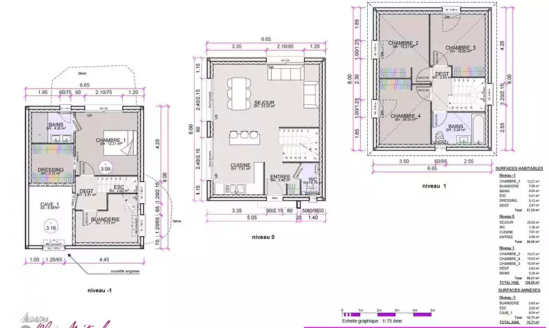
On projette une villa de 120 m² habitable sur 3 niveaux sans garage mais possibilité de poser un Carport.
Au RDC une pièce à vivre d'une surface d'environ 35 m² avec cuisine en OPEN-SPACE,
AU niveau -1 une suite parentale de 20 m² avec dressing + salle d'eau, une buanderie et une cave viennent compléter le niveau inférieur.
A l'étage : 3 chambres de 10 m² et une salle de bains principale avec un meuble double vasque et une baignoire.
Sanitaires et meuble vasques Jacob DELAFON, carrelage en 60 x 60 à 50 € le m², faïences à 31 € le m² menuiseries extérieurs RAL 7016 volets roulants électriques en aluminium chauffage au sol toutes surfaces et production d'eau chaude par pompe à chaleur DAIKIN, on retrouvera aussi une toiture 4 pans représenté par plusieurs volumes, une façade en enduit gratté ainsi que d'autre belles prestations pour ce projet.
La maison est exposée plein SUD et Le terrain offre la possibilité d'une piscine exposée au SUD également.
Terrain en accord avec notre partenaire foncier, sous réserve de disponibilité. Prix hors frais de notaire, hors taxes, hors décoration.
Photos non contractuelles. Projet conforme à la RE2020.

Les informations sur les risques auxquels ce bien est exposé sont disponibles sur le site Géorisques : www.georisques.gouv.fr


Prix
  • Prix total : 499 000 €
  • Prix du modèle de maison : 239 000 €
  • Prix du terrain : 260 000 €

Terrain
  • Surface : 690 m²

Maison
  • Surface : 120 m²
  • Pièces : 5

  • Être rappelé par un conseiller
  • Demander plus d’infos
  • Demande d'information
Francheville (69340)

Programmes à proximité

Le Domaine - Francheville le Bourg
Le Domaine - Francheville le Bourg
Francheville (69340)

Appartements de 3 à 4 pièces
Livraison 1er trimestre 2026

LES ALLEES DU MOULIN
LES ALLEES DU MOULIN
Francheville (69340)

Appartements de 3 à 4 pièces
Livraison 2ème trimestre 2025

Les Hauts de Chantegrillet
Les Hauts de Chantegrillet
Sainte-Foy-lès-Lyon (69110)

Appartements de 2 à 5 pièces
Livraison 2ème trimestre 2028

LES JARDINS D'HYPOLYTE
LES JARDINS D'HYPOLYTE
Tassin-la-Demi-Lune (69160)

Appartements de 4 pièces
Livraison 4ème trimestre 2024

Le Pavillon de l'Horloge
Le Pavillon de l'Horloge
Tassin-la-Demi-Lune (69160)

Appartements de 2 à 4 pièces
Livraison 1er trimestre 2028

AU RYTHME DES ARBRES
AU RYTHME DES ARBRES
Tassin-la-Demi-Lune (69160)

Appartements de 1 à 4 pièces
Livraison 1er trimestre 2026

Contacter MAISONS ALAIN MÉTRAL pour recevoir plus d'informations

Remplissez le formulaire ci-dessous, vos informations sont transmises directement au constructeur qui vous contactera par email ou par téléphone afin de traiter votre demande. En savoir plus.

Voir tous nos programmes immobiliers neufs à Francheville