Maison neuve, 111 m² - Foulayronnes (47510)
278 000 €
Foulayronnes (47510)
Proposée par ALPHA CONSTRUCTIONS – 4 pièces - 3 chambres - terrain 600 m²
|
|
| Alpha Constructions |
- Demande d'information
- Prendre rendez-vous
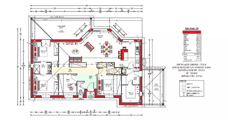
MAISON À CONSTRUIRE : ceci est une annonce d'une maison neuve à construire.
🏡 Projet Maison + Terrain - Foulayronnes (47)
Maison neuve 110 m² - 4 chambres dont suite parentale + carport + terrasse couverte
Sur un terrain plat, viabilisé et raccordable au tout-à-l'égout de 600 m², idéalement situé dans un lotissement calme et recherché à Foulayronnes, découvrez ce projet de maison entièrement personnalisable : moderne, lumineuse et pensée pour le confort de toute la famille.
Votre future maison de 110 m² :
🛏️ 4 chambres dont
👑 1 suite parentale avec salle d'eau privative
🌞 Grande pièce de vie très lumineuse, avec de larges ouvertures sur l'extérieur
🍽️ Cuisine ouverte ou semi-ouverte selon vos envies
🚗 Carport moderne et fonctionnel
🌿 Terrasse couverte incluse : idéale pour profiter des beaux jours
🛁 Salle de bain familiale
🔧 Plans 100% personnalisables (agencement, finitions, options)
🌡️ Maison performante et conforme à la réglementation en vigueur
Le terrain :
📐 600 m² parfaitement plats
⚡ Viabilisé
♻️ Tout-à-l'égout
📍 À proximité du centre-ville de Foulayronnes, commerces, écoles et services
🏞️ Lotissement calme et agréable
Un projet entièrement personnalisable pour créer la maison idéale dans un cadre de vie de qualité.Pour une étude gratuite et l'adaptation de ce modèle à vos besoins.
Référence : LP2358235_2
Terrain proposé par un partenaire foncier selon disponibilité dans le cadre d’un projet de construction avec Alpha Constructions. Les descriptions, photographies, surfaces et prix illustrant l’annonce sont fournies à titre indicatif et ne sont pas contractuels. Non soumis au DPE. Différents modèles disponibles.
Les informations sur les risques auxquels ce bien est exposé sont disponibles sur le site Géorisques : www.georisques.gouv.fr
Maison neuve 110 m² - 4 chambres dont suite parentale + carport + terrasse couverte
Sur un terrain plat, viabilisé et raccordable au tout-à-l'égout de 600 m², idéalement situé dans un lotissement calme et recherché à Foulayronnes, découvrez ce projet de maison entièrement personnalisable : moderne, lumineuse et pensée pour le confort de toute la famille.
Votre future maison de 110 m² :
🛏️ 4 chambres dont
👑 1 suite parentale avec salle d'eau privative
🌞 Grande pièce de vie très lumineuse, avec de larges ouvertures sur l'extérieur
🍽️ Cuisine ouverte ou semi-ouverte selon vos envies
🚗 Carport moderne et fonctionnel
🌿 Terrasse couverte incluse : idéale pour profiter des beaux jours
🛁 Salle de bain familiale
🔧 Plans 100% personnalisables (agencement, finitions, options)
🌡️ Maison performante et conforme à la réglementation en vigueur
Le terrain :
📐 600 m² parfaitement plats
⚡ Viabilisé
♻️ Tout-à-l'égout
📍 À proximité du centre-ville de Foulayronnes, commerces, écoles et services
🏞️ Lotissement calme et agréable
Un projet entièrement personnalisable pour créer la maison idéale dans un cadre de vie de qualité.Pour une étude gratuite et l'adaptation de ce modèle à vos besoins.
Référence : LP2358235_2
Terrain proposé par un partenaire foncier selon disponibilité dans le cadre d’un projet de construction avec Alpha Constructions. Les descriptions, photographies, surfaces et prix illustrant l’annonce sont fournies à titre indicatif et ne sont pas contractuels. Non soumis au DPE. Différents modèles disponibles.
Les informations sur les risques auxquels ce bien est exposé sont disponibles sur le site Géorisques : www.georisques.gouv.fr
- Prix
-
- Prix total : 278 000 €
- Prix du modèle de maison : 228 000 €
- Prix du terrain : 50 000 €
- Terrain
-
- Surface : 600 m²
- Maison
-
- Surface : 111 m²
- Pièces : 4
- Chambres : 3
- Être rappelé par un conseiller
- Demander plus d’infos
- Demande d'information
Foulayronnes (47510)
Maisons à proximité
Maison neuve, 146 m²
Foulayronnes (47510)
Foulayronnes (47510)
Maison de 7 pièces
Maison neuve, 115 m²
Foulayronnes (47510)
Foulayronnes (47510)
Maison de 6 pièces
Maison neuve, 100 m²
Foulayronnes (47510)
Foulayronnes (47510)
Maison de 4 pièces
Maison neuve, 100 m²
Foulayronnes (47510)
Foulayronnes (47510)
Maison de 4 pièces
Maison neuve, 120 m²
Foulayronnes (47510)
Foulayronnes (47510)
Maison de 4 pièces
Maison neuve, 100 m²
Foulayronnes (47510)
Foulayronnes (47510)
Maison de 5 pièces
Programmes à proximité
Le Damier
Villeneuve-sur-Lot (47300)
Villeneuve-sur-Lot (47300)
Appartements de 2 à 3 pièces
Livraison 2ème trimestre 2026
Contacter ALPHA CONSTRUCTIONS pour recevoir plus d'informations
Remplissez le formulaire ci-dessous, vos informations sont transmises directement au constructeur qui vous contactera par email ou par téléphone afin de traiter votre demande. En savoir plus.