Maison neuve, 91 m² - Forges-les-Eaux (76440)
194 500 €
Forges-les-Eaux (76440)
Proposée par MAISONS BALENCY – 7 pièces - 4 chambres - terrain 238 m²
|
|
| MAISONS BALENCY |
- Demande d'information
- Prendre rendez-vous
MAISON À CONSTRUIRE : ceci est une annonce d'une maison neuve à construire.
Maison de 7 pièces (91 m²) à vendre à Forges-les-Eaux
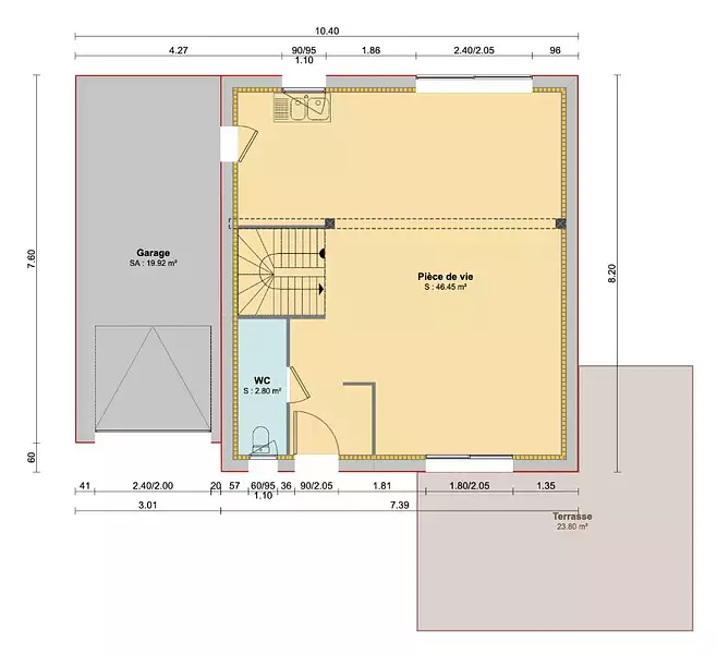
Idéalement située - En vente à Forges-les-Eaux (76440) : maison neuve 7 pièces de 91 m² et de 238 m² de terrain. Son intérieur comporte quatre chambres, une cuisine et une salle de bains.
À proximité : gares (Serqueux et Sommery), établissements scolaires, tennis, bibliothèque, commerces, supermarchés, boulangeries, bureau de poste et épiceries. Autoroutes A28 et A29 accessibles à 15 km.
Cette maison de 7 pièces est proposée à l'achat pour 194 500 €.
. Concrétisez vos projets immobiliers avec Maisons Balency Boos.
Annonce proposée par un Agent Commercial Partenaire.
Référence : EL2341002_4
Terrain proposé par un partenaire foncier selon disponibilités et autorisation de publicité au prix de 35 500 €. Hors droit d'enregistrement et frais de notaire. Maison proposée, avec un contrat de construction de maison individuelle, dans le cadre de la loi du 19/12/1990, au prix de 159 000 € (Hors branchements et raccordements, papiers peints, peintures, revêtement de sol dans les chambres, qui sont chiffrés dans les travaux qui restent à charge du client. Tarif modifiable sans préavis). Étiquette énergie : A. Différents modèles disponibles pour ce terrain. Assurances et garanties du constructeur comprises (RC professionnelle, décennale, dommage ouvrage).
Les informations sur les risques auxquels ce bien est exposé sont disponibles sur le site Géorisques : www.georisques.gouv.fr
Idéalement située - En vente à Forges-les-Eaux (76440) : maison neuve 7 pièces de 91 m² et de 238 m² de terrain. Son intérieur comporte quatre chambres, une cuisine et une salle de bains.
À proximité : gares (Serqueux et Sommery), établissements scolaires, tennis, bibliothèque, commerces, supermarchés, boulangeries, bureau de poste et épiceries. Autoroutes A28 et A29 accessibles à 15 km.
Cette maison de 7 pièces est proposée à l'achat pour 194 500 €.
. Concrétisez vos projets immobiliers avec Maisons Balency Boos.
Annonce proposée par un Agent Commercial Partenaire.
Référence : EL2341002_4
Terrain proposé par un partenaire foncier selon disponibilités et autorisation de publicité au prix de 35 500 €. Hors droit d'enregistrement et frais de notaire. Maison proposée, avec un contrat de construction de maison individuelle, dans le cadre de la loi du 19/12/1990, au prix de 159 000 € (Hors branchements et raccordements, papiers peints, peintures, revêtement de sol dans les chambres, qui sont chiffrés dans les travaux qui restent à charge du client. Tarif modifiable sans préavis). Étiquette énergie : A. Différents modèles disponibles pour ce terrain. Assurances et garanties du constructeur comprises (RC professionnelle, décennale, dommage ouvrage).
Les informations sur les risques auxquels ce bien est exposé sont disponibles sur le site Géorisques : www.georisques.gouv.fr
- Prix
-
- Prix total : 194 500 €
- Prix du modèle de maison : 159 000 €
- Prix du terrain : 35 500 €
- Terrain
-
- Surface : 238 m²
- Maison
-
- Surface : 91 m²
- Pièces : 7
- Chambres : 4
- Garage : 1
- Être rappelé par un conseiller
- Demander plus d’infos
- Demande d'information
Forges-les-Eaux (76440)
Maisons à proximité
Maison neuve, 50 m²
Forges-les-Eaux (76440)
Forges-les-Eaux (76440)
Maison de 4 pièces
Maison neuve, 84,28 m²
Forges-les-Eaux (76440)
Forges-les-Eaux (76440)
Maison de 4 pièces
Maison neuve, 116 m²
Forges-les-Eaux (76440)
Forges-les-Eaux (76440)
Maison de 5 pièces
Maison neuve, 48,75 m²
Forges-les-Eaux (76440)
Forges-les-Eaux (76440)
Maison de 3 pièces
Maison neuve, 75 m²
Forges-les-Eaux (76440)
Forges-les-Eaux (76440)
Maison de 4 pièces
Maison neuve, 150 m²
Forges-les-Eaux (76440)
Forges-les-Eaux (76440)
Maison de 7 pièces
Programmes à proximité
BELCI
Buchy (76750)
Buchy (76750)
Appartements de 3 à 4 pièces
Livraison 2ème trimestre 2027
Contacter MAISONS BALENCY pour recevoir plus d'informations
Remplissez le formulaire ci-dessous, vos informations sont transmises directement au constructeur qui vous contactera par email ou par téléphone afin de traiter votre demande. En savoir plus.
Voir tous nos programmes immobiliers neufs à Forges-les-Eaux