Maison neuve, 124 m² - Forges-les-Eaux (76440)
228 100 €
Forges-les-Eaux (76440)
Proposée par MAISONS BALENCY – 9 pièces - 5 chambres - terrain 349 m²
|
|
| MAISONS BALENCY |
- Demande d'information
- Prendre rendez-vous
MAISON À CONSTRUIRE : ceci est une annonce d'une maison neuve à construire.
VENTE d'une maison de 9 pièces (124 m²) à Forges-les-Eaux
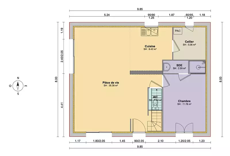
Idéalement située - À découvrir à Forges-les-Eaux (76440) : maison neuve 9 pièces à vendre, 2 niveaux, 124 m² sur 349 m² de terrain. Elle dispose de cinq chambres, d'une cuisine et de trois salles de bains.
À proximité : gares (Serqueux et Sommery), établissements scolaires, tennis, bibliothèque, supermarchés, commerces, boulangeries, épiceries et boucheries-charcuteries. Accès autoroutes A28 et A29 à 15 km.
Le prix de vente de cette maison de 9 pièces est de 228 100 €.
. Maisons Balency Boos est là pour vous accompagner dans tous vos projets immobiliers.
Annonce proposée par un Agent Commercial Partenaire.
Référence : EL2303792_4
Terrain proposé par un partenaire foncier selon disponibilités et autorisation de publicité au prix de 38 500 €. Hors droit d'enregistrement et frais de notaire. Maison proposée, avec un contrat de construction de maison individuelle, dans le cadre de la loi du 19/12/1990, au prix de 189 600 € (Hors branchements et raccordements, papiers peints, peintures, revêtement de sol dans les chambres, qui sont chiffrés dans les travaux qui restent à charge du client. Tarif modifiable sans préavis). Étiquette énergie : A. Différents modèles disponibles pour ce terrain. Assurances et garanties du constructeur comprises (RC professionnelle, décennale, dommage ouvrage).
Les informations sur les risques auxquels ce bien est exposé sont disponibles sur le site Géorisques : www.georisques.gouv.fr
Idéalement située - À découvrir à Forges-les-Eaux (76440) : maison neuve 9 pièces à vendre, 2 niveaux, 124 m² sur 349 m² de terrain. Elle dispose de cinq chambres, d'une cuisine et de trois salles de bains.
À proximité : gares (Serqueux et Sommery), établissements scolaires, tennis, bibliothèque, supermarchés, commerces, boulangeries, épiceries et boucheries-charcuteries. Accès autoroutes A28 et A29 à 15 km.
Le prix de vente de cette maison de 9 pièces est de 228 100 €.
. Maisons Balency Boos est là pour vous accompagner dans tous vos projets immobiliers.
Annonce proposée par un Agent Commercial Partenaire.
Référence : EL2303792_4
Terrain proposé par un partenaire foncier selon disponibilités et autorisation de publicité au prix de 38 500 €. Hors droit d'enregistrement et frais de notaire. Maison proposée, avec un contrat de construction de maison individuelle, dans le cadre de la loi du 19/12/1990, au prix de 189 600 € (Hors branchements et raccordements, papiers peints, peintures, revêtement de sol dans les chambres, qui sont chiffrés dans les travaux qui restent à charge du client. Tarif modifiable sans préavis). Étiquette énergie : A. Différents modèles disponibles pour ce terrain. Assurances et garanties du constructeur comprises (RC professionnelle, décennale, dommage ouvrage).
Les informations sur les risques auxquels ce bien est exposé sont disponibles sur le site Géorisques : www.georisques.gouv.fr
- Prix
-
- Prix total : 228 100 €
- Prix du modèle de maison : 189 600 €
- Prix du terrain : 38 500 €
- Terrain
-
- Surface : 349 m²
- Maison
-
- Surface : 124 m²
- Pièces : 9
- Chambres : 5
- Être rappelé par un conseiller
- Demander plus d’infos
- Demande d'information
Forges-les-Eaux (76440)
Maisons à proximité
Maison neuve, 50 m²
Forges-les-Eaux (76440)
Forges-les-Eaux (76440)
Maison de 4 pièces
Maison neuve, 84,28 m²
Forges-les-Eaux (76440)
Forges-les-Eaux (76440)
Maison de 4 pièces
Maison neuve, 116 m²
Forges-les-Eaux (76440)
Forges-les-Eaux (76440)
Maison de 5 pièces
Maison neuve, 48,75 m²
Forges-les-Eaux (76440)
Forges-les-Eaux (76440)
Maison de 3 pièces
Maison neuve, 75 m²
Forges-les-Eaux (76440)
Forges-les-Eaux (76440)
Maison de 4 pièces
Maison neuve, 150 m²
Forges-les-Eaux (76440)
Forges-les-Eaux (76440)
Maison de 7 pièces
Programmes à proximité
BELCI
Buchy (76750)
Buchy (76750)
Appartements de 3 à 4 pièces
Livraison 2ème trimestre 2027
Contacter MAISONS BALENCY pour recevoir plus d'informations
Remplissez le formulaire ci-dessous, vos informations sont transmises directement au constructeur qui vous contactera par email ou par téléphone afin de traiter votre demande. En savoir plus.
Voir tous nos programmes immobiliers neufs à Forges-les-Eaux