Maison neuve, 104 m² - Fonsorbes (31470)
305 515 €
Fonsorbes (31470)
Proposée par MAISONS FRANCE CONFORT – 4 pièces - 3 chambres - terrain 660 m²
|
|
| MAISONS FRANCE CONFORT |
| (169 avis) |
- Demande d'information
- Prendre rendez-vous
MAISON À CONSTRUIRE : ceci est une annonce d'une maison neuve à construire.
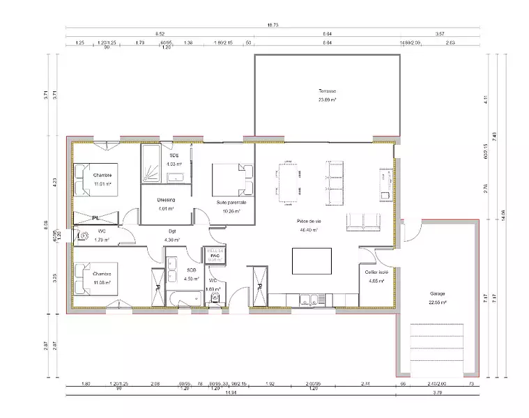
VENTE d'une maison F4 (104 m²) à Fonsorbes
MAISON 4 PIÈCES NEUVE - PROCHE DE TOULOUSE
À vendre : à quelques kilomètres de Toulouse, Maisons France Confort Tournefeuille vous présente cette maison de 4 pièces de plain-pied de 104 m² et de 660 m² de terrain à Fonsorbes (31470).
Conçue de plain-pied, elle dispose de trois chambres, d'une cuisine et de deux salles de bains. Cette maison est neuve.
Elle est à vendre pour la somme de 305 515 €.
Contactez nous pour obtenir de plus amples informations sur la maison.
.
Hors frais annexes.
Annonce proposée par un Agent Commercial Partenaire.
Référence : CC2298704_2
Terrain proposé par un partenaire foncier selon disponibilités et autorisation de publicité au prix de 109 000 €. Hors droit d'enregistrement et frais de notaire. Maison proposée, avec un contrat de construction de maison individuelle, dans le cadre de la loi du 19/12/1990, au prix de 196 515 € (Hors branchements et raccordements, papiers peints, peintures, revêtement de sol dans les chambres, qui sont chiffrés dans les travaux qui restent à charge du client. Tarif modifiable sans préavis). Étiquette énergie : A. Différents modèles disponibles pour ce terrain. Assurances et garanties du constructeur comprises (RC professionnelle, décennale, dommage ouvrage).
Les informations sur les risques auxquels ce bien est exposé sont disponibles sur le site Géorisques : www.georisques.gouv.fr
MAISON 4 PIÈCES NEUVE - PROCHE DE TOULOUSE
À vendre : à quelques kilomètres de Toulouse, Maisons France Confort Tournefeuille vous présente cette maison de 4 pièces de plain-pied de 104 m² et de 660 m² de terrain à Fonsorbes (31470).
Conçue de plain-pied, elle dispose de trois chambres, d'une cuisine et de deux salles de bains. Cette maison est neuve.
Elle est à vendre pour la somme de 305 515 €.
Contactez nous pour obtenir de plus amples informations sur la maison.
.
Hors frais annexes.
Annonce proposée par un Agent Commercial Partenaire.
Référence : CC2298704_2
Terrain proposé par un partenaire foncier selon disponibilités et autorisation de publicité au prix de 109 000 €. Hors droit d'enregistrement et frais de notaire. Maison proposée, avec un contrat de construction de maison individuelle, dans le cadre de la loi du 19/12/1990, au prix de 196 515 € (Hors branchements et raccordements, papiers peints, peintures, revêtement de sol dans les chambres, qui sont chiffrés dans les travaux qui restent à charge du client. Tarif modifiable sans préavis). Étiquette énergie : A. Différents modèles disponibles pour ce terrain. Assurances et garanties du constructeur comprises (RC professionnelle, décennale, dommage ouvrage).
Les informations sur les risques auxquels ce bien est exposé sont disponibles sur le site Géorisques : www.georisques.gouv.fr
- Prix
-
- Prix total : 305 515 €
- Prix du modèle de maison : 196 515 €
- Prix du terrain : 109 000 €
- Terrain
-
- Surface : 660 m²
- Maison
-
- Surface : 104 m²
- Pièces : 4
- Chambres : 3
- Garage : 1
- Être rappelé par un conseiller
- Demander plus d’infos
- Demande d'information
Fonsorbes (31470)
Maisons à proximité
Maison neuve, 102 m²
Fonsorbes (31470)
Fonsorbes (31470)
Maison de 5 pièces
Maison neuve, 126 m²
Fonsorbes (31470)
Fonsorbes (31470)
Maison de 4 pièces
Maison neuve, 120 m²
Fonsorbes (31470)
Fonsorbes (31470)
Maison de 5 pièces
Programmes à proximité
DOMAINE DES SORBIERS (31)
Fonsorbes (31470)
Fonsorbes (31470)
Appartement de 3 pièces
Livraison 2ème trimestre 2026
LES JARDINS DE SAINT GILLES
La Salvetat-Saint-Gilles (31880)
La Salvetat-Saint-Gilles (31880)
Appartement de 3 pièces
Livraison 4ème trimestre 2025
Les Rives du Lac
Tournefeuille (31170)
Tournefeuille (31170)
Appartements de 1 à 4 pièces
Livraison 4ème trimestre 2027
Résidence Saint-Paul
Tournefeuille (31170)
Tournefeuille (31170)
Appartement de 3 pièces
Livraison 4ème trimestre 2025
Aux portes de Toulouse
Tournefeuille (31170)
Tournefeuille (31170)
Appartements de 2 à 3 pièces
Livraison 3ème trimestre 2027
ALLEE DE MARIE-T
Tournefeuille (31170)
Tournefeuille (31170)
Appartements de 2 à 3 pièces et maisons de 4 à 5 pièces
Livraison 2ème trimestre 2027
Contacter MAISONS FRANCE CONFORT pour recevoir plus d'informations
Remplissez le formulaire ci-dessous, vos informations sont transmises directement au constructeur qui vous contactera par email ou par téléphone afin de traiter votre demande. En savoir plus.