Maison neuve, 140 m² - Flayosc (83780)

538 000 €
Flayosc (83780)

Proposée par MAISONS FRANCE CONFORT – 5 pièces - 4 chambres - terrain 1 622 m²

MAISONS FRANCE CONFORT
MAISONS FRANCE CONFORT
(244 avis)
  • Demande d'information
MAISON À CONSTRUIRE : ceci est une annonce d'une maison neuve à construire.
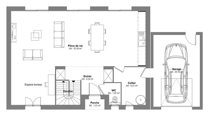
Votre villa neuve de 140m² habitable clé en main à 538 000 euros à Flayosc
Maisons France Confort vous propose une belle villa de 140m² habitable située dans un environnement de qualité, à deux pas des commodités, sur un terrain plat de 1622m².
Confort, modernité et performance :
- Grand espace de vie lumineux
- Cuisine ouverte contemporaine
- Un cellier pour un maximum de rangement
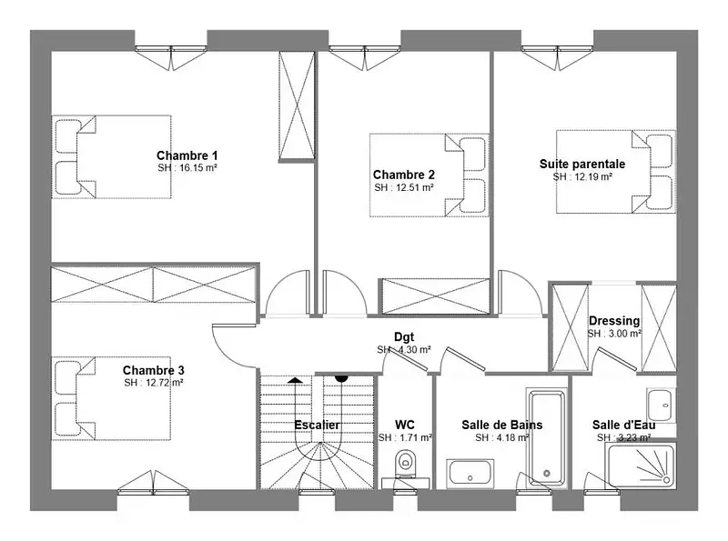
- 4 chambres spacieuses dont une suite parentale avec un dressing et une salle d'eau privative
- Une salle de bains moderne, idéale pour toute la famille
- Un garage
Coté prestations, vous trouverez :
- Une climatisation intégrale avec régulation individuelle pièce par pièce
- Volets roulants électriques motorisés
- Système domotique pour un quotidien simplifié
Performance énergétique RE2020. Grâce à une isolation renforcée et un chauffage économique, cette villa vous assure un confort optimal tout au long de l'année.
Projet clé en main à 538 000 euros Ce prix comprend le terrain, la maison avec garage et les frais de raccordement.
Contactez Véronique CHAUVET pour une étude personnalisée au O6 28 31 67 99
Maisons France Confort, constructeur de maisons individuelles leader en France. Entreprise familiale fondée en 1919.
Référence : VC2344684_3
Terrain proposé par un partenaire foncier selon disponibilités et autorisation de publicité au prix de 219 500 €. Hors droit d'enregistrement et frais de notaire. Terrain + Maison proposés au prix de 318 500 € (Hors branchements et raccordements, papiers peints, peintures, revêtement de sol dans les chambres. Tarif modifiable sans préavis). Etiquette énergie : A. Différents modèles disponibles pour ce terrain. Assurances et garanties du constructeur (RC professionnelle, décennale, dommage ouvrage, garantie de remboursement de l'acompte, livraison à prix et délai convenu) : https://www.maisons-france-confort.fr/mentions-legales/. HEXAOM Services est enregistré auprès de l'ORIAS en tant que Courtier en financement, Niveau 1, sous le numéro 14001345.

Les informations sur les risques auxquels ce bien est exposé sont disponibles sur le site Géorisques : www.georisques.gouv.fr


Prix
  • Prix total : 538 000 €
  • Prix du modèle de maison : 318 500 €
  • Prix du terrain : 219 500 €

Terrain
  • Surface : 1 622 m²

Maison
  • Surface : 140 m²
  • Pièces : 5
  • Chambres : 4
  • Garage : 1

  • Être rappelé par un conseiller
  • Demander plus d’infos
  • Demande d'information
Flayosc (83780)

Programmes à proximité

FLEUR DU NIL
FLEUR DU NIL
Draguignan (83300)

Appartement
Livraison 4ème trimestre 2026

Les Terrasses du Dragon
Les Terrasses du Dragon
Draguignan (83300)

Appartements de 2 à 3 pièces
Livraison 2ème trimestre 2028

Le domaine de la Fée
Le domaine de la Fée
Draguignan (83300)

Appartements de 2 pièces
Livraison 2ème trimestre 2026

Les Jardins de Novaia
Les Jardins de Novaia
Draguignan (83300)

Appartements de 2 à 3 pièces
Livraison 3ème trimestre 2028

Le Domaine des Tourdres
Le Domaine des Tourdres
Draguignan (83300)

Appartements de 3 à 4 pièces
Livraison 3ème trimestre 2029

Le Patio des Lys
Le Patio des Lys
Le Muy (83490)

Appartements de 3 à 4 pièces
Livraison 2ème trimestre 2027

Contacter MAISONS FRANCE CONFORT pour recevoir plus d'informations

Remplissez le formulaire ci-dessous, vos informations sont transmises directement au constructeur qui vous contactera par email ou par téléphone afin de traiter votre demande. En savoir plus.

Voir tous nos programmes immobiliers neufs à Flayosc