Maison neuve, 88 m² - Feytiat (87220)
227 028 €
Feytiat (87220)
Proposée par BABEAU SEGUIN AGENCE DE LIMOGES (87000) – LIMOUSIN – 4 pièces - 3 chambres - terrain 650 m²
|
|
| Babeau Seguin Agence de Limoges (87000) – Limousin |
- Demande d'information
- Prendre rendez-vous
MAISON À CONSTRUIRE : ceci est une annonce d'une maison neuve à construire.
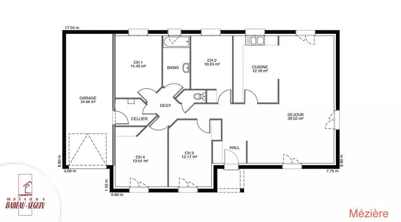
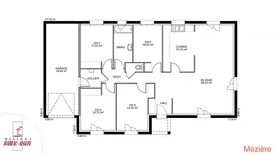
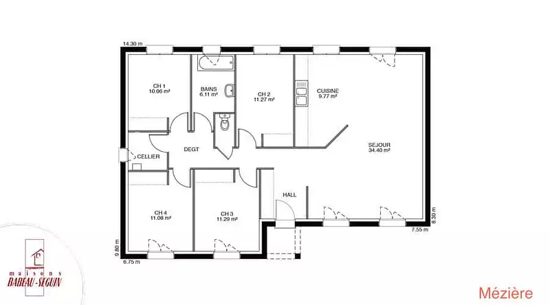
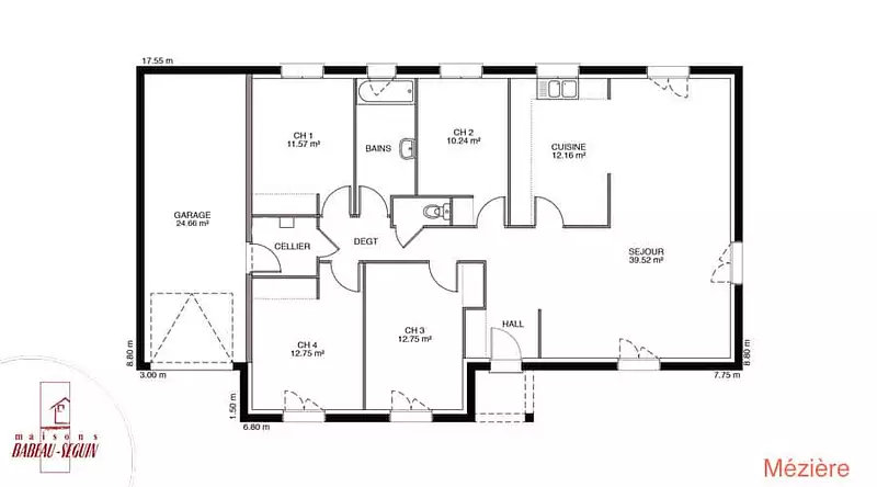
Sur ce terrain, nous vous proposons cette maison neuve, la Mézière Sud, conçue par Babeau-Seguin, constructeur offrant le meilleur rapport qualité/prix du marché. Superbe maison typique du sud, inspirée du modèle à succès Mézière de chez Maisons Babeau-Seguin, cette demeure de 88 m² saura répondre à toutes vos attentes.
Présentant 3 chambres et 4 pièces, la Mézière Sud est idéale pour les familles en quête de confort et de modernité. Son plan en L, disponible en version 2 pans ou 4 pans, offre une disposition harmonieuse et fonctionnelle. Vous pourrez également choisir entre un garage accolé ou un sous-sol, selon vos besoins. Un porche accueillant complète cette maison, ajoutant une touche de charme supplémentaire.
Les options les plus demandées par nos clients, telles que les menuiseries en aluminium et la piscine, sont également disponibles pour personnaliser votre future maison selon vos envies.
Insistons sur le fait que cette maison neuve est basse consommation et conforme à la RE2020, garantissant ainsi des performances énergétiques optimales et un respect de l'environnement.
Véritable coup de cœur pour de nombreux clients Babeau-Seguin, la Mézière Sud est facilement modifiable, ce qui justifie pleinement son succès. Répondant aux besoins de nombreuses familles nous ayant fait confiance, cette maison est une opportunité à ne pas manquer.
N'attendez plus pour découvrir cette maison d'exception et contactez-nous pour plus d'informations.
Référence : 90106
Les informations sur les risques auxquels ce bien est exposé sont disponibles sur le site Géorisques : www.georisques.gouv.fr
Présentant 3 chambres et 4 pièces, la Mézière Sud est idéale pour les familles en quête de confort et de modernité. Son plan en L, disponible en version 2 pans ou 4 pans, offre une disposition harmonieuse et fonctionnelle. Vous pourrez également choisir entre un garage accolé ou un sous-sol, selon vos besoins. Un porche accueillant complète cette maison, ajoutant une touche de charme supplémentaire.
Les options les plus demandées par nos clients, telles que les menuiseries en aluminium et la piscine, sont également disponibles pour personnaliser votre future maison selon vos envies.
Insistons sur le fait que cette maison neuve est basse consommation et conforme à la RE2020, garantissant ainsi des performances énergétiques optimales et un respect de l'environnement.
Véritable coup de cœur pour de nombreux clients Babeau-Seguin, la Mézière Sud est facilement modifiable, ce qui justifie pleinement son succès. Répondant aux besoins de nombreuses familles nous ayant fait confiance, cette maison est une opportunité à ne pas manquer.
N'attendez plus pour découvrir cette maison d'exception et contactez-nous pour plus d'informations.
Référence : 90106
Les informations sur les risques auxquels ce bien est exposé sont disponibles sur le site Géorisques : www.georisques.gouv.fr
- Prix
-
- Prix total : 227 028 €
- Prix du modèle de maison : 157 028 €
- Prix du terrain : 70 000 €
- Terrain
-
- Surface : 650 m²
- Maison
-
- Surface : 88 m²
- Pièces : 4
- Chambres : 3
- Être rappelé par un conseiller
- Demander plus d’infos
- Demande d'information
Feytiat (87220)
Maisons à proximité
Maison neuve, 85 m²
Feytiat (87220)
Feytiat (87220)
Maison de 5 pièces
Maison neuve, 92 m²
Feytiat (87220)
Feytiat (87220)
Maison de 4 pièces
Maison neuve, 153 m²
Feytiat (87220)
Feytiat (87220)
Maison de 6 pièces
Maison neuve, 88 m²
Feytiat (87220)
Feytiat (87220)
Maison de 4 pièces
Maison neuve, 80 m²
Feytiat (87220)
Feytiat (87220)
Maison de 3 pièces
Maison neuve, 118 m²
Feytiat (87220)
Feytiat (87220)
Maison de 6 pièces
Programmes à proximité
KAOL'IN
Limoges (87000)
Limoges (87000)
Appartements de 1 pièce
Livraison 3ème trimestre 2026
Le 153
Couzeix (87270)
Couzeix (87270)
Appartements de 2 à 4 pièces
Livraison 2ème trimestre 2026
Contacter BABEAU SEGUIN AGENCE DE LIMOGES (87000) – LIMOUSIN pour recevoir plus d'informations
Remplissez le formulaire ci-dessous, vos informations sont transmises directement au constructeur qui vous contactera par email ou par téléphone afin de traiter votre demande. En savoir plus.