Maison neuve, 118 m² - Fareins (01480)
315 000 €
Fareins (01480)
Proposée par MAISONS PUNCH SAINT PRIEST – 5 pièces - 4 chambres - terrain 400 m²
|
|
| Maisons PUNCH Saint Priest |
| (57 avis) |
- Demande d'information
- Prendre rendez-vous
MAISON À CONSTRUIRE : ceci est une annonce d'une maison neuve à construire.
10 m² OFFERT + CUISINE OFFERTE + PACK DECO OFFERT (peintures + parquet des chambres + faïence sdb + placards pour nos 50 ans.
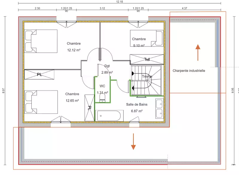
Projet de Construction d'une Maison Neuve de 118 m²
Nous sommes ravis de vous présenter notre projet de construction d'une magnifique maison neuve, située sur un terrain spacieux de 400 m² sur la commune de Fareins à 100m de l'école et de toutes les commodités.
Caractéristiques du bien :
Superficie totale : 105 m²
4 chambres confortables, dont une suite parentale avec douche à l'italienne
Plancher chauffant pour un confort optimal tout au long de l'année
Volets roulants motorisés pour une sécurité accrue et une gestion aisée de la luminosité
Cette maison est conçue pour offrir à ses occupants un cadre de vie exceptionnel, alliant confort, modernité et fonctionnalité. Les espaces intérieurs sont pensés pour maximiser la convivialité et le bien-être familial, tout en offrant des finitions de qualité supérieure.
Le terrain généreux permettra également d'aménager un jardin spacieux et agréable, idéal pour des moments de détente en plein air ou des activités en famille.
Contactez-nous dès aujourd'hui pour en savoir plus sur ce projet de construction exceptionnel.
Référence : 5436 DUFOR Arnaud
Terrain proposé et vendu par notre partenaire foncier selon disponibilités, le constructeur n’étant pas mandaté pour réaliser la vente du terrain. Prix terrain inclus : 125 000 € Frais de notaire non inclus : € Prix maison inclus : 190 000 € VRD non inclus : € Hors aménagements extérieurs (extensions, terrasse, piscine etc), papiers peints, peintures, moquettes dans les chambres (tarif en vigueur au 20 mai 2025, modifiable sans préavis, prix variables suivant les prestations souhaitées). Hors frais d’hypothèque. Différents modèles disponibles pour chaque terrain. Assurance RC professionnelle/décennale/dommage ouvrage groupe Aviva. Garantie de remboursement de l'acompte/livraison à prix et délai convenu CGI. Partenaire financier : à préciser Le numéro de TVA intracommunautaire : FR 14 498 627 272 00012 Contact : contact@maisons-punch.fr
Les informations sur les risques auxquels ce bien est exposé sont disponibles sur le site Géorisques : www.georisques.gouv.fr
Projet de Construction d'une Maison Neuve de 118 m²
Nous sommes ravis de vous présenter notre projet de construction d'une magnifique maison neuve, située sur un terrain spacieux de 400 m² sur la commune de Fareins à 100m de l'école et de toutes les commodités.
Caractéristiques du bien :
Superficie totale : 105 m²
4 chambres confortables, dont une suite parentale avec douche à l'italienne
Plancher chauffant pour un confort optimal tout au long de l'année
Volets roulants motorisés pour une sécurité accrue et une gestion aisée de la luminosité
Cette maison est conçue pour offrir à ses occupants un cadre de vie exceptionnel, alliant confort, modernité et fonctionnalité. Les espaces intérieurs sont pensés pour maximiser la convivialité et le bien-être familial, tout en offrant des finitions de qualité supérieure.
Le terrain généreux permettra également d'aménager un jardin spacieux et agréable, idéal pour des moments de détente en plein air ou des activités en famille.
Contactez-nous dès aujourd'hui pour en savoir plus sur ce projet de construction exceptionnel.
Référence : 5436 DUFOR Arnaud
Terrain proposé et vendu par notre partenaire foncier selon disponibilités, le constructeur n’étant pas mandaté pour réaliser la vente du terrain. Prix terrain inclus : 125 000 € Frais de notaire non inclus : € Prix maison inclus : 190 000 € VRD non inclus : € Hors aménagements extérieurs (extensions, terrasse, piscine etc), papiers peints, peintures, moquettes dans les chambres (tarif en vigueur au 20 mai 2025, modifiable sans préavis, prix variables suivant les prestations souhaitées). Hors frais d’hypothèque. Différents modèles disponibles pour chaque terrain. Assurance RC professionnelle/décennale/dommage ouvrage groupe Aviva. Garantie de remboursement de l'acompte/livraison à prix et délai convenu CGI. Partenaire financier : à préciser Le numéro de TVA intracommunautaire : FR 14 498 627 272 00012 Contact : contact@maisons-punch.fr
Les informations sur les risques auxquels ce bien est exposé sont disponibles sur le site Géorisques : www.georisques.gouv.fr
- Prix
-
- Prix total : 315 000 €
- Prix du modèle de maison : 190 000 €
- Prix du terrain : 125 000 €
- Terrain
-
- Surface : 400 m²
- Maison
-
- Surface : 118 m²
- Pièces : 5
- Chambres : 4
- Salle de bains : 1
- Garage : 1
- Surface garage : 19 m²
- Être rappelé par un conseiller
- Demander plus d’infos
- Demande d'information
Fareins (01480)
Maisons à proximité
Maison neuve, 94 m²
Fareins (01480)
Fareins (01480)
Maison de 4 pièces
Maison neuve, 79 m²
Fareins (01480)
Fareins (01480)
Maison de 4 pièces
Maison neuve, 120 m²
Fareins (01480)
Fareins (01480)
Maison de 5 pièces
Maison neuve, 100 m²
Fareins (01480)
Fareins (01480)
Maison de 6 pièces
Maison neuve, 95 m²
Fareins (01480)
Fareins (01480)
Maison de 4 pièces
Maison neuve, 79 m²
Fareins (01480)
Fareins (01480)
Maison de 4 pièces
Programmes à proximité
RIVE GAUCHE
Jassans-Riottier (01480)
Jassans-Riottier (01480)
Appartements de 2 à 4 pièces
RIVE GAUCHE 2
Jassans-Riottier (01480)
Jassans-Riottier (01480)
Appartements de 2 à 4 pièces
Le Clos des Amandiers
Jassans-Riottier (01480)
Jassans-Riottier (01480)
Appartements de 2 à 4 pièces
Livraison 1er trimestre 2028
Prélude
Villefranche-sur-Saône (69400)
Villefranche-sur-Saône (69400)
Appartements de 2 à 5 pièces
Livraison 2ème trimestre 2027
Les Loges du Parc
Villefranche-sur-Saône (69400)
Villefranche-sur-Saône (69400)
Appartements de 2 à 4 pièces
Livraison 4ème trimestre 2028
Les Allées Fleurie
Saint-Georges-de-Reneins (69830)
Saint-Georges-de-Reneins (69830)
Appartements de 2 à 4 pièces
Livraison 4ème trimestre 2027
Contacter MAISONS PUNCH SAINT PRIEST pour recevoir plus d'informations
Remplissez le formulaire ci-dessous, vos informations sont transmises directement au constructeur qui vous contactera par email ou par téléphone afin de traiter votre demande. En savoir plus.