Maison neuve, 148 m² - Equevilley (70160)
289 860 €
Equevilley (70160)
Proposée par BATILOR AGENCE D’ EPINAL (88000) – VOSGES – RÉGION – 5 pièces - 4 chambres - terrain 7 394 m²
|
|
| Batilor Agence d’ Epinal (88000) – Vosges – Région |
- Demande d'information
- Prendre rendez-vous
MAISON À CONSTRUIRE : ceci est une annonce d'une maison neuve à construire.
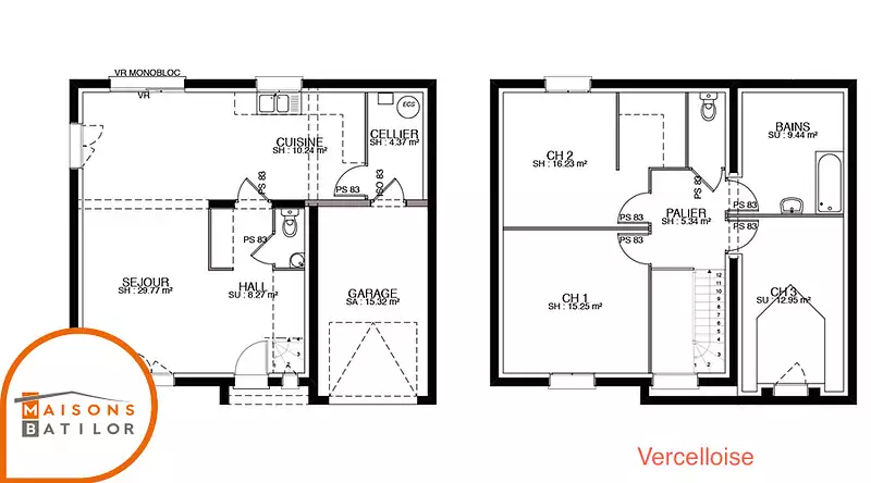
Nous vous proposons cette maison neuve, baptisée la Vercelloise, un modèle de résidence qui allie avec brio fonctionnalité et esthétique moderne. Conçue pour s'adapter parfaitement aux terrains urbains ou étroits, cette maison à étage offre une surface habitable de 148 m², optimisée pour répondre aux besoins d'une vie familiale épanouie.
La Vercelloise se distingue par son étage sur dalle béton, une caractéristique qui garantit solidité et durabilité. L'architecture de cette demeure est pensée pour maximiser l'espace disponible, offrant ainsi quatre chambres spacieuses et un total de quatre pièces vivantes, conçues pour accueillir confort et intimité. Le porche d'entrée, élégant et accueillant, ajoute une touche de charme à l'ensemble, invitant famille et amis dans un intérieur chaleureux et lumineux.
L'ingéniosité de sa conception réside dans l'association harmonieuse entre les parties aux murs droits et les combles aménagés, couronnés par une lucarne qui baigne l'espace de lumière naturelle. Cette configuration permet de proposer une surface habitable significative tout en conservant une longueur de façade minimale, idéale pour les terrains étroits.
La Vercelloise est également une maison basse consommation, conforme à la norme RE2020, ce qui assure à ses occupants une efficacité énergétique optimale et un confort de vie inégalé tout au long de l'année. Cette maison est donc non seulement un choix écologique mais aussi économique, réduisant significativement les dépenses énergétiques.
Parmi les options les plus plébiscitées par nos clients, la Vercelloise offre la possibilité d'ajouter des aménagements personnalisés pour répondre au mieux à vos attentes et besoins spécifiques. Chaque détail de cette maison a été pensé pour garantir une qualité de vie supérieure, dans un cadre élégant et fonctionnel.
La Vercelloise est la maison familiale par excellence, offrant espace, confort et modernité. Elle est la candidate idéale pour ceux qui cherchent à combiner le ch
Référence : 23276
Les informations sur les risques auxquels ce bien est exposé sont disponibles sur le site Géorisques : www.georisques.gouv.fr
La Vercelloise se distingue par son étage sur dalle béton, une caractéristique qui garantit solidité et durabilité. L'architecture de cette demeure est pensée pour maximiser l'espace disponible, offrant ainsi quatre chambres spacieuses et un total de quatre pièces vivantes, conçues pour accueillir confort et intimité. Le porche d'entrée, élégant et accueillant, ajoute une touche de charme à l'ensemble, invitant famille et amis dans un intérieur chaleureux et lumineux.
L'ingéniosité de sa conception réside dans l'association harmonieuse entre les parties aux murs droits et les combles aménagés, couronnés par une lucarne qui baigne l'espace de lumière naturelle. Cette configuration permet de proposer une surface habitable significative tout en conservant une longueur de façade minimale, idéale pour les terrains étroits.
La Vercelloise est également une maison basse consommation, conforme à la norme RE2020, ce qui assure à ses occupants une efficacité énergétique optimale et un confort de vie inégalé tout au long de l'année. Cette maison est donc non seulement un choix écologique mais aussi économique, réduisant significativement les dépenses énergétiques.
Parmi les options les plus plébiscitées par nos clients, la Vercelloise offre la possibilité d'ajouter des aménagements personnalisés pour répondre au mieux à vos attentes et besoins spécifiques. Chaque détail de cette maison a été pensé pour garantir une qualité de vie supérieure, dans un cadre élégant et fonctionnel.
La Vercelloise est la maison familiale par excellence, offrant espace, confort et modernité. Elle est la candidate idéale pour ceux qui cherchent à combiner le ch
Référence : 23276
Les informations sur les risques auxquels ce bien est exposé sont disponibles sur le site Géorisques : www.georisques.gouv.fr
- Prix
-
- Prix total : 289 860 €
- Prix du modèle de maison : 254 860 €
- Prix du terrain : 35 000 €
- Terrain
-
- Surface : 7 394 m²
- Maison
-
- Surface : 148 m²
- Pièces : 5
- Chambres : 4
- Être rappelé par un conseiller
- Demander plus d’infos
- Demande d'information
Equevilley (70160)
Maisons à proximité
Maison neuve, 91 m²
Breurey-lès-Faverney (70160)
Breurey-lès-Faverney (70160)
Maison de 4 pièces
Maison neuve, 88 m²
Faverney (70160)
Faverney (70160)
Maison de 4 pièces
Maison neuve, 79 m²
Faverney (70160)
Faverney (70160)
Maison de 4 pièces
Maison neuve, 96 m²
Faverney (70160)
Faverney (70160)
Maison de 5 pièces
Maison neuve, 96 m²
Fleurey-lès-Faverney (70160)
Fleurey-lès-Faverney (70160)
Maison de 5 pièces
Maison neuve, 80 m²
Fleurey-lès-Faverney (70160)
Fleurey-lès-Faverney (70160)
Maison de 4 pièces
Programmes à proximité
Contacter BATILOR AGENCE D’ EPINAL (88000) – VOSGES – RÉGION pour recevoir plus d'informations
Remplissez le formulaire ci-dessous, vos informations sont transmises directement au constructeur qui vous contactera par email ou par téléphone afin de traiter votre demande. En savoir plus.