Maison neuve, 110 m² - Epinay-sur-Orge (91360)

459 228 €
Epinay-sur-Orge (91360)

Proposée par MAISONS BALENCY – 5 pièces - 4 chambres - terrain 315 m²

MAISONS BALENCY
MAISONS BALENCY
  • Demande d'information
MAISON À CONSTRUIRE : ceci est une annonce d'une maison neuve à construire.
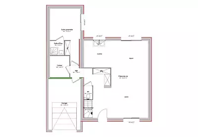
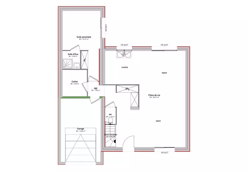
Maison de pièces (110 m²) à vendre à Épinay-sur-Orge
PROCHE GARE RER e TRAM T12- MAISON 5 PIÈCES NEUVE
En vente : à deux pas du RER C (15 min de Paris), laissez vous charmer par, dans Épinay-sur-Orge (91360), proche de la gare, cette maison de 4 pièces de 110 m² et de 315 m² de terrain. Son intérieur est composé de quatre chambres dont une suite parentale en RDC, Une pièce de vie de 45m² très lumineuse avec de larges baies vitrées et de deux salles de bains.
Il s'agit d'une maison de 2 niveaux. Elle est neuve RE2020 toute dernière génération.
Cinq établissements scolaires sont implantés à moins de 10 minutes à pied. Niveau transports, on trouve la ligne de RER C et TRAM T12(Épinay-Sur-Orge) ainsi que deux gares (Épinay-sur-Orge et Petit Vaux) dans un rayon de 1 km. Il y a une bibliothèque, deux tennis, quatre boulangeries, des commerces, un supermarché, trois épiceries et des boucheries charcuteries à quelques minutes.
Elle est proposée à l'achat pour 459 228 €. ( hors frais de notaire prévoir env 16500€) hors décoration et aménagements
Maison à très basse consommation, Réalisation en brique de terre cuite, isolation intérieure renforcée bio ressourcée, pompe à chaleur, plancher chauffant, domotique... toutes assurances comprises " dommage ouvrage"..., Frais d'architecte inclus(Réalisation sur Mesure exclusive des Maisons Balency agence de La ville du Bois Domexpo Sud )
Référence : JJP2294529_1
Terrain proposé par un partenaire foncier selon disponibilités et autorisation de publicité au prix de 192 000 €. Hors droit d'enregistrement et frais de notaire. Maison proposée, avec un contrat de construction de maison individuelle, dans le cadre de la loi du 19/12/1990, au prix de 267 228 € (Hors branchements et raccordements, papiers peints, peintures, revêtement de sol dans les chambres, qui sont chiffrés dans les travaux qui restent à charge du client. Tarif modifiable sans préavis). Étiquette énergie : A. Différents modèles disponibles pour ce terrain. Assurances et garanties du constructeur comprises (RC professionnelle, décennale, dommage ouvrage).

Les informations sur les risques auxquels ce bien est exposé sont disponibles sur le site Géorisques : www.georisques.gouv.fr


Prix
  • Prix total : 459 228 €
  • Prix du modèle de maison : 267 228 €
  • Prix du terrain : 192 000 €

Terrain
  • Surface : 315 m²

Maison
  • Surface : 110 m²
  • Pièces : 5
  • Chambres : 4
  • Garage : 1

  • Être rappelé par un conseiller
  • Demander plus d’infos
  • Demande d'information
Epinay-sur-Orge (91360)

Programmes à proximité

Nouvel Horizon
Nouvel Horizon
Epinay-sur-Orge (91360)

Appartements de 2 à 3 pièces
Livraison 2ème trimestre 2027

Initial
Initial
Chilly-Mazarin (91380)

Appartements de 1 à 3 pièces
Livraison 2ème trimestre 2027

LE VERGER D'EFFIAT
LE VERGER D'EFFIAT
Chilly-Mazarin (91380)

Appartements de 1 à 4 pièces
Livraison 2ème trimestre 2027

Les Balcons de Chilly
Les Balcons de Chilly
Chilly-Mazarin (91380)

Appartements de 1 à 3 pièces
Livraison 4ème trimestre 2026

REGARDS SUR SEINE
REGARDS SUR SEINE
Viry-Châtillon (91170)

Appartements de 1 à 5 pièces
Livraison 4ème trimestre 2027

Prochainement
Prochainement
Sainte-Geneviève-des-Bois (91700)

Appartements de 1 à 3 pièces
Livraison 4ème trimestre 2028

Contacter MAISONS BALENCY pour recevoir plus d'informations

Remplissez le formulaire ci-dessous, vos informations sont transmises directement au constructeur qui vous contactera par email ou par téléphone afin de traiter votre demande. En savoir plus.

Voir tous nos programmes immobiliers neufs à Epinay-sur-Orge