Maison neuve, 110 m² - Ebersviller (57320)

281 322 €
Ebersviller (57320)

Proposée par MAISONS VESTA AGENCE DE YUTZ (57) – 5 pièces - 4 chambres - terrain 400 m²

Maisons Vesta Agence de Yutz (57)
Maisons Vesta Agence de Yutz (57)
  • Demande d'information
MAISON À CONSTRUIRE : ceci est une annonce d'une maison neuve à construire.
Nous vous proposons cette maison neuve, baptisée FLORES, un modèle d'habitation qui allie élégance, fonctionnalité et respect de l'environnement. Conçue spécifiquement pour s'adapter aux terrains en pente, cette maison de 110 m² offre un cadre de vie idéal pour toute la famille.
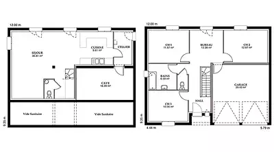
FLORES se distingue par son architecture intelligente et son agencement optimisé sur demi-niveau, offrant ainsi un espace de vie spacieux et lumineux. Au rez-de-chaussée, vous serez accueillis par un double garage pratique, suivi de trois chambres confortables, dont une spacieuse de plus de 13 m². Ces pièces sont judicieusement disposées autour d'un espace bureau central, créant ainsi un lieu de vie à la fois intime et convivial. Une salle de bains moderne et un WC indépendant complètent cet étage, garantissant confort et fonctionnalité.
Le niveau inférieur révèle une cuisine moderne de près de 15 m², conçue pour s'adapter à toutes les dynamiques familiales. Son ouverture sur un vaste salon/séjour de plus de 42 m² crée un espace accueillant, idéal pour recevoir amis et famille dans les meilleures conditions. Un second WC et un cellier pratique viennent parfaire cet espace, offrant ainsi toutes les commodités nécessaires au quotidien.
FLORES intègre les options les plus plébiscitées par nos clients, telles que des menuiseries en aluminium de haute qualité et un système de domotique avancé, pour une maison connectée répondant à toutes vos attentes. De plus, cette maison est construite avec une dalle étage en béton, assurant solidité et durabilité.
Conforme à la norme RE2020, FLORES est une maison basse consommation, conçue dans le respect de l'environnement et des dernières réglementations énergétiques. Ce modèle est donc un choix idéal pour ceux qui cherchent à allier confort de vie et responsabilité écologique.
Choisir FLORES, c'est opter pour une maison neuve qui répond à toutes vos exigences de confort, de style et de durabilité. Ne manquez pas l'opportunité de construire la maison de
Référence : 8302

Les informations sur les risques auxquels ce bien est exposé sont disponibles sur le site Géorisques : www.georisques.gouv.fr


Prix
  • Prix total : 281 322 €
  • Prix du modèle de maison : 225 322 €
  • Prix du terrain : 56 000 €

Terrain
  • Surface : 400 m²

Maison
  • Surface : 110 m²
  • Pièces : 5
  • Chambres : 4

  • Être rappelé par un conseiller
  • Demander plus d’infos
  • Demande d'information
Ebersviller (57320)

Programmes à proximité

LES VILLAS FLORA
LES VILLAS FLORA
Basse-Ham (57970)

Appartements de 3 à 4 pièces
Livraison 2ème trimestre 2026

LE HAMEAU DES HIRONDELLES
LE HAMEAU DES HIRONDELLES
Cattenom (57570)

Appartements de 3 à 4 pièces
Livraison 4ème trimestre 2026

Villa Margueritte
Villa Margueritte
Cattenom (57570)

Appartements de 2 à 4 pièces
Livraison 2ème trimestre 2027

Résidence SOLSTICE
Résidence SOLSTICE
Thionville (57100)

Appartements de 1 à 5 pièces
Livraison 2ème trimestre 2028

Golden Park
Golden Park
Thionville (57100)

Appartements de 2 à 4 pièces
Livraison 3ème trimestre 2027

A l'ombre des platanes
A l'ombre des platanes
Thionville (57100)

Appartements de 3 à 4 pièces
Livraison 1er trimestre 2026

Contacter MAISONS VESTA AGENCE DE YUTZ (57) pour recevoir plus d'informations

Remplissez le formulaire ci-dessous, vos informations sont transmises directement au constructeur qui vous contactera par email ou par téléphone afin de traiter votre demande. En savoir plus.

Voir tous nos programmes immobiliers neufs à Ebersviller