Maison neuve, 80 m² - Draguignan (83300)

399 000 €
Draguignan (83300)

Proposée par MAISONS FRANCE CONFORT – 4 pièces - 3 chambres - terrain 800 m²

MAISONS FRANCE CONFORT
MAISONS FRANCE CONFORT
(244 avis)
  • Demande d'information
MAISON À CONSTRUIRE : ceci est une annonce d'une maison neuve à construire.
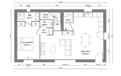
Maisons France Confort vous propose ce modèle en étage partiel. C'est une maison qui s'adapte à une emprise au sol restreinte et qui permet un aménagement intérieur comprenant au RDC une partie à vivre et une suite parentale avec SDE et dressing. A l'étage, 2 à 3 chambres avec une SDB et WC séparé. Cette architecture donne du cachet et s'adapte autant au style provençal, que contemporain ! Se décline en multiple surface habitable...
CONTACTEZ Alice GELOSA au 06 28 31 68 00 pour plus de renseignements - Maisons France Confort Trans en Provence.
Référence : AG2412603_2
Terrain proposé par un partenaire foncier selon disponibilités et autorisation de publicité au prix de 150 000 €. Hors droit d'enregistrement et frais de notaire. Terrain + Maison proposés au prix de 249 000 € (Hors branchements et raccordements, papiers peints, peintures, revêtement de sol dans les chambres. Tarif modifiable sans préavis). Etiquette énergie : A. Différents modèles disponibles pour ce terrain. Assurances et garanties du constructeur (RC professionnelle, décennale, dommage ouvrage, garantie de remboursement de l'acompte, livraison à prix et délai convenu) : https://www.maisons-france-confort.fr/mentions-legales/. HEXAOM Services est enregistré auprès de l'ORIAS en tant que Courtier en financement, Niveau 1, sous le numéro 14001345.

Les informations sur les risques auxquels ce bien est exposé sont disponibles sur le site Géorisques : www.georisques.gouv.fr


Prix
  • Prix total : 399 000 €
  • Prix du modèle de maison : 249 000 €
  • Prix du terrain : 150 000 €

Terrain
  • Surface : 800 m²

Maison
  • Surface : 80 m²
  • Pièces : 4
  • Chambres : 3

  • Être rappelé par un conseiller
  • Demander plus d’infos
  • Demande d'information
Draguignan (83300)

Programmes à proximité

FLEUR DU NIL
FLEUR DU NIL
Draguignan (83300)

Appartement
Livraison 4ème trimestre 2026

Les Terrasses du Dragon
Les Terrasses du Dragon
Draguignan (83300)

Appartements de 2 à 3 pièces
Livraison 2ème trimestre 2028

Le domaine de la Fée
Le domaine de la Fée
Draguignan (83300)

Appartements de 2 à 3 pièces
Livraison 2ème trimestre 2026

Les Jardins de Novaia
Les Jardins de Novaia
Draguignan (83300)

Appartements de 2 à 3 pièces
Livraison 3ème trimestre 2028

Le Domaine des Tourdres
Le Domaine des Tourdres
Draguignan (83300)

Appartements de 3 à 4 pièces
Livraison 3ème trimestre 2029

Le Patio des Lys
Le Patio des Lys
Le Muy (83490)

Appartements de 3 à 4 pièces
Livraison 2ème trimestre 2027

Contacter MAISONS FRANCE CONFORT pour recevoir plus d'informations

Remplissez le formulaire ci-dessous, vos informations sont transmises directement au constructeur qui vous contactera par email ou par téléphone afin de traiter votre demande. En savoir plus.

Voir tous nos programmes immobiliers neufs à Draguignan