Maison neuve, 113 m² - Draguignan (83300)

428 000 €
Draguignan (83300)

Proposée par MAISONS FRANCE CONFORT – 5 pièces - 4 chambres - terrain 1 654 m²

MAISONS FRANCE CONFORT
MAISONS FRANCE CONFORT
(244 avis)
  • Demande d'information
MAISON À CONSTRUIRE : ceci est une annonce d'une maison neuve à construire.
Projet de construction à Draguignan
Coup de coeur pour cette belle villa neuve de 113m² habitable sur un terrain de 1654m² à proximité des commodités.
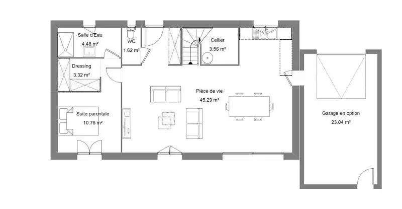
Cette villa offre une vaste pièce de vie climatisée de 45m² avec cuisine ouverte. L'agencement de cet espace ouvrant par une grande baie sur le jardin, lui confère une ambiance chaleureuse. 4 chambres dont une suite parentale en rez de chaussée avec sa salle d'eau privative et son dressing, de nombreux espaces de rangements et une salle de bains familiale complètent harmonieusement ce bien.
Notre avis : les volumes, la situation et les prestations de cette villa lui donnent tout son charme et sa rareté. Villa neuve entièrement climatisée aux normes RE2020 avec la possibilité d'y ajouter un garage.
Son prix clefs en mains 428 000 euros incluant la villa, le terrain, ainsi que le coût des raccordements.
Pour tous renseignements et une étude personnalisée, contactez Véronique CHAUVET au O6.28.31.67.99
Maisons France Confort agence de Trans en Provence constructeur de maisons individuelles leader en France. Entreprise familiale fondée en 1919.
Référence : VC2365531_3
Terrain proposé par un partenaire foncier selon disponibilités et autorisation de publicité au prix de 155 000 €. Hors droit d'enregistrement et frais de notaire. Terrain + Maison proposés au prix de 273 000 € (Hors branchements et raccordements, papiers peints, peintures, revêtement de sol dans les chambres. Tarif modifiable sans préavis). Etiquette énergie : A. Différents modèles disponibles pour ce terrain. Assurances et garanties du constructeur (RC professionnelle, décennale, dommage ouvrage, garantie de remboursement de l'acompte, livraison à prix et délai convenu) : https://www.maisons-france-confort.fr/mentions-legales/. HEXAOM Services est enregistré auprès de l'ORIAS en tant que Courtier en financement, Niveau 1, sous le numéro 14001345.

Les informations sur les risques auxquels ce bien est exposé sont disponibles sur le site Géorisques : www.georisques.gouv.fr


Prix
  • Prix total : 428 000 €
  • Prix du modèle de maison : 273 000 €
  • Prix du terrain : 155 000 €

Terrain
  • Surface : 1 654 m²

Maison
  • Surface : 113 m²
  • Pièces : 5
  • Chambres : 4
  • Garage : 1

  • Être rappelé par un conseiller
  • Demander plus d’infos
  • Demande d'information
Draguignan (83300)

Programmes à proximité

FLEUR DU NIL
FLEUR DU NIL
Draguignan (83300)

Appartement
Livraison 4ème trimestre 2026

Les Terrasses du Dragon
Les Terrasses du Dragon
Draguignan (83300)

Appartements de 2 à 3 pièces
Livraison 2ème trimestre 2028

Le domaine de la Fée
Le domaine de la Fée
Draguignan (83300)

Appartements de 2 à 3 pièces
Livraison 2ème trimestre 2026

Les Jardins de Novaia
Les Jardins de Novaia
Draguignan (83300)

Appartements de 2 à 3 pièces
Livraison 3ème trimestre 2028

Le Domaine des Tourdres
Le Domaine des Tourdres
Draguignan (83300)

Appartements de 3 à 4 pièces
Livraison 3ème trimestre 2029

Le Patio des Lys
Le Patio des Lys
Le Muy (83490)

Appartements de 3 à 4 pièces
Livraison 2ème trimestre 2027

Contacter MAISONS FRANCE CONFORT pour recevoir plus d'informations

Remplissez le formulaire ci-dessous, vos informations sont transmises directement au constructeur qui vous contactera par email ou par téléphone afin de traiter votre demande. En savoir plus.

Voir tous nos programmes immobiliers neufs à Draguignan