Maison neuve, 140 m² - Draguignan (83300)

460 000 €
Draguignan (83300)

Proposée par MAISONS FRANCE CONFORT – 5 pièces - 4 chambres - terrain 1 155 m²

MAISONS FRANCE CONFORT
MAISONS FRANCE CONFORT
(241 avis)
  • Demande d'information
MAISON À CONSTRUIRE : ceci est une annonce d'une maison neuve à construire.
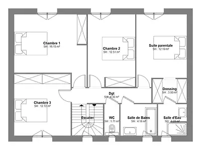
Votre villa neuve de 140m² habitable clé en main à 460 000 euros à Draguignan
Maisons France Confort vous propose une belle villa de 140m² habitable située dans un environnement de qualité, à deux pas des commodités, sur un terrain de 1 155m².
Confort, modernité et performance :
- Grand espace de vie de 55m² très lumineux
- Cuisine ouverte contemporaine
- Un cellier pour un maximum de rangement
- 4 chambres spacieuses dont une suite parentale avec un dressing et une salle d'eau privative
- Une salle de bains moderne, idéale pour toute la famille
- Possibilité d'y ajouter un garage
Coté prestations, vous trouverez :
- Une climatisation sur l'ensemble de la villa avec régulation individuelle pièce par pièce
- Des volets roulants électriques motorisés
- Un système domotique pour un quotidien simplifié
Performance énergétique RE2020. Grâce à une isolation renforcée et un chauffage économique, cette villa vous assure un confort optimal tout au long de l'année.
Projet clé en main à 460 000 euros. Ce prix comprend le terrain, la villa et les frais de raccordement.Maisons France Confort, constructeur de maisons individuelles leader en France. Entreprise familiale fondée en 1919.
Référence : VC2251356_3
Terrain proposé par un partenaire foncier selon disponibilités et autorisation de publicité au prix de 161 000 €. Hors droit d'enregistrement et frais de notaire. Maison proposée, avec un contrat de construction de maison individuelle, dans le cadre de la loi du 19/12/1990, au prix de 299 000 € (Hors branchements et raccordements, papiers peints, peintures, revêtement de sol dans les chambres, qui sont chiffrés dans les travaux qui restent à charge du client. Tarif modifiable sans préavis). Étiquette énergie : A. Différents modèles disponibles pour ce terrain. Assurances et garanties du constructeur comprises (RC professionnelle, décennale, dommage ouvrage).

Les informations sur les risques auxquels ce bien est exposé sont disponibles sur le site Géorisques : www.georisques.gouv.fr


Prix
  • Prix total : 460 000 €
  • Prix du modèle de maison : 299 000 €
  • Prix du terrain : 161 000 €

Terrain
  • Surface : 1 155 m²

Maison
  • Surface : 140 m²
  • Pièces : 5
  • Chambres : 4
  • Garage : 1

  • Être rappelé par un conseiller
  • Demander plus d’infos
  • Demande d'information
Draguignan (83300)

Programmes à proximité

Les Jardins de Novaia
Les Jardins de Novaia
Draguignan (83300)

Appartements de 2 à 3 pièces
Livraison 4ème trimestre 2027

Fleur du Nil
Fleur du Nil
Draguignan (83300)

Appartements de 2 à 3 pièces
Livraison 4ème trimestre 2026

Le domaine de la Fée
Le domaine de la Fée
Draguignan (83300)

Appartements de 2 pièces
Livraison 2ème trimestre 2026

Le Domaine des Tourdres
Le Domaine des Tourdres
Draguignan (83300)

Appartements de 3 à 4 pièces
Livraison 3ème trimestre 2029

Le Patio des Lys
Le Patio des Lys
Le Muy (83490)

Appartements de 2 à 4 pièces
Livraison 2ème trimestre 2027

TERRA ESTRELLA
TERRA ESTRELLA
Puget-sur-Argens (83480)

Appartements de 2 à 4 pièces et maison de 4 pièces
Livraison 4ème trimestre 2027

Contacter MAISONS FRANCE CONFORT pour recevoir plus d'informations

Remplissez le formulaire ci-dessous, vos informations sont transmises directement au constructeur qui vous contactera par email ou par téléphone afin de traiter votre demande. En savoir plus.

Voir tous nos programmes immobiliers neufs à Draguignan