Maison neuve, 120 m² - Draguignan (83300)

412 000 €
Draguignan (83300)

Proposée par MAISONS FRANCE CONFORT – 5 pièces - 4 chambres - terrain 1 155 m²

MAISONS FRANCE CONFORT
MAISONS FRANCE CONFORT
(241 avis)
  • Demande d'information
MAISON À CONSTRUIRE : ceci est une annonce d'une maison neuve à construire.
Projet de construction à Draguignan
Venez découvrir cette belle villa neuve de 120m² habitable sur un terrain de 1 155m² idéalement situé dans un quartier résidentiel au calme, à proximité des commodités et d'autoroute A8 !
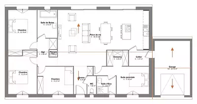
Cette villa se compose d'un bel espace de vie avec une cuisine ouverte, un cellier, 4 chambres dont une suite parentale avec sa salle d'eau privative et son dressing, et une seconde salle de bains pour toute la famille qui vient complété ce bien.
De très belles prestations sont également prévus tels que les volets roulants électriques, le pack domotique et pour votre confort la climatisation sur l'ensemble de la maison avec une régulation de la température pièce par pièce.
Un garage peut venir compléter ce bien.
Cette villa répondant à la norme RE2020.
Le projet clefs en mains à 412 000 euros incluant la maison, le terrain ainsi que les frais de raccordements.
.
Maisons France Confort constructeur de maisons individuelles leader en France. Entreprise familiale fondée en 1919.
Référence : VC2251356_2
Terrain proposé par un partenaire foncier selon disponibilités et autorisation de publicité au prix de 161 000 €. Hors droit d'enregistrement et frais de notaire. Maison proposée, avec un contrat de construction de maison individuelle, dans le cadre de la loi du 19/12/1990, au prix de 251 000 € (Hors branchements et raccordements, papiers peints, peintures, revêtement de sol dans les chambres, qui sont chiffrés dans les travaux qui restent à charge du client. Tarif modifiable sans préavis). Étiquette énergie : A. Différents modèles disponibles pour ce terrain. Assurances et garanties du constructeur comprises (RC professionnelle, décennale, dommage ouvrage).

Les informations sur les risques auxquels ce bien est exposé sont disponibles sur le site Géorisques : www.georisques.gouv.fr


Prix
  • Prix total : 412 000 €
  • Prix du modèle de maison : 251 000 €
  • Prix du terrain : 161 000 €

Terrain
  • Surface : 1 155 m²

Maison
  • Surface : 120 m²
  • Pièces : 5
  • Chambres : 4
  • Garage : 1

  • Être rappelé par un conseiller
  • Demander plus d’infos
  • Demande d'information
Draguignan (83300)

Programmes à proximité

Le Domaine des Tourdres
Le Domaine des Tourdres
Draguignan (83300)

Appartements de 3 à 4 pièces
Livraison 3ème trimestre 2029

Fleur du Nil
Fleur du Nil
Draguignan (83300)

Appartements de 2 à 3 pièces
Livraison 4ème trimestre 2026

Le domaine de la Fée
Le domaine de la Fée
Draguignan (83300)

Appartements de 2 pièces
Livraison 2ème trimestre 2026

Les Jardins de Novaia
Les Jardins de Novaia
Draguignan (83300)

Appartements de 2 à 3 pièces
Livraison 4ème trimestre 2027

Le Patio des Lys
Le Patio des Lys
Le Muy (83490)

Appartements de 2 à 4 pièces
Livraison 2ème trimestre 2027

TERRA ESTRELLA
TERRA ESTRELLA
Puget-sur-Argens (83480)

Appartements de 2 à 4 pièces et maison de 4 pièces
Livraison 4ème trimestre 2027

Contacter MAISONS FRANCE CONFORT pour recevoir plus d'informations

Remplissez le formulaire ci-dessous, vos informations sont transmises directement au constructeur qui vous contactera par email ou par téléphone afin de traiter votre demande. En savoir plus.

Voir tous nos programmes immobiliers neufs à Draguignan