Maison neuve, 71 m² - Donzenac (19270)
188 198 €
Donzenac (19270)
Proposée par BABEAU SEGUIN AGENCE DE BRIVE LA GAILLARDE – CORRE – 3 pièces - 2 chambres - terrain 1 763 m²
|
|
| Babeau Seguin Agence de Brive la Gaillarde – Corre |
- Demande d'information
- Prendre rendez-vous
MAISON À CONSTRUIRE : ceci est une annonce d'une maison neuve à construire.
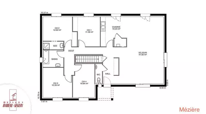
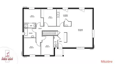
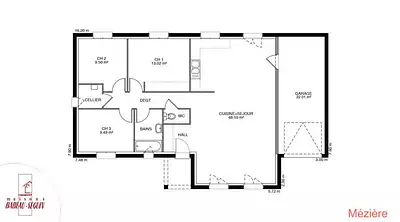
Sur ce terrain, nous vous proposons cette maison neuve, la Mézière, conçue par Babeau-Seguin, le constructeur offrant le meilleur rapport qualité/prix du marché. Avec une surface de 71 m², cette maison de plain-pied dispose de 2 chambres et de 3 pièces, idéale pour répondre aux besoins de nombreuses familles.
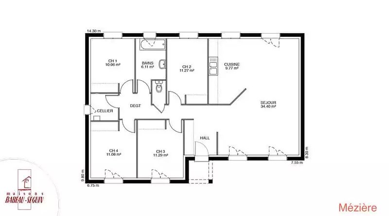
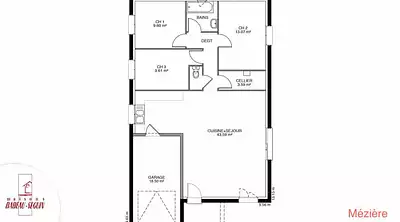
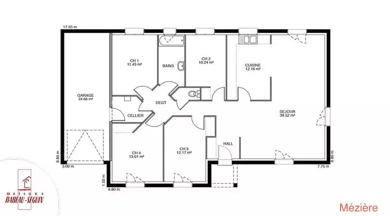
Grâce à ses nombreuses versions, la Mézière sait séduire et s’adapter aux besoins de chacun, ce qui fait d'elle une véritable maison sur mesure. Vous avez le choix entre un plan en L, avec un toit à 2 pans ou à 4 pans, selon vos préférences esthétiques et fonctionnelles.
Les options les plus demandées par nos clients sont également disponibles pour cette maison : menuiseries en aluminium pour une meilleure isolation et un design moderne, domotique pour un confort de vie optimal, et la possibilité d'ajouter un garage ou un sous-sol pour plus de praticité.
Cette maison neuve est basse consommation et conforme à la RE2020, garantissant ainsi des performances énergétiques optimales et un respect des normes environnementales actuelles.
Véritable coup de cœur pour de nombreux clients Babeau-Seguin, la Mézière est facilement modifiable, ce qui justifie pleinement son succès. Craquerez-vous aussi pour elle ?
Référence : 90791
Les informations sur les risques auxquels ce bien est exposé sont disponibles sur le site Géorisques : www.georisques.gouv.fr
Grâce à ses nombreuses versions, la Mézière sait séduire et s’adapter aux besoins de chacun, ce qui fait d'elle une véritable maison sur mesure. Vous avez le choix entre un plan en L, avec un toit à 2 pans ou à 4 pans, selon vos préférences esthétiques et fonctionnelles.
Les options les plus demandées par nos clients sont également disponibles pour cette maison : menuiseries en aluminium pour une meilleure isolation et un design moderne, domotique pour un confort de vie optimal, et la possibilité d'ajouter un garage ou un sous-sol pour plus de praticité.
Cette maison neuve est basse consommation et conforme à la RE2020, garantissant ainsi des performances énergétiques optimales et un respect des normes environnementales actuelles.
Véritable coup de cœur pour de nombreux clients Babeau-Seguin, la Mézière est facilement modifiable, ce qui justifie pleinement son succès. Craquerez-vous aussi pour elle ?
Référence : 90791
Les informations sur les risques auxquels ce bien est exposé sont disponibles sur le site Géorisques : www.georisques.gouv.fr
- Prix
-
- Prix total : 188 198 €
- Prix du modèle de maison : 128 198 €
- Prix du terrain : 60 000 €
- Terrain
-
- Surface : 1 763 m²
- Maison
-
- Surface : 71 m²
- Pièces : 3
- Chambres : 2
- Être rappelé par un conseiller
- Demander plus d’infos
- Demande d'information
Donzenac (19270)
Maisons à proximité
Maison neuve, 124 m²
Donzenac (19270)
Donzenac (19270)
Maison de 5 pièces
Maison neuve, 80 m²
Ussac (19270)
Ussac (19270)
Maison de 3 pièces
Maison neuve, 124 m²
Sainte-Féréole (19270)
Sainte-Féréole (19270)
Maison de 5 pièces
Maison neuve, 109 m²
Sainte-Féréole (19270)
Sainte-Féréole (19270)
Maison de 4 pièces
Maison neuve, 71 m²
Sainte-Féréole (19270)
Sainte-Féréole (19270)
Maison de 3 pièces
Maison neuve, 88 m²
Sainte-Féréole (19270)
Sainte-Féréole (19270)
Maison de 4 pièces
Programmes à proximité
Gen'Eze
Brive-la-Gaillarde (19100)
Brive-la-Gaillarde (19100)
Appartements de 2 à 4 pièces
Livraison 1er trimestre 2028
RÉSIDENCE PARENTH'EZE
Brive-la-Gaillarde (19100)
Brive-la-Gaillarde (19100)
Appartement de 2 pièces
Livraison 4ème trimestre 2026
LE CLOS MERIDIEN
Brive-la-Gaillarde (19100)
Brive-la-Gaillarde (19100)
Appartements de 2 à 5 pièces
Livraison 2ème trimestre 2027
Contacter BABEAU SEGUIN AGENCE DE BRIVE LA GAILLARDE – CORRE pour recevoir plus d'informations
Remplissez le formulaire ci-dessous, vos informations sont transmises directement au constructeur qui vous contactera par email ou par téléphone afin de traiter votre demande. En savoir plus.