Maison neuve, 145 m² - Domvast (80150)
284 263 €
Domvast (80150)
Proposée par MAISONS LES NATURELLES – 8 pièces - 5 chambres - terrain 900 m²
|
|
| MAISONS LES NATURELLES |
- Demande d'information
- Prendre rendez-vous
MAISON À CONSTRUIRE : ceci est une annonce d'une maison neuve à construire.
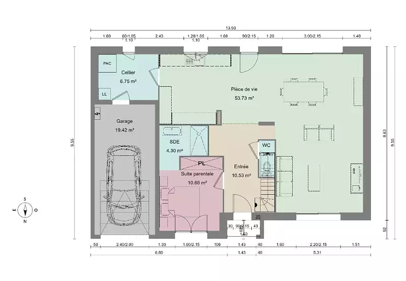
A BATIR : maison T8 (145 m²) à Domvast
Idéalement située - À découvrir à Domvast (80150) : maison neuve 8 pièces à bâtir. 2 niveaux, surface de 145 m² sur 900 m² de terrain. Elle est composée de cinq chambres, d'une cuisine et de trois salles de bains.
À proximité : tennis. Autoroutes A16 et A28 accessibles à 12 km. Manche à 40 km.
Cette maison de 8 pièces est proposée à l'achat pour 284 263 €.
. Maisons Les Naturelles Abbeville est là pour vous accompagner à toutes les étapes de votre projet.
Référence : CC2252217_5
Terrain proposé par un partenaire foncier selon disponibilités et autorisation de publicité au prix de 31 500 €. Hors droit d'enregistrement et frais de notaire. Maison proposée, avec un contrat de construction de maison individuelle, dans le cadre de la loi du 19/12/1990, au prix de 252 763 € (Hors branchements et raccordements, papiers peints, peintures, revêtement de sol dans les chambres, qui sont chiffrés dans les travaux qui restent à charge du client. Tarif modifiable sans préavis). Étiquette énergie : A. Différents modèles disponibles pour ce terrain. Assurances et garanties du constructeur comprises (RC professionnelle, décennale, dommage ouvrage).
Les informations sur les risques auxquels ce bien est exposé sont disponibles sur le site Géorisques : www.georisques.gouv.fr
Idéalement située - À découvrir à Domvast (80150) : maison neuve 8 pièces à bâtir. 2 niveaux, surface de 145 m² sur 900 m² de terrain. Elle est composée de cinq chambres, d'une cuisine et de trois salles de bains.
À proximité : tennis. Autoroutes A16 et A28 accessibles à 12 km. Manche à 40 km.
Cette maison de 8 pièces est proposée à l'achat pour 284 263 €.
. Maisons Les Naturelles Abbeville est là pour vous accompagner à toutes les étapes de votre projet.
Référence : CC2252217_5
Terrain proposé par un partenaire foncier selon disponibilités et autorisation de publicité au prix de 31 500 €. Hors droit d'enregistrement et frais de notaire. Maison proposée, avec un contrat de construction de maison individuelle, dans le cadre de la loi du 19/12/1990, au prix de 252 763 € (Hors branchements et raccordements, papiers peints, peintures, revêtement de sol dans les chambres, qui sont chiffrés dans les travaux qui restent à charge du client. Tarif modifiable sans préavis). Étiquette énergie : A. Différents modèles disponibles pour ce terrain. Assurances et garanties du constructeur comprises (RC professionnelle, décennale, dommage ouvrage).
Les informations sur les risques auxquels ce bien est exposé sont disponibles sur le site Géorisques : www.georisques.gouv.fr
- Prix
-
- Prix total : 284 263 €
- Prix du modèle de maison : 252 763 €
- Prix du terrain : 31 500 €
- Terrain
-
- Surface : 900 m²
- Maison
-
- Surface : 145 m²
- Pièces : 8
- Chambres : 5
- Garage : 1
- Être rappelé par un conseiller
- Demander plus d’infos
- Demande d'information
Domvast (80150)
Maisons à proximité
Maison neuve, 95 m²
Domvast (80150)
Domvast (80150)
Maison de 4 pièces
Maison neuve, 104 m²
Domvast (80150)
Domvast (80150)
Maison de 5 pièces
Maison neuve, 83 m²
Domvast (80150)
Domvast (80150)
Maison de 4 pièces
Maison neuve, 92 m²
Domvast (80150)
Domvast (80150)
Maison de 4 pièces
Maison neuve, 130 m²
Domvast (80150)
Domvast (80150)
Maison de 6 pièces
Maison neuve, 90 m²
Domvast (80150)
Domvast (80150)
Maison de 5 pièces
Programmes à proximité
RESIDENCE MONNECOVE CPI
Abbeville (80100)
Abbeville (80100)
Appartements de 2 à 3 pièces
Livraison 4ème trimestre 2026
À 4 min à pied de la plage
Le Crotoy (80550)
Le Crotoy (80550)
Appartements de 1 à 2 pièces
Livraison 3ème trimestre 2026
Contacter MAISONS LES NATURELLES pour recevoir plus d'informations
Remplissez le formulaire ci-dessous, vos informations sont transmises directement au constructeur qui vous contactera par email ou par téléphone afin de traiter votre demande. En savoir plus.