Maison neuve, 99 m² - Domont (95330)

357 000 €
Domont (95330)

Proposée par MAISONS FRANCE CONFORT – 5 pièces - 3 chambres - terrain 210 m²

MAISONS FRANCE CONFORT
MAISONS FRANCE CONFORT
(56 avis)
  • Demande d'information
MAISON À CONSTRUIRE : ceci est une annonce d'une maison neuve à construire.
Concrétisons votre projet de construction à Bouffémont
IDÉALEMENT SITUÉE -
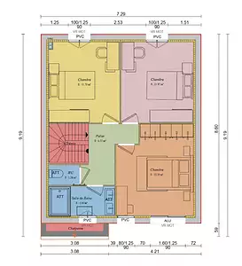
Au pied du Transilien H (gare de Bouffémont-Moisselles, 20 min de Paris), 5 mn à pieds ; et également à quelques minutes à pieds des écoles et collège . Notre agence Maisons France Confort Moisselles est heureuse de vous présenter cette maison de 5 pièces de 99 m² et de 210 m² de terrain à construire, idéalement située dans Bouffémont (95570) limite Domont. Elle dispose de trois chambres, d'une cuisine et de deux salles de bains.
Il s'agit d'une maison de 2 niveaux. Elle est neuve.
Elle est à vendre pour le prix d'un appartement! 357 000 €. Frais de notaire et frais annexes inclus!
Contactez M.AIT de notre agence MAISONS FRANCE CONFORT MOISSELLES au 06 76 76 37 16/ 01 39 -91 72 46 qui vous accompagnera au mieux dans votre projet et avec qui vous pourrez imaginer une autre maison sur ce terrain.
Référence : LAO2339154_1
Terrain proposé par un partenaire foncier selon disponibilités et autorisation de publicité au prix de 150 000 €. Hors droit d'enregistrement et frais de notaire. Terrain + Maison proposés au prix de 357 000 € (Hors branchements et raccordements, papiers peints, peintures, revêtement de sol dans les chambres. Tarif modifiable sans préavis). Etiquette énergie : A. Différents modèles disponibles pour ce terrain. Assurances et garanties du constructeur (RC professionnelle, décennale, dommage ouvrage, garantie de remboursement de l'acompte, livraison à prix et délai convenu) : HEXAOM Services est enregistré auprès de l'ORIAS en tant que Courtier en financement, Niveau 1, sous le numéro 14001345.

Les informations sur les risques auxquels ce bien est exposé sont disponibles sur le site Géorisques : www.georisques.gouv.fr


Prix
  • Prix total : 357 000 €
  • Prix du modèle de maison : 207 000 €
  • Prix du terrain : 150 000 €

Terrain
  • Surface : 210 m²

Maison
  • Surface : 99 m²
  • Pièces : 5
  • Chambres : 3

  • Être rappelé par un conseiller
  • Demander plus d’infos
  • Demande d'information
Domont (95330)

Programmes à proximité

CASTANEA
CASTANEA
Bouffémont (95570)

Appartements de 1 à 3 pièces
Livraison 4ème trimestre 2026

144 Eiffel
144 Eiffel
Montmorency (95160)

Appartements de 2 à 4 pièces
Livraison 1er trimestre 2028

Village Garance
Village Garance
Sarcelles (95200)

Appartements de 3 à 5 pièces
Livraison 3ème trimestre 2028

Prochainement à Saint Prix
Prochainement à Saint Prix
Saint-Prix (95390)

Appartements de 2 à 3 pièces et maison de 4 pièces
Livraison 2ème trimestre 2029

Les Jardins d'Ormesson
Les Jardins d'Ormesson
Deuil-la-Barre (95170)

Appartements de 1 à 4 pièces
Livraison 1er trimestre 2027

L'Observatoire
L'Observatoire
Deuil-la-Barre (95170)

Appartements de 1 à 4 pièces
Livraison 2ème trimestre 2026

Contacter MAISONS FRANCE CONFORT pour recevoir plus d'informations

Remplissez le formulaire ci-dessous, vos informations sont transmises directement au constructeur qui vous contactera par email ou par téléphone afin de traiter votre demande. En savoir plus.

Voir tous nos programmes immobiliers neufs à Domont