Maison neuve, 98 m² - Domfront-en-Champagne (72240)
245 000 €
Domfront-en-Champagne (72240)
Proposée par MAINE CONSTRUCTION – 6 pièces - 3 chambres - terrain 2 277 m²
|
|
| Maine Construction |
- Demande d'information
- Prendre rendez-vous
MAISON À CONSTRUIRE : ceci est une annonce d'une maison neuve à construire.
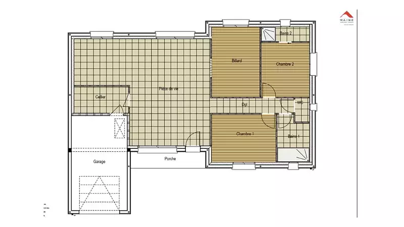
VENTE d'une maison T6 (98 m²) à Domfront-en-Champagne
Gare Domfront-en-Champagne à 210 m - Idéalement située dans Domfront-en-Champagne (72240), maison neuve en vente de 6 pièces, 98 m² et 2 277 m² de terrain. Conçue de plain-pied, elle propose trois chambres, une cuisine et deux salles de bains.
Proche gare (Domfront-en-Champagne), écoles, commerce et boulangerie. Autoroutes A11 et A28 accessibles à 15 km. Le Mans à 18 km.
Cette maison de 6 pièces est à vendre pour la somme de 245 000 €.
. Maine Construction Le Mans vous accompagne dans tous vos projets immobiliers et dans toutes vos démarches.
Référence : FH2342114_6
Terrain proposé par un partenaire foncier selon disponibilités et autorisation de publicité au prix de 28 000 €. Hors droit d'enregistrement et frais de notaire. Terrain + Maison proposés au prix de 217 000 € (Hors branchements et raccordements, papiers peints, peintures, revêtement de sol dans les chambres. Tarif modifiable sans préavis). Etiquette énergie : A. Différents modèles disponibles pour ce terrain. . HEXAOM Services est enregistré auprès de l'ORIAS en tant que Courtier en financement, Niveau 1, sous le numéro 14001345.Les informations sur les risques auxquels ce bien est exposé sont disponibles sur le site Géorisques : www.georisques.gouv.fr
Gare Domfront-en-Champagne à 210 m - Idéalement située dans Domfront-en-Champagne (72240), maison neuve en vente de 6 pièces, 98 m² et 2 277 m² de terrain. Conçue de plain-pied, elle propose trois chambres, une cuisine et deux salles de bains.
Proche gare (Domfront-en-Champagne), écoles, commerce et boulangerie. Autoroutes A11 et A28 accessibles à 15 km. Le Mans à 18 km.
Cette maison de 6 pièces est à vendre pour la somme de 245 000 €.
. Maine Construction Le Mans vous accompagne dans tous vos projets immobiliers et dans toutes vos démarches.
Référence : FH2342114_6
Terrain proposé par un partenaire foncier selon disponibilités et autorisation de publicité au prix de 28 000 €. Hors droit d'enregistrement et frais de notaire. Terrain + Maison proposés au prix de 217 000 € (Hors branchements et raccordements, papiers peints, peintures, revêtement de sol dans les chambres. Tarif modifiable sans préavis). Etiquette énergie : A. Différents modèles disponibles pour ce terrain. . HEXAOM Services est enregistré auprès de l'ORIAS en tant que Courtier en financement, Niveau 1, sous le numéro 14001345.Les informations sur les risques auxquels ce bien est exposé sont disponibles sur le site Géorisques : www.georisques.gouv.fr
- Prix
-
- Prix total : 245 000 €
- Prix du modèle de maison : 217 000 €
- Prix du terrain : 28 000 €
- Terrain
-
- Surface : 2 277 m²
- Maison
-
- Surface : 98 m²
- Pièces : 6
- Chambres : 3
- Garage : 1
- Être rappelé par un conseiller
- Demander plus d’infos
- Demande d'information
Domfront-en-Champagne (72240)
Maisons à proximité
Maison neuve, 78 m²
Domfront-en-Champagne (72240)
Domfront-en-Champagne (72240)
Maison de 3 pièces
Maison neuve, 93 m²
Domfront-en-Champagne (72240)
Domfront-en-Champagne (72240)
Maison de 5 pièces
Maison neuve, 86 m²
Domfront-en-Champagne (72240)
Domfront-en-Champagne (72240)
Maison de 4 pièces
Maison neuve, 144 m²
Domfront-en-Champagne (72240)
Domfront-en-Champagne (72240)
Maison de 5 pièces
Maison neuve, 72 m²
Domfront-en-Champagne (72240)
Domfront-en-Champagne (72240)
Maison de 4 pièces
Maison neuve, 130 m²
Domfront-en-Champagne (72240)
Domfront-en-Champagne (72240)
Maison de 4 pièces
Programmes à proximité
Néméa Le Mans Université
Le Mans (72000)
Le Mans (72000)
Appartements de 1 pièce
Livraison 2ème trimestre 2027
HARMONIE
Le Mans (72000)
Le Mans (72000)
Appartement de 4 pièces
Livraison 2ème trimestre 2026
LES BOSQUETS TR.1
Le Mans (72000)
Le Mans (72000)
Appartements de 1 à 4 pièces
Livraison 4ème trimestre 2027
Epsilon
Le Mans (72000)
Le Mans (72000)
Appartements de 1 à 3 pièces
Livraison 4ème trimestre 2027
Contacter MAINE CONSTRUCTION pour recevoir plus d'informations
Remplissez le formulaire ci-dessous, vos informations sont transmises directement au constructeur qui vous contactera par email ou par téléphone afin de traiter votre demande. En savoir plus.
Voir tous nos programmes immobiliers neufs à Domfront-en-Champagne