Maison neuve, 128 m² - Domfront-en-Champagne (72240)
299 000 €
Domfront-en-Champagne (72240)
Proposée par MAINE CONSTRUCTION – 6 pièces - 3 chambres - terrain 2 277 m²
|
|
| Maine Construction |
- Demande d'information
- Prendre rendez-vous
MAISON À CONSTRUIRE : ceci est une annonce d'une maison neuve à construire.
Domfront-en-Champagne : maison de 6 pièces (128 m²) en vente
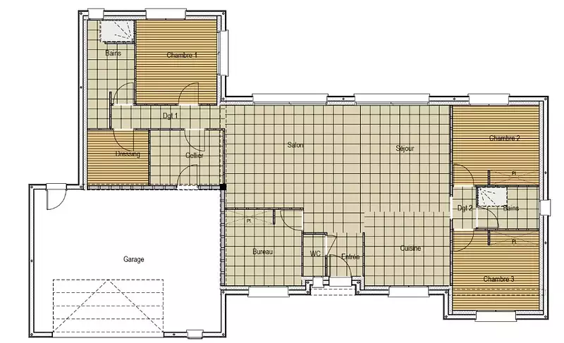
Gare Domfront-en-Champagne - En vente, idéalement située dans Domfront-en-Champagne (72240) : maison neuve 6 pièces de 128 m² sur un terrain de 2 277 m². Conçue de plain-pied, elle se divise en trois chambres, une cuisine et deux salles de bains.
À proximité : gare (Domfront-en-Champagne), écoles, commerce et boulangerie. Autoroutes A11 et A28 accessibles à 15 km. Le Mans à 18 km.
Cette maison de 6 pièces est à vendre pour la somme de 299 000 €.
. Concrétisez vos projets immobiliers avec Maine Construction Le Mans.
Référence : FH2342114_10
Terrain proposé par un partenaire foncier selon disponibilités et autorisation de publicité au prix de 28 000 €. Hors droit d'enregistrement et frais de notaire. Terrain + Maison proposés au prix de 271 000 € (Hors branchements et raccordements, papiers peints, peintures, revêtement de sol dans les chambres. Tarif modifiable sans préavis). Etiquette énergie : A. Différents modèles disponibles pour ce terrain. . HEXAOM Services est enregistré auprès de l'ORIAS en tant que Courtier en financement, Niveau 1, sous le numéro 14001345.Les informations sur les risques auxquels ce bien est exposé sont disponibles sur le site Géorisques : www.georisques.gouv.fr
Gare Domfront-en-Champagne - En vente, idéalement située dans Domfront-en-Champagne (72240) : maison neuve 6 pièces de 128 m² sur un terrain de 2 277 m². Conçue de plain-pied, elle se divise en trois chambres, une cuisine et deux salles de bains.
À proximité : gare (Domfront-en-Champagne), écoles, commerce et boulangerie. Autoroutes A11 et A28 accessibles à 15 km. Le Mans à 18 km.
Cette maison de 6 pièces est à vendre pour la somme de 299 000 €.
. Concrétisez vos projets immobiliers avec Maine Construction Le Mans.
Référence : FH2342114_10
Terrain proposé par un partenaire foncier selon disponibilités et autorisation de publicité au prix de 28 000 €. Hors droit d'enregistrement et frais de notaire. Terrain + Maison proposés au prix de 271 000 € (Hors branchements et raccordements, papiers peints, peintures, revêtement de sol dans les chambres. Tarif modifiable sans préavis). Etiquette énergie : A. Différents modèles disponibles pour ce terrain. . HEXAOM Services est enregistré auprès de l'ORIAS en tant que Courtier en financement, Niveau 1, sous le numéro 14001345.Les informations sur les risques auxquels ce bien est exposé sont disponibles sur le site Géorisques : www.georisques.gouv.fr
- Prix
-
- Prix total : 299 000 €
- Prix du modèle de maison : 271 000 €
- Prix du terrain : 28 000 €
- Terrain
-
- Surface : 2 277 m²
- Maison
-
- Surface : 128 m²
- Pièces : 6
- Chambres : 3
- Garage : 1
- Être rappelé par un conseiller
- Demander plus d’infos
- Demande d'information
Domfront-en-Champagne (72240)
Maisons à proximité
Maison neuve, 78 m²
Domfront-en-Champagne (72240)
Domfront-en-Champagne (72240)
Maison de 3 pièces
Maison neuve, 93 m²
Domfront-en-Champagne (72240)
Domfront-en-Champagne (72240)
Maison de 5 pièces
Maison neuve, 86 m²
Domfront-en-Champagne (72240)
Domfront-en-Champagne (72240)
Maison de 4 pièces
Maison neuve, 144 m²
Domfront-en-Champagne (72240)
Domfront-en-Champagne (72240)
Maison de 5 pièces
Maison neuve, 72 m²
Domfront-en-Champagne (72240)
Domfront-en-Champagne (72240)
Maison de 4 pièces
Maison neuve, 130 m²
Domfront-en-Champagne (72240)
Domfront-en-Champagne (72240)
Maison de 4 pièces
Programmes à proximité
Néméa Le Mans Université
Le Mans (72000)
Le Mans (72000)
Appartements de 1 pièce
Livraison 2ème trimestre 2027
HARMONIE
Le Mans (72000)
Le Mans (72000)
Appartement de 4 pièces
Livraison 2ème trimestre 2026
LES BOSQUETS TR.1
Le Mans (72000)
Le Mans (72000)
Appartements de 1 à 4 pièces
Livraison 4ème trimestre 2027
Epsilon
Le Mans (72000)
Le Mans (72000)
Appartements de 1 à 3 pièces
Livraison 4ème trimestre 2027
Contacter MAINE CONSTRUCTION pour recevoir plus d'informations
Remplissez le formulaire ci-dessous, vos informations sont transmises directement au constructeur qui vous contactera par email ou par téléphone afin de traiter votre demande. En savoir plus.
Voir tous nos programmes immobiliers neufs à Domfront-en-Champagne