Maison neuve, 90 m² - Diesen (57890)
235 125 €
Diesen (57890)
Proposée par MAISONS VESTA AGENCE DE YUTZ (57) – 4 pièces - 3 chambres - terrain 2 388 m²
|
|
| Maisons Vesta Agence de Yutz (57) |
- Demande d'information
- Prendre rendez-vous
MAISON À CONSTRUIRE : ceci est une annonce d'une maison neuve à construire.
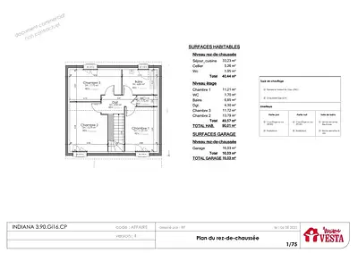
Nous vous proposons cette maison neuve, modèle INDIANA, spécialement conçue pour s'adapter à un terrain étroit sans compromettre l'espace et le confort. Avec une surface habitable de 90 m², cette maison à étage offre un cadre de vie idéal pour toute la famille.
Le rez-de-chaussée se compose d'un vaste espace salon-séjour-cuisine de 33 m², parfait pour partager des moments conviviaux. Un WC indépendant et un cellier pratique, accessible depuis la cuisine, optimisent l'espace et la fonctionnalité de cette maison. Le garage intégré est un atout majeur, permettant un accès direct à la maison tout en préservant l'esthétique de la façade.
À l'étage, l'espace nuit est judicieusement agencé pour offrir intimité et confort. Il comprend trois chambres spacieuses, de 11 à 13 m², une grande salle de bains familiale de presque 7 m² et un second WC séparé. La dalle en béton assure une isolation phonique de qualité entre les deux niveaux.
L'INDIANA se distingue également par son engagement envers l'environnement et votre portefeuille. Cette maison est basse consommation et répond aux exigences de la norme RE2020, garantissant une efficacité énergétique optimale et un confort thermique toute l'année.
L'option d'enduit bi-ton, très demandée, ajoute une touche moderne et personnalisée à votre façade, permettant à votre maison de se démarquer tout en s'intégrant harmonieusement à son environnement.
Choisir le modèle INDIANA, c'est opter pour une maison à l'architecture réfléchie, conçue pour maximiser chaque mètre carré disponible. C'est la promesse d'un foyer chaleureux, durable et économique, prêt à accueillir tous les moments précieux de votre vie familiale.
Référence : 8247
Les informations sur les risques auxquels ce bien est exposé sont disponibles sur le site Géorisques : www.georisques.gouv.fr
Le rez-de-chaussée se compose d'un vaste espace salon-séjour-cuisine de 33 m², parfait pour partager des moments conviviaux. Un WC indépendant et un cellier pratique, accessible depuis la cuisine, optimisent l'espace et la fonctionnalité de cette maison. Le garage intégré est un atout majeur, permettant un accès direct à la maison tout en préservant l'esthétique de la façade.
À l'étage, l'espace nuit est judicieusement agencé pour offrir intimité et confort. Il comprend trois chambres spacieuses, de 11 à 13 m², une grande salle de bains familiale de presque 7 m² et un second WC séparé. La dalle en béton assure une isolation phonique de qualité entre les deux niveaux.
L'INDIANA se distingue également par son engagement envers l'environnement et votre portefeuille. Cette maison est basse consommation et répond aux exigences de la norme RE2020, garantissant une efficacité énergétique optimale et un confort thermique toute l'année.
L'option d'enduit bi-ton, très demandée, ajoute une touche moderne et personnalisée à votre façade, permettant à votre maison de se démarquer tout en s'intégrant harmonieusement à son environnement.
Choisir le modèle INDIANA, c'est opter pour une maison à l'architecture réfléchie, conçue pour maximiser chaque mètre carré disponible. C'est la promesse d'un foyer chaleureux, durable et économique, prêt à accueillir tous les moments précieux de votre vie familiale.
Référence : 8247
Les informations sur les risques auxquels ce bien est exposé sont disponibles sur le site Géorisques : www.georisques.gouv.fr
- Prix
-
- Prix total : 235 125 €
- Prix du modèle de maison : 175 125 €
- Prix du terrain : 60 000 €
- Terrain
-
- Surface : 2 388 m²
- Maison
-
- Surface : 90 m²
- Pièces : 4
- Chambres : 3
- Être rappelé par un conseiller
- Demander plus d’infos
- Demande d'information
Diesen (57890)
Maisons à proximité
Maison neuve, 115 m²
Dalem (57550)
Dalem (57550)
Maison de 4 pièces
Maison neuve, 88 m²
Hombourg-Haut (57470)
Hombourg-Haut (57470)
Maison de 4 pièces
Maison neuve, 99 m²
Tromborn (57320)
Tromborn (57320)
Maison de 5 pièces
Maison neuve, 105 m²
Oberdorff (57320)
Oberdorff (57320)
Maison de 5 pièces
Maison neuve, 99 m²
Oberdorff (57320)
Oberdorff (57320)
Maison de 5 pièces
Maison neuve, 89 m²
Farébersviller (57450)
Farébersviller (57450)
Maison de 5 pièces
Programmes à proximité
Contacter MAISONS VESTA AGENCE DE YUTZ (57) pour recevoir plus d'informations
Remplissez le formulaire ci-dessous, vos informations sont transmises directement au constructeur qui vous contactera par email ou par téléphone afin de traiter votre demande. En savoir plus.