Maison neuve, 96 m² - Dieppe (76200)
265 000 €
Dieppe (76200)
Proposée par EXTRACO - CONSTRUCTION | RÉNOVATION – 4 pièces - 3 chambres - terrain 900 m²
|
|
| EXTRACO - Construction | Rénovation |
- Demande d'information
- Prendre rendez-vous
MAISON À CONSTRUIRE : ceci est une annonce d'une maison neuve à construire.
Petit-Caux : maison de 4 pièces (96 m²) à vendre
PROCHE DE DIEPPE - MAISON 4 PIÈCES NEUVE
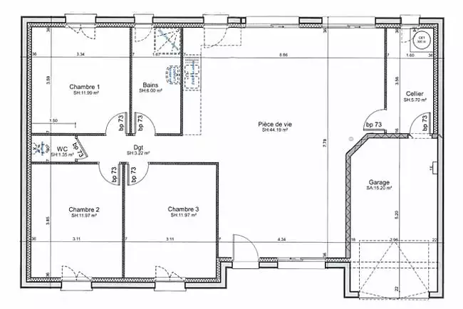
En vente : à 8 km de la Manche et à quelques kilomètres de Dieppe, nous sommes ravis de vous présenter à Petit-Caux (76370), cette maison de 4 pièces de plain-pied de 96 m². Son intérieur se divise en trois chambres, une cuisine et une salle de bains.
Le terrain du bien s'étend sur 900 m².
Cette maison est neuve.
Une école primaire est implantée dans le quartier. Côté transports en commun, il y a deux gares (Dieppe et Saint-Aubin-sur-Scie) à moins de 10 minutes en voiture. Il y a un accès à la nationale N27 à 13 km. On trouve une bibliothèque et un commerce à quelques minutes.
Elle est proposée à l'achat pour 265 000 €.
.
Référence : NL-D-SEM49-2025-11_2
Terrain proposé par un partenaire foncier selon disponibilités et autorisation de publicité au prix de 76 000 €. Hors droit d'enregistrement et frais de notaire. Maison proposée, avec un contrat de construction de maison individuelle, dans le cadre de la loi du 19/12/1990, au prix de 189 000 € (Hors branchements et raccordements, papiers peints, peintures, revêtement de sol dans les chambres, qui sont chiffrés dans les travaux qui restent à charge du client. Tarif modifiable sans préavis). Étiquette énergie : A. Différents modèles disponibles pour ce terrain. Assurances et garanties du constructeur comprises (RC professionnelle, décennale, dommage ouvrage).
Les informations sur les risques auxquels ce bien est exposé sont disponibles sur le site Géorisques : www.georisques.gouv.fr
PROCHE DE DIEPPE - MAISON 4 PIÈCES NEUVE
En vente : à 8 km de la Manche et à quelques kilomètres de Dieppe, nous sommes ravis de vous présenter à Petit-Caux (76370), cette maison de 4 pièces de plain-pied de 96 m². Son intérieur se divise en trois chambres, une cuisine et une salle de bains.
Le terrain du bien s'étend sur 900 m².
Cette maison est neuve.
Une école primaire est implantée dans le quartier. Côté transports en commun, il y a deux gares (Dieppe et Saint-Aubin-sur-Scie) à moins de 10 minutes en voiture. Il y a un accès à la nationale N27 à 13 km. On trouve une bibliothèque et un commerce à quelques minutes.
Elle est proposée à l'achat pour 265 000 €.
.
Référence : NL-D-SEM49-2025-11_2
Terrain proposé par un partenaire foncier selon disponibilités et autorisation de publicité au prix de 76 000 €. Hors droit d'enregistrement et frais de notaire. Maison proposée, avec un contrat de construction de maison individuelle, dans le cadre de la loi du 19/12/1990, au prix de 189 000 € (Hors branchements et raccordements, papiers peints, peintures, revêtement de sol dans les chambres, qui sont chiffrés dans les travaux qui restent à charge du client. Tarif modifiable sans préavis). Étiquette énergie : A. Différents modèles disponibles pour ce terrain. Assurances et garanties du constructeur comprises (RC professionnelle, décennale, dommage ouvrage).
Les informations sur les risques auxquels ce bien est exposé sont disponibles sur le site Géorisques : www.georisques.gouv.fr
- Prix
-
- Prix total : 265 000 €
- Prix du modèle de maison : 189 000 €
- Prix du terrain : 76 000 €
- Terrain
-
- Surface : 900 m²
- Maison
-
- Surface : 96 m²
- Pièces : 4
- Chambres : 3
- Garage : 1
- Être rappelé par un conseiller
- Demander plus d’infos
- Demande d'information
Dieppe (76200)
Maisons à proximité
Maison neuve, 105 m²
Dieppe (76200)
Dieppe (76200)
Maison de 4 pièces
Maison neuve, 114 m²
Dieppe (76200)
Dieppe (76200)
Maison de 6 pièces
Maison neuve, 105,22 m²
Dieppe (76200)
Dieppe (76200)
Maison de 5 pièces
Maison neuve, 92 m²
Dieppe (76200)
Dieppe (76200)
Maison de 5 pièces
Maison neuve, 74 m²
Dieppe (76200)
Dieppe (76200)
Maison de 4 pièces
Maison neuve, 136,63 m²
Dieppe (76200)
Dieppe (76200)
Maison de 5 pièces
Programmes à proximité
Contacter EXTRACO - CONSTRUCTION | RÉNOVATION pour recevoir plus d'informations
Remplissez le formulaire ci-dessous, vos informations sont transmises directement au constructeur qui vous contactera par email ou par téléphone afin de traiter votre demande. En savoir plus.