Maison neuve, 75 m² - Cusset (03300)
240 100 €
Cusset (03300)
Proposée par MAISON ET JARDIN – 3 pièces - 2 chambres - terrain 700 m²
|
|
| Maison et Jardin |
- Demande d'information
- Prendre rendez-vous
MAISON À CONSTRUIRE : ceci est une annonce d'une maison neuve à construire.
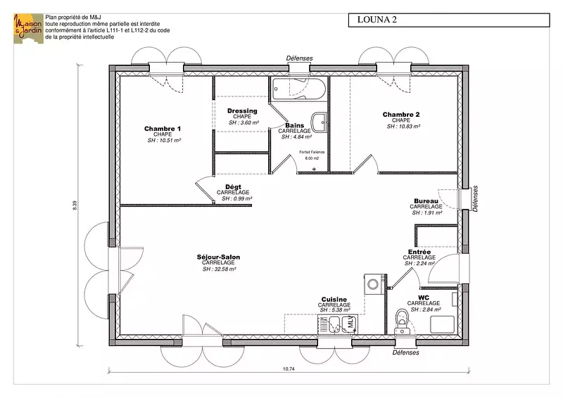
Nous vous proposons cette maison neuve, baptisée Louna, un modèle de charme qui combine habilement tradition et modernité. Conçue pour répondre aux besoins des primo-accédants, la maison Louna se distingue par son prix compétitif, offrant ainsi une opportunité unique d'accéder à la propriété sans compromis sur la qualité et le confort.
Avec une surface habitable de 75 m², cette maison est judicieusement agencée pour maximiser l'espace et la luminosité. Elle se compose de 3 pièces, dont 2 chambres confortables, promettant un cadre de vie idéal pour un couple ou une petite famille. Que vous optiez pour une toiture à 2 pans ou à 4 pans, Louna affiche une esthétique soignée et intemporelle qui s'intègre parfaitement dans tous les environnements.
L'un des atouts majeurs de cette maison est son engagement envers la durabilité et l'efficacité énergétique. Conforme à la norme RE2020, Louna est une maison basse consommation qui vous permet de réduire significativement vos factures d'énergie tout en contribuant à la protection de l'environnement. Cette performance énergétique est le fruit d'une conception réfléchie et de l'utilisation de matériaux de construction de haute qualité.
L'espace de vie principal de Louna est conçu pour être à la fois spacieux et accueillant, avec une grande pièce à vivre qui s'ouvre sur une cuisine moderne, offrant un lieu parfait pour les moments de convivialité en famille ou entre amis. La luminosité naturelle, abondante grâce à de larges ouvertures, crée une atmosphère chaleureuse et énergisante tout au long de l'année.
Parmi les options les plus plébiscitées par nos clients, vous trouverez la possibilité de personnaliser votre maison selon vos goûts et vos besoins, que ce soit en termes d'aménagement intérieur ou de choix des finitions. Notre équipe d'experts est à votre disposition pour vous accompagner dans la réalisation de la maison de vos rêves, en veillant à respecter vos exigences et votre budget.
En choisissant la maison Louna, vou
Référence : 13772
Les informations sur les risques auxquels ce bien est exposé sont disponibles sur le site Géorisques : www.georisques.gouv.fr
Avec une surface habitable de 75 m², cette maison est judicieusement agencée pour maximiser l'espace et la luminosité. Elle se compose de 3 pièces, dont 2 chambres confortables, promettant un cadre de vie idéal pour un couple ou une petite famille. Que vous optiez pour une toiture à 2 pans ou à 4 pans, Louna affiche une esthétique soignée et intemporelle qui s'intègre parfaitement dans tous les environnements.
L'un des atouts majeurs de cette maison est son engagement envers la durabilité et l'efficacité énergétique. Conforme à la norme RE2020, Louna est une maison basse consommation qui vous permet de réduire significativement vos factures d'énergie tout en contribuant à la protection de l'environnement. Cette performance énergétique est le fruit d'une conception réfléchie et de l'utilisation de matériaux de construction de haute qualité.
L'espace de vie principal de Louna est conçu pour être à la fois spacieux et accueillant, avec une grande pièce à vivre qui s'ouvre sur une cuisine moderne, offrant un lieu parfait pour les moments de convivialité en famille ou entre amis. La luminosité naturelle, abondante grâce à de larges ouvertures, crée une atmosphère chaleureuse et énergisante tout au long de l'année.
Parmi les options les plus plébiscitées par nos clients, vous trouverez la possibilité de personnaliser votre maison selon vos goûts et vos besoins, que ce soit en termes d'aménagement intérieur ou de choix des finitions. Notre équipe d'experts est à votre disposition pour vous accompagner dans la réalisation de la maison de vos rêves, en veillant à respecter vos exigences et votre budget.
En choisissant la maison Louna, vou
Référence : 13772
Les informations sur les risques auxquels ce bien est exposé sont disponibles sur le site Géorisques : www.georisques.gouv.fr
- Prix
-
- Prix total : 240 100 €
- Prix du modèle de maison : 140 100 €
- Prix du terrain : 100 000 €
- Terrain
-
- Surface : 700 m²
- Maison
-
- Surface : 75 m²
- Pièces : 3
- Chambres : 2
- Être rappelé par un conseiller
- Demander plus d’infos
- Demande d'information
Cusset (03300)
Maisons à proximité
Maison neuve, 89 m²
Cusset (03300)
Cusset (03300)
Maison de 5 pièces
Maison neuve, 113 m²
Cusset (03300)
Cusset (03300)
Maison de 4 pièces
Maison neuve, 77 m²
Cusset (03300)
Cusset (03300)
Maison de 3 pièces
Maison neuve, 89 m²
Creuzier-le-Vieux (03300)
Creuzier-le-Vieux (03300)
Maison de 4 pièces
Maison neuve, 96 m²
Bellerive-sur-Allier (03700)
Bellerive-sur-Allier (03700)
Maison de 5 pièces
Maison neuve, 77 m²
Saint-Yorre (03270)
Saint-Yorre (03270)
Maison de 3 pièces
Programmes à proximité
A 10min à pied du centre-ville de Vichy
Vichy (03200)
Vichy (03200)
Appartements de 2 à 4 pièces
Livraison 4ème trimestre 2027
Contacter MAISON ET JARDIN pour recevoir plus d'informations
Remplissez le formulaire ci-dessous, vos informations sont transmises directement au constructeur qui vous contactera par email ou par téléphone afin de traiter votre demande. En savoir plus.