Maison neuve, 160 m² - Cugnaux (31270)

422 578 €
Cugnaux (31270)

Proposée par MAISONS FRANCE CONFORT – 5 pièces - 4 chambres - terrain 405 m²

MAISONS FRANCE CONFORT
MAISONS FRANCE CONFORT
(169 avis)
  • Demande d'information
MAISON À CONSTRUIRE : ceci est une annonce d'une maison neuve à construire.
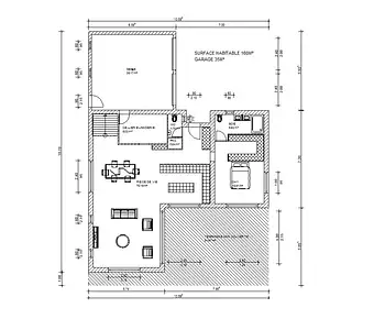
Emplacement privilégié - À Cugnaux (31270), maison neuve en vente de 5 pièces, 2 niveaux, 160 m² et 405 m² de terrain. Elle est composée de quatre chambres, d'une cuisine et de deux salles de bains.
À dix minutes : gares, écoles, crèches, bibliothèque, boulangeries, commerces, épicerie, bureau de poste et boucheries-charcuteries. Marché Place de l'Europe le samedi matin. Accès autoroutes et nationale N124 à 10 km.
Cette maison de 5 pièces est proposée à l'achat pour 422 578 €.
. Maisons France Confort Tournefeuille est là pour vous accompagner à toutes les étapes de votre projet.
Annonce proposée par un Agent Commercial Partenaire.
Référence : CE2282032_1
Terrain proposé par un partenaire foncier selon disponibilités et autorisation de publicité au prix de 150 000 €. Hors droit d'enregistrement et frais de notaire. Maison proposée, avec un contrat de construction de maison individuelle, dans le cadre de la loi du 19/12/1990, au prix de 272 578 € (Hors branchements et raccordements, papiers peints, peintures, revêtement de sol dans les chambres, qui sont chiffrés dans les travaux qui restent à charge du client. Tarif modifiable sans préavis). Étiquette énergie : A. Différents modèles disponibles pour ce terrain. Assurances et garanties du constructeur comprises (RC professionnelle, décennale, dommage ouvrage).

Les informations sur les risques auxquels ce bien est exposé sont disponibles sur le site Géorisques : www.georisques.gouv.fr


Prix
  • Prix total : 422 578 €
  • Prix du modèle de maison : 272 578 €
  • Prix du terrain : 150 000 €

Terrain
  • Surface : 405 m²

Maison
  • Surface : 160 m²
  • Pièces : 5
  • Chambres : 4
  • Garage : 1

  • Être rappelé par un conseiller
  • Demander plus d’infos
  • Demande d'information
Cugnaux (31270)

Programmes à proximité

Les Rives du Lac
Les Rives du Lac
Tournefeuille (31170)

Appartements de 1 à 4 pièces
Livraison 4ème trimestre 2027

Résidence Saint-Paul
Résidence Saint-Paul
Tournefeuille (31170)

Appartement de 3 pièces
Livraison 4ème trimestre 2025

Aux portes de Toulouse
Aux portes de Toulouse
Tournefeuille (31170)

Appartements de 2 à 3 pièces
Livraison 3ème trimestre 2027

ALLEE DE MARIE-T
ALLEE DE MARIE-T
Tournefeuille (31170)

Appartements de 2 à 3 pièces et maisons de 4 à 5 pièces
Livraison 2ème trimestre 2027

ARBORESCENCE
ARBORESCENCE
Tournefeuille (31170)

Appartements de 1 à 4 pièces
Livraison 1er trimestre 2028

HORIZON
HORIZON
Pins-Justaret (31860)

Appartements de 3 à 4 pièces
Livraison 1er trimestre 2025

Contacter MAISONS FRANCE CONFORT pour recevoir plus d'informations

Remplissez le formulaire ci-dessous, vos informations sont transmises directement au constructeur qui vous contactera par email ou par téléphone afin de traiter votre demande. En savoir plus.

Voir tous nos programmes immobiliers neufs à Cugnaux