Maison neuve, 93 m² - Cucq (62780)

520 686 €
Cucq (62780)

Proposée par HABITAT CONCEPT LE TOUQUET – 4 pièces - 3 chambres - terrain 701 m²

Habitat Concept Le Touquet
Habitat Concept Le Touquet
  • Demande d'information
MAISON À CONSTRUIRE : ceci est une annonce d'une maison neuve à construire.
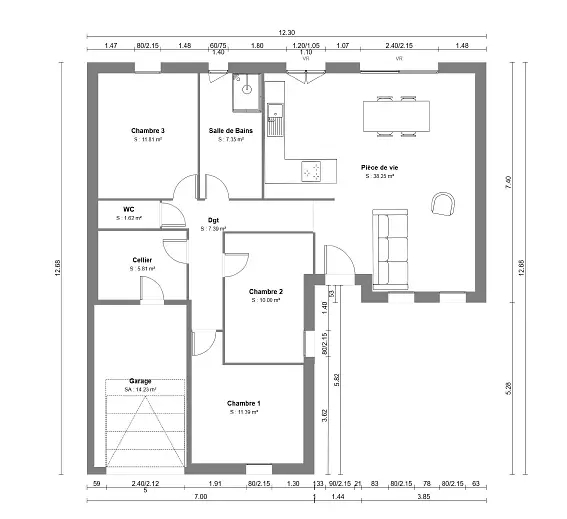
Ce projet concerne la construction clé en main d'une maison individuelle de plain-pied de 92.38 m² avec garage , comprenant 3 chambres à Cucq **** L'offre inclut l'intégralité des prestations de construction, à l'exception des travaux de peinture intérieure et l’aménagement de la cuisine et des dressings qui restent possibles en option en visitant notre showroom.
****
Caractéristiques de la maison
* Type : Maison de plain-pied
* Nombre de chambres : 3
* 1 garage
*
****
Prestations incluses : Terrain viabilisé + raccordements (tout à l'égout) + étalement des terres + construction + revêtements des sols ( carrelage 45x45 dans la pièce de vie et stratifié dans les chambres) + sanitaires ( lavabo / wc / douche à l’italienne) et faïences dans la salle de bain
***
Prestations non incluses dans le tarif mais qui reste possible en option dans notre showroom: Peinture intérieure / aménagement cuisine / dressing
*** *** Faites le grand saut ! Signez votre projet avant le 31/12/2025 et déduisez directement 6000€ de l'achat de votre cuisine en showroom.
***
Bien que notre offre soit "tout inclus", il est également possible de personnaliser votre projet. Notre équipe est à votre disposition pour vous accompagner et répondre à toutes vos questions.
***
N'attendez plus pour concrétiser votre projet !. Nous serons ravis de vous accompagner à chaque étape de votre projet
Référence : cucq4

Les informations sur les risques auxquels ce bien est exposé sont disponibles sur le site Géorisques : www.georisques.gouv.fr


Prix
  • Prix total : 520 686 €
  • Prix du modèle de maison : 177 686 €
  • Prix du terrain : 343 000 €

Terrain
  • Surface : 701 m²

Maison
  • Surface : 93 m²
  • Pièces : 4
  • Chambres : 3
  • Salle de bains : 1
  • Garage : 1
  • Surface garage : 13.75 m²

  • Être rappelé par un conseiller
  • Demander plus d’infos
  • Demande d'information
Cucq (62780)

Programmes à proximité

Aux portes du Touquet
Aux portes du Touquet
Cucq (62780)

Appartements de 2 à 3 pièces
Livraison 4ème trimestre 2026

Estrella
Estrella
Cucq (62780)

Appartements de 1 à 4 pièces
Livraison 4ème trimestre 2026

EMMÉNAGEZ L’ANNÉE PROCHAINE
EMMÉNAGEZ L’ANNÉE PROCHAINE
Etaples (62630)

Appartements de 2 à 5 pièces
Livraison 1er trimestre 2026

Le Domaine du Moulin
Le Domaine du Moulin
Etaples (62630)

Appartements de 2 à 3 pièces
Livraison 2ème trimestre 2028

ALCÔVE
ALCÔVE
Le Touquet-Paris-Plage (62520)

Appartements de 3 à 4 pièces
Livraison 4ème trimestre 2026

OXYGÈNE
OXYGÈNE
Berck (62600)

Appartement de 3 pièces
Livraison 1er trimestre 2025

Contacter HABITAT CONCEPT LE TOUQUET pour recevoir plus d'informations

Remplissez le formulaire ci-dessous, vos informations sont transmises directement au constructeur qui vous contactera par email ou par téléphone afin de traiter votre demande. En savoir plus.

Voir tous nos programmes immobiliers neufs à Cucq