Maison neuve, 80 m² - Crézancy-en-Sancerre (18300)
164 620 €
Crézancy-en-Sancerre (18300)
Proposée par MAISONS BRUNO PETIT MJB – 3 pièces - 3 chambres - terrain 1 200 m²
|
|
| MAISONS BRUNO PETIT MJB |
| (103 avis) |
- Demande d'information
- Prendre rendez-vous
MAISON À CONSTRUIRE : ceci est une annonce d'une maison neuve à construire.
Crézancy-en-Sancerre : maison F3 (80 m²) à vendre
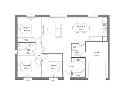
Idéalement située - À découvrir à Crézancy-en-Sancerre (18300) : maison neuve 3 pièces à vendre, 80 m² de surface sur 1 200 m² de terrain. Elle dispose de trois chambres, d'une cuisine et d'une salle de bains.
À proximité : écoles. Autoroute A77 à 15 km.
Cette maison de 3 pièces est proposée à l'achat pour 164 620 €.
. Maisons Bruno Petit MJB Bourges est là pour vous accompagner dans toutes vos démarches.
Référence : JL2247320_2
Terrain proposé par un partenaire foncier selon disponibilités et autorisation de publicité au prix de 14 520 €. Hors droit d'enregistrement et frais de notaire. Maison proposée, avec un contrat de construction de maison individuelle, dans le cadre de la loi du 19/12/1990, au prix de 150 100 € (Hors branchements et raccordements, papiers peints, peintures, revêtement de sol dans les chambres, qui sont chiffrés dans les travaux qui restent à charge du client. Tarif modifiable sans préavis). Étiquette énergie : A. Différents modèles disponibles pour ce terrain. Assurances et garanties du constructeur comprises (RC professionnelle, décennale, dommage ouvrage).
Les informations sur les risques auxquels ce bien est exposé sont disponibles sur le site Géorisques : www.georisques.gouv.fr
Idéalement située - À découvrir à Crézancy-en-Sancerre (18300) : maison neuve 3 pièces à vendre, 80 m² de surface sur 1 200 m² de terrain. Elle dispose de trois chambres, d'une cuisine et d'une salle de bains.
À proximité : écoles. Autoroute A77 à 15 km.
Cette maison de 3 pièces est proposée à l'achat pour 164 620 €.
. Maisons Bruno Petit MJB Bourges est là pour vous accompagner dans toutes vos démarches.
Référence : JL2247320_2
Terrain proposé par un partenaire foncier selon disponibilités et autorisation de publicité au prix de 14 520 €. Hors droit d'enregistrement et frais de notaire. Maison proposée, avec un contrat de construction de maison individuelle, dans le cadre de la loi du 19/12/1990, au prix de 150 100 € (Hors branchements et raccordements, papiers peints, peintures, revêtement de sol dans les chambres, qui sont chiffrés dans les travaux qui restent à charge du client. Tarif modifiable sans préavis). Étiquette énergie : A. Différents modèles disponibles pour ce terrain. Assurances et garanties du constructeur comprises (RC professionnelle, décennale, dommage ouvrage).
Les informations sur les risques auxquels ce bien est exposé sont disponibles sur le site Géorisques : www.georisques.gouv.fr
- Prix
-
- Prix total : 164 620 €
- Prix du modèle de maison : 150 100 €
- Prix du terrain : 14 520 €
- Terrain
-
- Surface : 1 200 m²
- Maison
-
- Surface : 80 m²
- Pièces : 3
- Chambres : 3
- Garage : 1
- Être rappelé par un conseiller
- Demander plus d’infos
- Demande d'information
Crézancy-en-Sancerre (18300)
Maisons à proximité
Maison neuve, 110 m²
Crézancy-en-Sancerre (18300)
Crézancy-en-Sancerre (18300)
Maison de 4 pièces
Maison neuve, 75 m²
Crézancy-en-Sancerre (18300)
Crézancy-en-Sancerre (18300)
Maison de 4 pièces
Maison neuve, 74 m²
Rians (18220)
Rians (18220)
Maison de 4 pièces
Maison neuve, 89 m²
Les Aix-d'Angillon (18220)
Les Aix-d'Angillon (18220)
Maison de 3 pièces
Maison neuve, 115 m²
Les Aix-d'Angillon (18220)
Les Aix-d'Angillon (18220)
Maison de 6 pièces
Maison neuve, 85 m²
Les Aix-d'Angillon (18220)
Les Aix-d'Angillon (18220)
Maison de 4 pièces
Programmes à proximité
Contacter MAISONS BRUNO PETIT MJB pour recevoir plus d'informations
Remplissez le formulaire ci-dessous, vos informations sont transmises directement au constructeur qui vous contactera par email ou par téléphone afin de traiter votre demande. En savoir plus.
Voir tous nos programmes immobiliers neufs à Crézancy-en-Sancerre