Maison neuve, 113 m² - Corsept (44560)

355 900 €
Corsept (44560)

Proposée par MAISONS DE L'AVENIR – 5 pièces - 4 chambres - terrain 703 m²

MAISONS DE L'AVENIR
MAISONS DE L'AVENIR
(10 avis)
  • Demande d'information
MAISON À CONSTRUIRE : ceci est une annonce d'une maison neuve à construire.
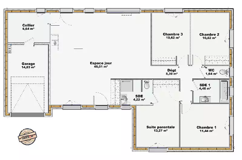
VENTE d'une maison de 5 pièces (113 m²) à Corsept
Idéalement située - À Corsept (44560), maison neuve en vente de 5 pièces, 113 m² sur 703 m² de terrain. Elle offre quatre chambres, une cuisine et deux salles de bains.
À proximité : gares (Donges et Montoir-de-Bretagne), écoles, boulangeries et commerce. Nationale N171 à 8 km. Océan Atlantique à 2 km. Saint-Nazaire à 12 km.
Cette maison de 5 pièces est proposée à l'achat pour 355 900 €.
.
Référence : PAB2350939_5
Terrain proposé par un partenaire foncier selon disponibilités et autorisation de publicité au prix de 97 260 €. Hors droit d'enregistrement et frais de notaire. Terrain + Maison proposés au prix de 258 640 € (Hors branchements et raccordements, papiers peints, peintures, revêtement de sol dans les chambres. Tarif modifiable sans préavis). Etiquette énergie : A. Différents modèles disponibles pour ce terrain.

Les informations sur les risques auxquels ce bien est exposé sont disponibles sur le site Géorisques : www.georisques.gouv.fr


Prix
  • Prix total : 355 900 €
  • Prix du modèle de maison : 258 640 €
  • Prix du terrain : 97 260 €

Terrain
  • Surface : 703 m²

Maison
  • Surface : 113 m²
  • Pièces : 5
  • Chambres : 4
  • Garage : 1

  • Être rappelé par un conseiller
  • Demander plus d’infos
  • Demande d'information
Corsept (44560)

Programmes à proximité

IMPULSION
IMPULSION
Saint-Père-en-Retz (44320)

Appartements de 2 à 4 pièces
Livraison 4ème trimestre 2027

ALBATROS
ALBATROS
Saint-Brevin-les-Pins (44250)

Appartements de 2 à 3 pièces
Livraison 4ème trimestre 2027

La Pinède
La Pinède
Saint-Brevin-les-Pins (44250)

Appartements de 2 à 5 pièces
Livraison 1er trimestre 2027

Les villas du Cèdre
Les villas du Cèdre
Montoir-de-Bretagne (44550)

Appartements de 1 à 4 pièces
Livraison 4ème trimestre 2027

Les Rivières
Les Rivières
Trignac (44570)

Appartement de 3 pièces
Livraison 3ème trimestre 2026

L'Écrin
L'Écrin
Saint-Nazaire (44600)

Appartements de 1 à 3 pièces
Livraison 4ème trimestre 2027

Contacter MAISONS DE L'AVENIR pour recevoir plus d'informations

Remplissez le formulaire ci-dessous, vos informations sont transmises directement au constructeur qui vous contactera par email ou par téléphone afin de traiter votre demande. En savoir plus.

Voir tous nos programmes immobiliers neufs à Corsept