Maison neuve, 111 m² - Corribert (51270)
207 352 €
Corribert (51270)
Proposée par BABEAU SEGUIN AGENCE DE CHÂLONS EN CHAMPAGNE – 5 pièces - 4 chambres - terrain 2 028 m²
|
|
| Babeau Seguin Agence de Châlons en Champagne |
- Demande d'information
- Prendre rendez-vous
MAISON À CONSTRUIRE : ceci est une annonce d'une maison neuve à construire.
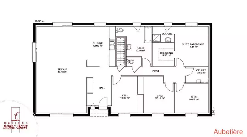
Sur ce terrain, nous vous proposons cette maison neuve Aubetière, un modèle traditionnel signé Babeau-Seguin, constructeur reconnu pour offrir le meilleur rapport qualité/prix du marché. Avec une surface de 111 m², cette maison de plain-pied se distingue par son design moderne et ses nombreuses options de personnalisation.
L'Aubetière dispose de 4 chambres spacieuses et de 4 pièces, offrant un espace de vie confortable et fonctionnel pour toute la famille. Vous avez le choix entre une toiture à 2 pans ou à 4 pans, ainsi que la possibilité d'ajouter un garage ou un sous-sol selon vos besoins et préférences.
Cette maison neuve est également basse consommation et conforme à la réglementation environnementale RE2020, garantissant des performances énergétiques optimales et un impact réduit sur l'environnement.
L'Aubetière est appréciée pour son excellent rapport qualité/prix et sa capacité à s'adapter à vos envies grâce à ses nombreuses déclinaisons et plans disponibles. Donnez vie à votre projet de construction en optant pour cette maison individuelle sur mesure, qui saura répondre à toutes vos attentes.
Ne manquez pas cette opportunité unique de construire la maison de vos rêves avec Babeau-Seguin, le constructeur qui allie qualité, performance et économie.
Référence : 91876
Les informations sur les risques auxquels ce bien est exposé sont disponibles sur le site Géorisques : www.georisques.gouv.fr
L'Aubetière dispose de 4 chambres spacieuses et de 4 pièces, offrant un espace de vie confortable et fonctionnel pour toute la famille. Vous avez le choix entre une toiture à 2 pans ou à 4 pans, ainsi que la possibilité d'ajouter un garage ou un sous-sol selon vos besoins et préférences.
Cette maison neuve est également basse consommation et conforme à la réglementation environnementale RE2020, garantissant des performances énergétiques optimales et un impact réduit sur l'environnement.
L'Aubetière est appréciée pour son excellent rapport qualité/prix et sa capacité à s'adapter à vos envies grâce à ses nombreuses déclinaisons et plans disponibles. Donnez vie à votre projet de construction en optant pour cette maison individuelle sur mesure, qui saura répondre à toutes vos attentes.
Ne manquez pas cette opportunité unique de construire la maison de vos rêves avec Babeau-Seguin, le constructeur qui allie qualité, performance et économie.
Référence : 91876
Les informations sur les risques auxquels ce bien est exposé sont disponibles sur le site Géorisques : www.georisques.gouv.fr
- Prix
-
- Prix total : 207 352 €
- Prix du modèle de maison : 164 352 €
- Prix du terrain : 43 000 €
- Terrain
-
- Surface : 2 028 m²
- Maison
-
- Surface : 111 m²
- Pièces : 5
- Chambres : 4
- Être rappelé par un conseiller
- Demander plus d’infos
- Demande d'information
Corribert (51270)
Maisons à proximité
Maison neuve, 97 m²
Brugny-Vaudancourt (51530)
Brugny-Vaudancourt (51530)
Maison de 4 pièces
Maison neuve, 90 m²
Brugny-Vaudancourt (51530)
Brugny-Vaudancourt (51530)
Maison de 5 pièces
Maison neuve, 80 m²
Brugny-Vaudancourt (51530)
Brugny-Vaudancourt (51530)
Maison de 3 pièces
Maison neuve, 90 m²
Brugny-Vaudancourt (51530)
Brugny-Vaudancourt (51530)
Maison de 5 pièces
Maison neuve, 73 m²
Brugny-Vaudancourt (51530)
Brugny-Vaudancourt (51530)
Maison de 4 pièces
Maison neuve, 90 m²
Brugny-Vaudancourt (51530)
Brugny-Vaudancourt (51530)
Maison de 5 pièces
Programmes à proximité
Contacter BABEAU SEGUIN AGENCE DE CHÂLONS EN CHAMPAGNE pour recevoir plus d'informations
Remplissez le formulaire ci-dessous, vos informations sont transmises directement au constructeur qui vous contactera par email ou par téléphone afin de traiter votre demande. En savoir plus.