Maison neuve, 110 m² - Corné (49630)

279 800 €
Corné (49630)

Proposée par MAISONS BERNARD JAMBERT – 5 pièces - 4 chambres - terrain 351 m²

MAISONS BERNARD JAMBERT
MAISONS BERNARD JAMBERT
  • Demande d'information
MAISON À CONSTRUIRE : ceci est une annonce d'une maison neuve à construire.
Corné : maison T5 (110 m²) en vente
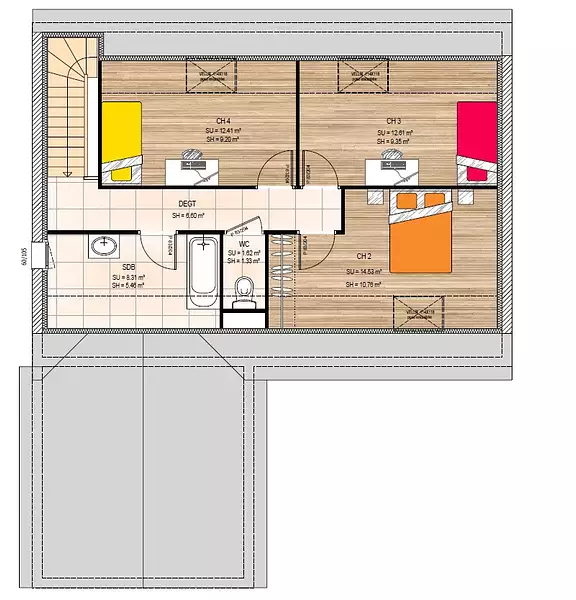
Proche d'Angers - À découvrir à Corné (49630) : maison neuve 5 pièces en vente, 2 niveaux, 110 m² sur 351 m² de terrain. Elle dispose de quatre chambres, d'une cuisine et de deux salles de bains.
Proche gares (Saint-Mathurin-sur-Loire, La Bohalle et La Ménitré), établissements scolaires, crèches, bassins de natation, bibliothèques, tennis, port de plaisance, boulangeries, commerces, supermarchés, boucheries-charcuteries et bureaux de poste. Marché Place Jeanne Laval le mercredi matin. Autoroute A85 à 9 km.
Cette maison de 5 pièces est proposée à l'achat pour 279 800 €.
. Maisons Bernard Jambert Angers vous accompagne dans tous vos projets immobiliers et dans toutes vos démarches.
Référence : RS2338280_1
Terrain proposé par un partenaire foncier selon disponibilités et autorisation de publicité au prix de 61 400 €. Hors droit d'enregistrement et frais de notaire. Maison proposée, avec un contrat de construction de maison individuelle, dans le cadre de la loi du 19/12/1990, au prix de 218 400 € (Hors branchements et raccordements, papiers peints, peintures, revêtement de sol dans les chambres, qui sont chiffrés dans les travaux qui restent à charge du client. Tarif modifiable sans préavis). Étiquette énergie : A. Différents modèles disponibles pour ce terrain. Assurances et garanties du constructeur comprises (RC professionnelle, décennale, dommage ouvrage).

Les informations sur les risques auxquels ce bien est exposé sont disponibles sur le site Géorisques : www.georisques.gouv.fr


Prix
  • Prix total : 279 800 €
  • Prix du modèle de maison : 218 400 €
  • Prix du terrain : 61 400 €

Terrain
  • Surface : 351 m²

Maison
  • Surface : 110 m²
  • Pièces : 5
  • Chambres : 4
  • Garage : 1

  • Être rappelé par un conseiller
  • Demander plus d’infos
  • Demande d'information
Corné (49630)

Programmes à proximité

ATELIERS LUCINA
ATELIERS LUCINA
Trélazé (49800)

Appartements de 2 pièces
Livraison 4ème trimestre 2025

My Campus Anjou
My Campus Anjou
Trélazé (49800)

Appartements de 1 à 2 pièces
Livraison 4ème trimestre 2027

LE CLOS SAINT-SYLVAIN
LE CLOS SAINT-SYLVAIN
Saint-Sylvain-d'Anjou (49480)

Appartements de 3 pièces et maisons de 4 pièces
Livraison 2ème trimestre 2027

Initiale
Initiale
Saint-Barthélemy-d'Anjou (49124)

Appartements de 2 à 4 pièces
Livraison 4ème trimestre 2027

TERRE DE CE II
TERRE DE CE II
Les Ponts-de-Cé (49130)

Appartements de 2 à 3 pièces
Livraison 4ème trimestre 2027

Adresse pratique à 10min du centre ville-Cityssim'
Adresse pratique à 10min du centre ville-Cityssim'
Angers (49000)

Appartements de 3 pièces
Livraison 4ème trimestre 2026

Contacter MAISONS BERNARD JAMBERT pour recevoir plus d'informations

Remplissez le formulaire ci-dessous, vos informations sont transmises directement au constructeur qui vous contactera par email ou par téléphone afin de traiter votre demande. En savoir plus.

Voir tous nos programmes immobiliers neufs à Corné