Maison neuve, 120 m² - Cormery (37320)

368 750 €
Cormery (37320)

Proposée par CONSTRUCTIONS IDEALE DEMEURE – 5 pièces - 4 chambres - terrain 1 250 m²

CONSTRUCTIONS IDEALE DEMEURE
CONSTRUCTIONS IDEALE DEMEURE
  • Demande d'information
MAISON À CONSTRUIRE : ceci est une annonce d'une maison neuve à construire.
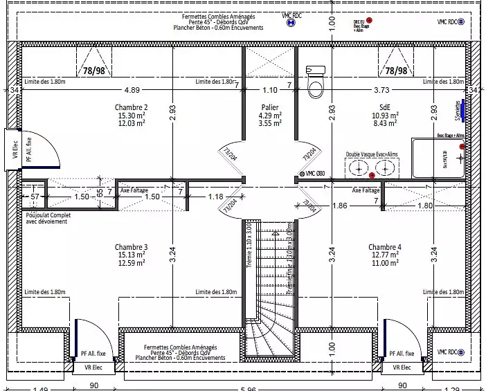
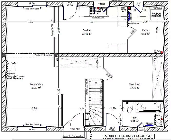
Maison de 5 pièces (120 m²) à vendre à Cormery
Proche de Tours - À Cormery (37320), maison neuve en vente de 5 pièces, 2 niveaux, 120 m² sur 1 250 m² de terrain. Elle offre quatre chambres, une cuisine et deux salles de bains.
À dix minutes : gare (Cormery), établissements scolaires, tennis, commerces, boulangeries et boucherie-charcuterie. Marché Place du Mail le jeudi matin. Autoroute A85 accessible à 5 km.
Cette maison de 5 pièces est proposée à l'achat pour 368 750 €.
Contactez notre agence (Rodolphe MARY :°6 71 59 42 46) pour toute question sur la maison.
Référence : RM2339977_1
Terrain proposé par un partenaire foncier selon disponibilités et autorisation de publicité au prix de 69 500 €. Hors droit d'enregistrement et frais de notaire. Terrain + Maison proposés au prix de 299 250 € (Hors branchements et raccordements, papiers peints, peintures, revêtement de sol dans les chambres. Tarif modifiable sans préavis). Etiquette énergie : A. Différents modèles disponibles pour ce terrain. Assurances et garanties du constructeur (RC professionnelle, décennale, dommage ouvrage, garantie de remboursement de l'acompte, livraison à prix et délai convenu) : https://www.constructions-ideale-demeure.fr/mentions-legales/.

Les informations sur les risques auxquels ce bien est exposé sont disponibles sur le site Géorisques : www.georisques.gouv.fr


Prix
  • Prix total : 368 750 €
  • Prix du modèle de maison : 299 250 €
  • Prix du terrain : 69 500 €

Terrain
  • Surface : 1 250 m²

Maison
  • Surface : 120 m²
  • Pièces : 5
  • Chambres : 4

  • Être rappelé par un conseiller
  • Demander plus d’infos
  • Demande d'information
Cormery (37320)

Programmes à proximité

CALICIA
CALICIA
Sorigny (37250)

Appartements de 1 à 3 pièces
Livraison 1er trimestre 2027

L'Ecrin des Chartreux
L'Ecrin des Chartreux
Bléré (37150)

Appartements de 2 pièces
Livraison 1er trimestre 2028

Le Domaine des Chartreux
Le Domaine des Chartreux
Bléré (37150)

Appartements de 2 à 4 pièces et maison de 3 pièces
Livraison 3ème trimestre 2027

COURTIL MONTLOUIS - MONTLOUIS SUR LOIRE
COURTIL MONTLOUIS - MONTLOUIS SUR LOIRE
Montlouis-sur-Loire (37270)

Appartements de 2 à 4 pièces
Livraison 4ème trimestre 2026

LOUISE DE BOURBON
LOUISE DE BOURBON
La Ville-aux-Dames (37700)

Appartements de 3 pièces
Livraison 2ème trimestre 2026

Verdéa
Verdéa
Joué-lès-Tours (37300)

Appartements de 1 à 2 pièces
Livraison 2ème trimestre 2027

Contacter CONSTRUCTIONS IDEALE DEMEURE pour recevoir plus d'informations

Remplissez le formulaire ci-dessous, vos informations sont transmises directement au constructeur qui vous contactera par email ou par téléphone afin de traiter votre demande. En savoir plus.

Voir tous nos programmes immobiliers neufs à Cormery