Maison neuve, 112 m² - Cleurie (88120)
238 480 €
Cleurie (88120)
Proposée par BATILOR AGENCE D’ EPINAL (88000) – VOSGES – RÉGION – 5 pièces - 4 chambres - terrain 1 200 m²
|
|
| Batilor Agence d’ Epinal (88000) – Vosges – Région |
- Demande d'information
- Prendre rendez-vous
MAISON À CONSTRUIRE : ceci est une annonce d'une maison neuve à construire.
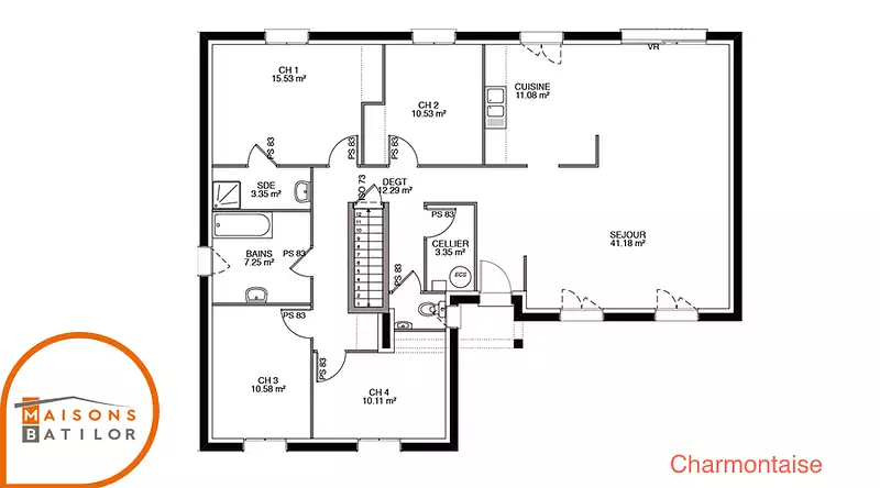
Nous vous proposons cette maison neuve, baptisée la Charmontaise, une demeure qui allie avec brio tradition et modernité, conçue pour se distinguer. Avec une surface habitable de 112 m², cette maison est l'incarnation parfaite du confort et de l'élégance, offrant 4 chambres spacieuses et un total de 4 pièces bien agencées pour accueillir votre famille dans les meilleures conditions.
La Charmontaise se distingue par sa tour caractéristique, une avancée architecturale qui lui confère une allure noble et originale. Le garage intégré assure une harmonie esthétique tout en étant pratique. La construction en briques, matériau à la fois traditionnel et robuste, promet durabilité et faible entretien.
Parmi les options les plus plébiscitées par nos clients, et disponibles pour la Charmontaise, figurent une seconde salle de bains pour plus de commodité, des menuiseries en aluminium pour une touche contemporaine et un crépis coloré pour personnaliser votre façade selon vos goûts.
Cette maison neuve ne se contente pas d'être esthétiquement plaisante ; elle est également conçue pour être basse consommation et répond aux exigences de la norme RE2020. Cela signifie que vous bénéficierez d'un confort optimal tout en réduisant votre empreinte écologique et vos factures énergétiques.
Chez Batilor, nous nous engageons à vous offrir des maisons qui se démarquent, tant par leur design que par leur qualité et leur prix. La Charmontaise, avec ses options de personnalisation, son design soigné, et son engagement envers l'efficacité énergétique, est une invitation à vivre dans une maison qui respecte à la fois l'environnement et vos désirs de distinction.
Faites le choix de l'originalité et du confort durable avec la Charmontaise, une maison où chaque détail a été pensé pour répondre à vos attentes les plus élevées.
Référence : 23709
Les informations sur les risques auxquels ce bien est exposé sont disponibles sur le site Géorisques : www.georisques.gouv.fr
La Charmontaise se distingue par sa tour caractéristique, une avancée architecturale qui lui confère une allure noble et originale. Le garage intégré assure une harmonie esthétique tout en étant pratique. La construction en briques, matériau à la fois traditionnel et robuste, promet durabilité et faible entretien.
Parmi les options les plus plébiscitées par nos clients, et disponibles pour la Charmontaise, figurent une seconde salle de bains pour plus de commodité, des menuiseries en aluminium pour une touche contemporaine et un crépis coloré pour personnaliser votre façade selon vos goûts.
Cette maison neuve ne se contente pas d'être esthétiquement plaisante ; elle est également conçue pour être basse consommation et répond aux exigences de la norme RE2020. Cela signifie que vous bénéficierez d'un confort optimal tout en réduisant votre empreinte écologique et vos factures énergétiques.
Chez Batilor, nous nous engageons à vous offrir des maisons qui se démarquent, tant par leur design que par leur qualité et leur prix. La Charmontaise, avec ses options de personnalisation, son design soigné, et son engagement envers l'efficacité énergétique, est une invitation à vivre dans une maison qui respecte à la fois l'environnement et vos désirs de distinction.
Faites le choix de l'originalité et du confort durable avec la Charmontaise, une maison où chaque détail a été pensé pour répondre à vos attentes les plus élevées.
Référence : 23709
Les informations sur les risques auxquels ce bien est exposé sont disponibles sur le site Géorisques : www.georisques.gouv.fr
- Prix
-
- Prix total : 238 480 €
- Prix du modèle de maison : 188 480 €
- Prix du terrain : 50 000 €
- Terrain
-
- Surface : 1 200 m²
- Maison
-
- Surface : 112 m²
- Pièces : 5
- Chambres : 4
- Être rappelé par un conseiller
- Demander plus d’infos
- Demande d'information
Cleurie (88120)
Maisons à proximité
Maison neuve, 109 m²
Cleurie (88120)
Cleurie (88120)
Maison de 5 pièces
Maison neuve, 100 m²
Cleurie (88120)
Cleurie (88120)
Maison de 5 pièces
Maison neuve, 106 m²
Cleurie (88120)
Cleurie (88120)
Maison de 4 pièces
Maison neuve, 106 m²
Cleurie (88120)
Cleurie (88120)
Maison de 4 pièces
Maison neuve, 109 m²
Saint-Amé (88120)
Saint-Amé (88120)
Maison de 5 pièces
Maison neuve, 99 m²
Saint-Amé (88120)
Saint-Amé (88120)
Maison de 5 pièces
Programmes à proximité
Contacter BATILOR AGENCE D’ EPINAL (88000) – VOSGES – RÉGION pour recevoir plus d'informations
Remplissez le formulaire ci-dessous, vos informations sont transmises directement au constructeur qui vous contactera par email ou par téléphone afin de traiter votre demande. En savoir plus.