Maison neuve, 100 m² - Chiré-en-Montreuil (86190)

214 597 €
Chiré-en-Montreuil (86190)

Proposée par BABEAU SEGUIN AGENCE DE POITIERS – VIENNE – 4 pièces - 3 chambres - terrain 1 760 m²

Babeau Seguin Agence de Poitiers  – Vienne
Babeau Seguin Agence de Poitiers – Vienne
  • Demande d'information
MAISON À CONSTRUIRE : ceci est une annonce d'une maison neuve à construire.
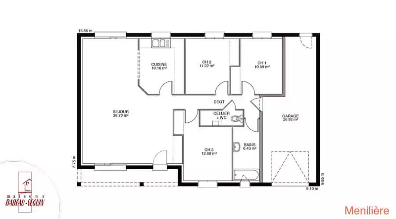
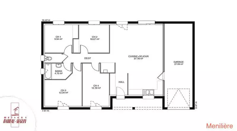
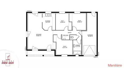
Sur ce terrain, nous vous proposons cette maison neuve, la Ménilière Sud, conçue par Babeau-Seguin, constructeur offrant le meilleur rapport qualité/prix du marché. Cette superbe maison traditionnelle du sud, avec ses galeries et ses tuiles canal, dispose d'une surface de 100 m² et comprend 3 chambres et 4 pièces.
La Ménilière Sud est une maison basse consommation, conforme à la RE2020, garantissant des économies d'énergie et un confort optimal tout au long de l'année. Elle est équipée d'un garage intégré, et vous avez le choix entre un toit à 2 pans ou à 4 pans, selon vos préférences.
Offrant beaucoup de cachet, la Ménilière Sud est facilement personnalisable pour répondre à vos besoins et à vos goûts. Son porche avant pratique vous évitera la panique de chercher vos clés les jours de pluie. Ce modèle est particulièrement apprécié pour son excellent rapport qualité/prix, ce qui en fait l'un des modèles sur-mesure les plus vendus.
Ne manquez pas cette opportunité unique d'acquérir une maison neuve, économe en énergie et parfaitement adaptée à vos envies. Contactez-nous dès maintenant pour plus d'informations et pour découvrir toutes les possibilités de personnalisation de la Ménilière Sud.
Référence : 90728

Les informations sur les risques auxquels ce bien est exposé sont disponibles sur le site Géorisques : www.georisques.gouv.fr


Prix
  • Prix total : 214 597 €
  • Prix du modèle de maison : 177 197 €
  • Prix du terrain : 37 400 €

Terrain
  • Surface : 1 760 m²

Maison
  • Surface : 100 m²
  • Pièces : 4
  • Chambres : 3

  • Être rappelé par un conseiller
  • Demander plus d’infos
  • Demande d'information
Chiré-en-Montreuil (86190)

Programmes à proximité

Le Hameau de Marguerite
Le Hameau de Marguerite
Vouneuil-sous-Biard (86580)

Appartements de 1 à 3 pièces
Livraison 2ème trimestre 2027

MERILEGE
MERILEGE
Poitiers (86000)

Appartements de 2 à 4 pièces
Livraison 2ème trimestre 2028

LES ALLEES DU GOLF
LES ALLEES DU GOLF
Poitiers (86000)

Appartements de 2 à 4 pièces
Livraison 4ème trimestre 2026

Vertuo
Vertuo
Poitiers (86000)

Appartements de 1 à 3 pièces
Livraison 3ème trimestre 2027

Le Jardin du Cèdre
Le Jardin du Cèdre
Poitiers (86000)

Appartement de 4 pièces
Livraison 4ème trimestre 2025

Contacter BABEAU SEGUIN AGENCE DE POITIERS – VIENNE pour recevoir plus d'informations

Remplissez le formulaire ci-dessous, vos informations sont transmises directement au constructeur qui vous contactera par email ou par téléphone afin de traiter votre demande. En savoir plus.

Voir tous nos programmes immobiliers neufs à Chiré-en-Montreuil