Maison neuve, 151 m² - Chevreuse (78460)
593 000 €
Chevreuse (78460)
Proposée par BERVAL – 6 pièces - 4 chambres - terrain 530 m²
|
|
| BERVAL |
- Demande d'information
- Prendre rendez-vous
MAISON À CONSTRUIRE : ceci est une annonce d'une maison neuve à construire.
Dans un village de charme situé à 5 minutes de Chevreuse sur la commune de Boullay les Troux, à 10 minutes du RER B de Saint Rémy les Chevreuse, venez découvrir cette maison familiale de 151m² habitable aux volumes généreux, implantée sur un beau terrain plat de 530m², exposé plein Ouest.
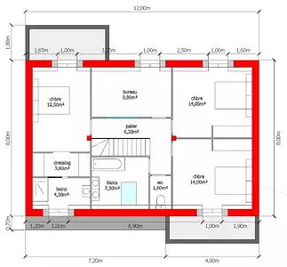
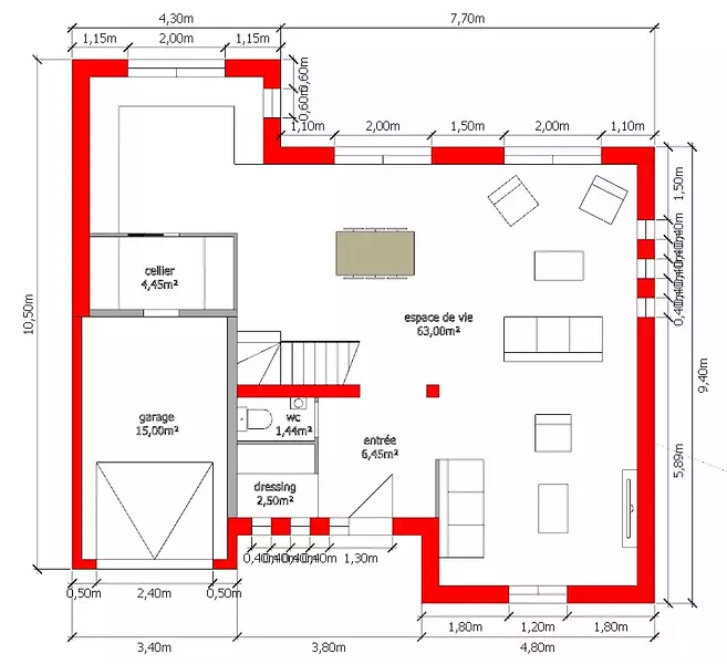
Vous profiterez d'un bel espace de vie de 63m², avec une cuisine ouverte donnant sur un cellier et garage. L'étage offre trois belles chambres (dont une suite parentale) et un bureau (chambre d'amis) avec vue sur le jardin.
Maison disposant des nouvelles réglementations RE 2020 et certifiée NF Habitat HQE.Annonce proposée par un Agent Commercial Partenaire.
Référence : FL2331114
Terrain proposé par un partenaire foncier selon disponibilités et autorisation de publicité au prix de €. Hors droit d'enregistrement et frais de notaire. Terrain + Maison proposés au prix de 593 000 € (Hors branchements et raccordements, papiers peints, peintures, revêtement de sol dans les chambres. Tarif modifiable sans préavis). Etiquette énergie : A. Différents modèles disponibles pour ce terrain.
Les informations sur les risques auxquels ce bien est exposé sont disponibles sur le site Géorisques : www.georisques.gouv.fr
Vous profiterez d'un bel espace de vie de 63m², avec une cuisine ouverte donnant sur un cellier et garage. L'étage offre trois belles chambres (dont une suite parentale) et un bureau (chambre d'amis) avec vue sur le jardin.
Maison disposant des nouvelles réglementations RE 2020 et certifiée NF Habitat HQE.Annonce proposée par un Agent Commercial Partenaire.
Référence : FL2331114
Terrain proposé par un partenaire foncier selon disponibilités et autorisation de publicité au prix de €. Hors droit d'enregistrement et frais de notaire. Terrain + Maison proposés au prix de 593 000 € (Hors branchements et raccordements, papiers peints, peintures, revêtement de sol dans les chambres. Tarif modifiable sans préavis). Etiquette énergie : A. Différents modèles disponibles pour ce terrain.
Les informations sur les risques auxquels ce bien est exposé sont disponibles sur le site Géorisques : www.georisques.gouv.fr
- Prix
-
- Prix total : 593 000 €
- Prix du modèle de maison : N.C.
- Prix du terrain : N.C.
- Terrain
-
- Surface : 530 m²
- Maison
-
- Surface : 151 m²
- Pièces : 6
- Chambres : 4
- Garage : 1
- Être rappelé par un conseiller
- Demander plus d’infos
- Demande d'information
Chevreuse (78460)
Maisons à proximité
Maison neuve, 183 m²
Chevreuse (78460)
Chevreuse (78460)
Maison de 6 pièces
Maison neuve, 173 m²
Chevreuse (78460)
Chevreuse (78460)
Maison de 7 pièces
Maison neuve, 191 m²
Chevreuse (78460)
Chevreuse (78460)
Maison de 6 pièces
Maison neuve, 160 m²
Saint-Rémy-lès-Chevreuse (78470)
Saint-Rémy-lès-Chevreuse (78470)
Maison de 7 pièces
Maison neuve, 118 m²
Saint-Rémy-lès-Chevreuse (78470)
Saint-Rémy-lès-Chevreuse (78470)
Maison de 5 pièces
Maison neuve, 110 m²
Saint-Rémy-lès-Chevreuse (78470)
Saint-Rémy-lès-Chevreuse (78470)
Maison de 5 pièces
Programmes à proximité
L'Envol
Voisins-le-Bretonneux (78960)
Voisins-le-Bretonneux (78960)
Appartements de 2 à 5 pièces
Livraison 3ème trimestre 2028
Terrasses de l'Odyssée
Montigny-le-Bretonneux (78180)
Montigny-le-Bretonneux (78180)
Appartements de 3 à 5 pièces
Livraison 4ème trimestre 2025
LA FERME
Toussus-le-Noble (78117)
Toussus-le-Noble (78117)
Appartements de 4 pièces et maisons de 4 à 6 pièces
Livraison 3ème trimestre 2028
LA VILLA CEDRUS
Le Mesnil-Saint-Denis (78320)
Le Mesnil-Saint-Denis (78320)
Appartement de 2 pièces
Livraison 1er trimestre 2025
Résidence Innova
Gif-sur-Yvette (91190)
Gif-sur-Yvette (91190)
Appartements de 4 pièces
Parenthèse
Gif-sur-Yvette (91190)
Gif-sur-Yvette (91190)
Appartements de 2 à 4 pièces
Livraison 1er trimestre 2027
Contacter BERVAL pour recevoir plus d'informations
Remplissez le formulaire ci-dessous, vos informations sont transmises directement au constructeur qui vous contactera par email ou par téléphone afin de traiter votre demande. En savoir plus.