Maison neuve, 80 m² - Cheval-Blanc (84460)
375 000 €
Cheval-Blanc (84460)
Proposée par MAISONS FRANCE CONFORT – 3 pièces - 2 chambres - terrain 580 m²
|
|
| MAISONS FRANCE CONFORT |
- Demande d'information
- Prendre rendez-vous
MAISON À CONSTRUIRE : ceci est une annonce d'une maison neuve à construire.
🏡 À VENDRE - TERRAIN + PROJET DE CONSTRUCTION - CHEVAL-BLANC (84460)
📍 Emplacement idéal | 🌳 Environnement paisible | 🏠 Maison neuve personnalisable
Vous rêvez de construire votre maison dans un cadre naturel tout en restant proche des commodités ?
Ne cherchez plus !
📐 Terrain constructible de 580 m², situé dans un quartier résidentiel recherché, à proximité immédiate du centre-village, des écoles, commerces, mairie, salle de sport,ect.
🛠️ Projet de construction sur mesure :
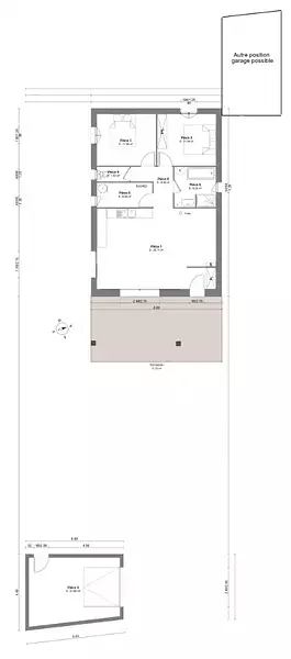
Maison individuelle de 80 m², composée de :
Grande pièce de vie lumineuse
Cuisine ouverte
2 chambres
Salle de bains moderne
Garage / Terrasse / Jardin (selon plans) Prix sur demande
🏗️ Construction réalisée par un constructeur local reconnu, Dommage Ouvrage comprise, ainsi que les garanties décennales et aux normes RE2020 en vigueur.
✅ Les + :
Quartier calme et familial
Vue dégagée / orientation optimale
Possibilité de personnaliser les plans
Frais de notaire en sus
Éligible au PTZ (Prêt à Taux Zéro)*
💰 Prix global (terrain + maison) à partir de : 375000€
Tarif donné à titre indicatif, selon modèle et prestations choisies
!
Référence : SCS2296613_1
Terrain proposé par un partenaire foncier selon disponibilités et autorisation de publicité au prix de 185 000 €. Hors droit d'enregistrement et frais de notaire. Maison proposée, avec un contrat de construction de maison individuelle, dans le cadre de la loi du 19/12/1990, au prix de 190 000 € (Hors branchements et raccordements, papiers peints, peintures, revêtement de sol dans les chambres, qui sont chiffrés dans les travaux qui restent à charge du client. Tarif modifiable sans préavis). Étiquette énergie : A. Différents modèles disponibles pour ce terrain. Assurances et garanties du constructeur comprises (RC professionnelle, décennale, dommage ouvrage).
Les informations sur les risques auxquels ce bien est exposé sont disponibles sur le site Géorisques : www.georisques.gouv.fr
📍 Emplacement idéal | 🌳 Environnement paisible | 🏠 Maison neuve personnalisable
Vous rêvez de construire votre maison dans un cadre naturel tout en restant proche des commodités ?
Ne cherchez plus !
📐 Terrain constructible de 580 m², situé dans un quartier résidentiel recherché, à proximité immédiate du centre-village, des écoles, commerces, mairie, salle de sport,ect.
🛠️ Projet de construction sur mesure :
Maison individuelle de 80 m², composée de :
Grande pièce de vie lumineuse
Cuisine ouverte
2 chambres
Salle de bains moderne
Garage / Terrasse / Jardin (selon plans) Prix sur demande
🏗️ Construction réalisée par un constructeur local reconnu, Dommage Ouvrage comprise, ainsi que les garanties décennales et aux normes RE2020 en vigueur.
✅ Les + :
Quartier calme et familial
Vue dégagée / orientation optimale
Possibilité de personnaliser les plans
Frais de notaire en sus
Éligible au PTZ (Prêt à Taux Zéro)*
💰 Prix global (terrain + maison) à partir de : 375000€
Tarif donné à titre indicatif, selon modèle et prestations choisies
!
Référence : SCS2296613_1
Terrain proposé par un partenaire foncier selon disponibilités et autorisation de publicité au prix de 185 000 €. Hors droit d'enregistrement et frais de notaire. Maison proposée, avec un contrat de construction de maison individuelle, dans le cadre de la loi du 19/12/1990, au prix de 190 000 € (Hors branchements et raccordements, papiers peints, peintures, revêtement de sol dans les chambres, qui sont chiffrés dans les travaux qui restent à charge du client. Tarif modifiable sans préavis). Étiquette énergie : A. Différents modèles disponibles pour ce terrain. Assurances et garanties du constructeur comprises (RC professionnelle, décennale, dommage ouvrage).
Les informations sur les risques auxquels ce bien est exposé sont disponibles sur le site Géorisques : www.georisques.gouv.fr
- Prix
-
- Prix total : 375 000 €
- Prix du modèle de maison : 190 000 €
- Prix du terrain : 185 000 €
- Terrain
-
- Surface : 580 m²
- Maison
-
- Surface : 80 m²
- Pièces : 3
- Chambres : 2
- Garage : 1
- Être rappelé par un conseiller
- Demander plus d’infos
- Demande d'information
Cheval-Blanc (84460)
Maisons à proximité
Maison neuve, 110 m²
Cheval-Blanc (84460)
Cheval-Blanc (84460)
Maison de 6 pièces
Maison neuve, 98 m²
Cheval-Blanc (84460)
Cheval-Blanc (84460)
Maison de 4 pièces
Maison neuve, 50 m²
Cavaillon (84300)
Cavaillon (84300)
Maison de 3 pièces
Maison neuve, 95 m²
Cavaillon (84300)
Cavaillon (84300)
Maison de 4 pièces
Programmes à proximité
LE CABELLIO
Cavaillon (84300)
Cavaillon (84300)
Appartements de 2 à 3 pièces
Livraison 1er trimestre 2026
La Fabrique
Cavaillon (84300)
Cavaillon (84300)
Appartements de 1 à 4 pièces
303 Coty
Cavaillon (84300)
Cavaillon (84300)
Appartements de 3 pièces
Livraison 2ème trimestre 2025
Le Mérimé
Cavaillon (84300)
Cavaillon (84300)
Appartements de 2 à 4 pièces
Livraison 2ème trimestre 2026
ISLE SUR LA SORGUE
L'Isle-sur-la-Sorgue (84800)
L'Isle-sur-la-Sorgue (84800)
Appartements de 2 à 4 pièces
Livraison 4ème trimestre 2027
JARDIN ALIAT
Salon-de-Provence (13300)
Salon-de-Provence (13300)
Appartements de 2 à 4 pièces
Livraison 2ème trimestre 2026
Contacter MAISONS FRANCE CONFORT pour recevoir plus d'informations
Remplissez le formulaire ci-dessous, vos informations sont transmises directement au constructeur qui vous contactera par email ou par téléphone afin de traiter votre demande. En savoir plus.