Maison neuve, 84 m² - Chaniers (17610)
189 589 €
Chaniers (17610)
Proposée par BERMAX – 4 pièces - 3 chambres - terrain 489 m²
|
|
| BERMAX |
- Demande d'information
- Prendre rendez-vous
MAISON À CONSTRUIRE : ceci est une annonce d'une maison neuve à construire.
Chaniers : maison T4 (3 chambres)
En vente : à 37 km de l'océan Atlantique et à deux pas de Saintes, idéalement située dans Chaniers (17610)
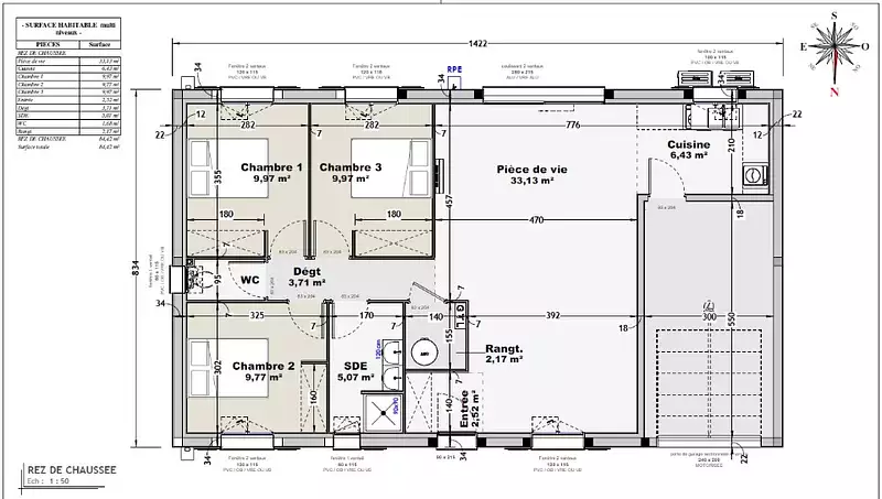
Composée de 3 chambres, séjour/cuisine, salle de bain et garage.
Il est à vendre pour la somme de 189 589 €.
N'hésitez pas à prendre contact avec Pascal DECOU (O6-46-75-16-45) pour toute question sur la maison ou sur les modalités de vente.
Référence : PD2312043_2
Terrain proposé par un partenaire foncier selon disponibilités et autorisation de publicité au prix de 47 350 €. Hors droit d'enregistrement et frais de notaire. Maison proposée, avec un contrat de construction de maison individuelle, dans le cadre de la loi du 19/12/1990, au prix de 142 239 € (Hors branchements et raccordements, papiers peints, peintures, revêtement de sol dans les chambres, qui sont chiffrés dans les travaux qui restent à charge du client. Tarif modifiable sans préavis). Étiquette énergie : A. Différents modèles disponibles pour ce terrain. Assurances et garanties du constructeur comprises (RC professionnelle, décennale, dommage ouvrage).
Les informations sur les risques auxquels ce bien est exposé sont disponibles sur le site Géorisques : www.georisques.gouv.fr
En vente : à 37 km de l'océan Atlantique et à deux pas de Saintes, idéalement située dans Chaniers (17610)
Composée de 3 chambres, séjour/cuisine, salle de bain et garage.
Il est à vendre pour la somme de 189 589 €.
N'hésitez pas à prendre contact avec Pascal DECOU (O6-46-75-16-45) pour toute question sur la maison ou sur les modalités de vente.
Référence : PD2312043_2
Terrain proposé par un partenaire foncier selon disponibilités et autorisation de publicité au prix de 47 350 €. Hors droit d'enregistrement et frais de notaire. Maison proposée, avec un contrat de construction de maison individuelle, dans le cadre de la loi du 19/12/1990, au prix de 142 239 € (Hors branchements et raccordements, papiers peints, peintures, revêtement de sol dans les chambres, qui sont chiffrés dans les travaux qui restent à charge du client. Tarif modifiable sans préavis). Étiquette énergie : A. Différents modèles disponibles pour ce terrain. Assurances et garanties du constructeur comprises (RC professionnelle, décennale, dommage ouvrage).
Les informations sur les risques auxquels ce bien est exposé sont disponibles sur le site Géorisques : www.georisques.gouv.fr
- Prix
-
- Prix total : 189 589 €
- Prix du modèle de maison : 142 239 €
- Prix du terrain : 47 350 €
- Terrain
-
- Surface : 489 m²
- Maison
-
- Surface : 84 m²
- Pièces : 4
- Chambres : 3
- Garage : 1
- Être rappelé par un conseiller
- Demander plus d’infos
- Demande d'information
Chaniers (17610)
Maisons à proximité
Maison neuve, 90 m²
Chaniers (17610)
Chaniers (17610)
Maison de 4 pièces
Maison neuve, 90 m²
Chaniers (17610)
Chaniers (17610)
Maison de 5 pièces
Maison neuve, 90 m²
Chaniers (17610)
Chaniers (17610)
Maison de 4 pièces
Maison neuve, 90 m²
Chaniers (17610)
Chaniers (17610)
Maison de 4 pièces
Maison neuve, 60 m²
Chaniers (17610)
Chaniers (17610)
Maison de 3 pièces
Maison neuve, 60 m²
Chaniers (17610)
Chaniers (17610)
Maison de 3 pièces
Programmes à proximité
Contacter BERMAX pour recevoir plus d'informations
Remplissez le formulaire ci-dessous, vos informations sont transmises directement au constructeur qui vous contactera par email ou par téléphone afin de traiter votre demande. En savoir plus.