Maison neuve, 142 m² - Changé (72560)
515 000 €
Changé (72560)
Proposée par MAINE CONSTRUCTION – 7 pièces - 3 chambres - terrain 1 085 m²
|
|
| Maine Construction |
- Demande d'information
- Prendre rendez-vous
MAISON À CONSTRUIRE : ceci est une annonce d'une maison neuve à construire.
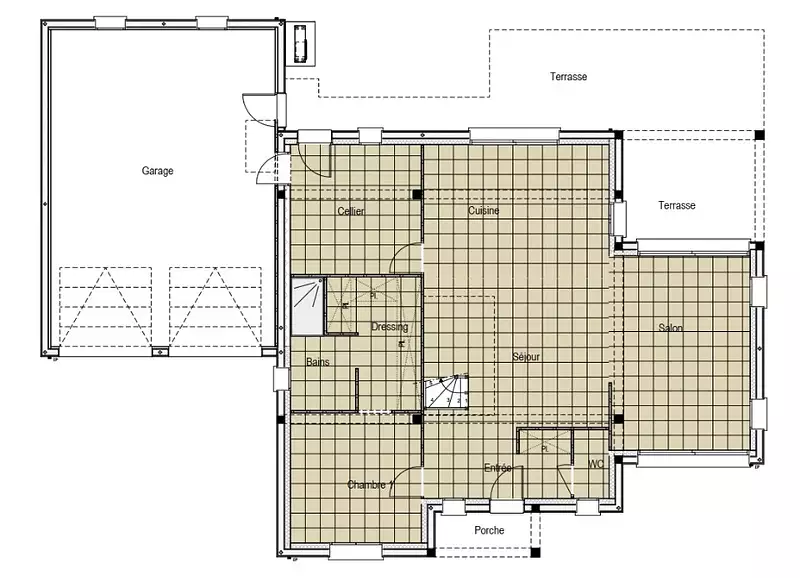
VENTE d'une maison de 7 pièces (142 m²) à Changé
Idéalement située - À vendre à Changé (72560) : maison neuve 7 pièces de 142 m² et de 1 085 m² de terrain. Son intérieur comporte trois chambres, une cuisine et deux salles de bains.
Proche gares, établissements scolaires, tennis, commerces, boulangeries, supermarché, bureau de poste et boucherie-charcuterie. Accès autoroutes A28 et A11 à 7 km. Le Mans à 8 km.
Cette maison de 7 pièces est à vendre pour la somme de 515 000 €.
Prenez contact avec notre agence (François HOUDAYER ) pour tout renseignement sur la maison ou sur les modalités de vente.
Référence : FH2326939_17
Terrain proposé par un partenaire foncier selon disponibilités et autorisation de publicité au prix de 180 000 €. Hors droit d'enregistrement et frais de notaire. Terrain + Maison proposés au prix de 515 000 € (Hors branchements et raccordements, papiers peints, peintures, revêtement de sol dans les chambres. Tarif modifiable sans préavis). Etiquette énergie : A. Différents modèles disponibles pour ce terrain. Assurances et garanties du constructeur (RC professionnelle, décennale, dommage ouvrage, garantie de remboursement de l'acompte, livraison à prix et délai convenu) : HEXAOM Services est enregistré auprès de l'ORIAS en tant que Courtier en financement, Niveau 1, sous le numéro 14001345.
Les informations sur les risques auxquels ce bien est exposé sont disponibles sur le site Géorisques : www.georisques.gouv.fr
Idéalement située - À vendre à Changé (72560) : maison neuve 7 pièces de 142 m² et de 1 085 m² de terrain. Son intérieur comporte trois chambres, une cuisine et deux salles de bains.
Proche gares, établissements scolaires, tennis, commerces, boulangeries, supermarché, bureau de poste et boucherie-charcuterie. Accès autoroutes A28 et A11 à 7 km. Le Mans à 8 km.
Cette maison de 7 pièces est à vendre pour la somme de 515 000 €.
Prenez contact avec notre agence (François HOUDAYER ) pour tout renseignement sur la maison ou sur les modalités de vente.
Référence : FH2326939_17
Terrain proposé par un partenaire foncier selon disponibilités et autorisation de publicité au prix de 180 000 €. Hors droit d'enregistrement et frais de notaire. Terrain + Maison proposés au prix de 515 000 € (Hors branchements et raccordements, papiers peints, peintures, revêtement de sol dans les chambres. Tarif modifiable sans préavis). Etiquette énergie : A. Différents modèles disponibles pour ce terrain. Assurances et garanties du constructeur (RC professionnelle, décennale, dommage ouvrage, garantie de remboursement de l'acompte, livraison à prix et délai convenu) : HEXAOM Services est enregistré auprès de l'ORIAS en tant que Courtier en financement, Niveau 1, sous le numéro 14001345.
Les informations sur les risques auxquels ce bien est exposé sont disponibles sur le site Géorisques : www.georisques.gouv.fr
- Prix
-
- Prix total : 515 000 €
- Prix du modèle de maison : 335 000 €
- Prix du terrain : 180 000 €
- Terrain
-
- Surface : 1 085 m²
- Maison
-
- Surface : 142 m²
- Pièces : 7
- Chambres : 3
- Garage : 1
- Être rappelé par un conseiller
- Demander plus d’infos
- Demande d'information
Changé (72560)
Maisons à proximité
Maison neuve, 128 m²
Changé (72560)
Changé (72560)
Maison de 6 pièces
Maison neuve, 160 m²
Changé (72560)
Changé (72560)
Maison de 7 pièces
Maison neuve, 143 m²
Changé (72560)
Changé (72560)
Maison de 8 pièces
Maison neuve, 160 m²
Changé (72560)
Changé (72560)
Maison de 6 pièces
Maison neuve, 158 m²
Changé (72560)
Changé (72560)
Maison de 9 pièces
Maison neuve, 120 m²
Changé (72560)
Changé (72560)
Maison de 8 pièces
Programmes à proximité
Histoire & Patrimoine Une adresse de caractère au cœur du Vieux-Mans
Le Mans (72000)
Le Mans (72000)
Appartement de 2 pièces
Livraison 3ème trimestre 2025
Résidence étudiante neuve au Mans
Le Mans (72000)
Le Mans (72000)
Appartements de 1 pièce
Livraison 2ème trimestre 2027
LES BOSQUETS TR.1
Le Mans (72000)
Le Mans (72000)
Appartements de 1 à 4 pièces
Livraison 4ème trimestre 2027
Epsilon
Le Mans (72000)
Le Mans (72000)
Appartements de 1 à 3 pièces
Livraison 4ème trimestre 2027
Contacter MAINE CONSTRUCTION pour recevoir plus d'informations
Remplissez le formulaire ci-dessous, vos informations sont transmises directement au constructeur qui vous contactera par email ou par téléphone afin de traiter votre demande. En savoir plus.