Maison neuve, 146 m² - Chambourg-sur-Indre (37310)
299 000 €
Chambourg-sur-Indre (37310)
Proposée par MAISONS STEPHANIE – 5 pièces - 4 chambres - terrain 695 m²
|
|
| MAISONS STEPHANIE |
- Demande d'information
- Prendre rendez-vous
MAISON À CONSTRUIRE : ceci est une annonce d'une maison neuve à construire.
OPPORTUNITE A SAISIR - DEVENEZ PROPRIÉTAIRE DE VOTRE MAISON SUR-MESURE
Découvrez cette demeure conçue et bâtie avec tout le savoir-faire des Maisons de Stéphanie, constructeur reconnu pour ses 30 années d'expérience et son exigence de qualité.
Chaque détail est pensé pour votre confort et vos envies : une architecture élégante, des espaces lumineux et fonctionnels, et la possibilité d'adapter les plans selon votre mode de vie.
Saisissez dès maintenant l'opportunité de faire de cette maison votre nouveau lieu de vie !
📞 Contactez dès maintenant votre conseillère Tiphanie DUMOND des Maisons Stéphanie pour plus d'informations ou pour planifier une visite.
*2.47.48.09.30
N'attendez plus pour démarrer votre projet de construction, rencontrons-nous !
Référence : TD2329174_4
Terrain proposé par un partenaire foncier selon disponibilités et autorisation de publicité au prix de 39 000 €. Hors droit d'enregistrement et frais de notaire. Maison proposée, avec un contrat de construction de maison individuelle, dans le cadre de la loi du 19/12/1990, au prix de 260 000 € (Hors branchements et raccordements, papiers peints, peintures, revêtement de sol dans les chambres, qui sont chiffrés dans les travaux qui restent à charge du client. Tarif modifiable sans préavis). Étiquette énergie : A. Différents modèles disponibles pour ce terrain. Assurances et garanties du constructeur comprises (RC professionnelle, décennale, dommage ouvrage).
Les informations sur les risques auxquels ce bien est exposé sont disponibles sur le site Géorisques : www.georisques.gouv.fr
Découvrez cette demeure conçue et bâtie avec tout le savoir-faire des Maisons de Stéphanie, constructeur reconnu pour ses 30 années d'expérience et son exigence de qualité.
Chaque détail est pensé pour votre confort et vos envies : une architecture élégante, des espaces lumineux et fonctionnels, et la possibilité d'adapter les plans selon votre mode de vie.
Saisissez dès maintenant l'opportunité de faire de cette maison votre nouveau lieu de vie !
📞 Contactez dès maintenant votre conseillère Tiphanie DUMOND des Maisons Stéphanie pour plus d'informations ou pour planifier une visite.
*2.47.48.09.30
N'attendez plus pour démarrer votre projet de construction, rencontrons-nous !
Référence : TD2329174_4
Terrain proposé par un partenaire foncier selon disponibilités et autorisation de publicité au prix de 39 000 €. Hors droit d'enregistrement et frais de notaire. Maison proposée, avec un contrat de construction de maison individuelle, dans le cadre de la loi du 19/12/1990, au prix de 260 000 € (Hors branchements et raccordements, papiers peints, peintures, revêtement de sol dans les chambres, qui sont chiffrés dans les travaux qui restent à charge du client. Tarif modifiable sans préavis). Étiquette énergie : A. Différents modèles disponibles pour ce terrain. Assurances et garanties du constructeur comprises (RC professionnelle, décennale, dommage ouvrage).
Les informations sur les risques auxquels ce bien est exposé sont disponibles sur le site Géorisques : www.georisques.gouv.fr
- Prix
-
- Prix total : 299 000 €
- Prix du modèle de maison : 260 000 €
- Prix du terrain : 39 000 €
- Terrain
-
- Surface : 695 m²
- Maison
-
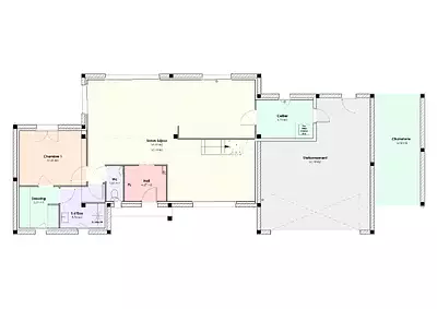
- Surface : 146 m²
- Pièces : 5
- Chambres : 4
- Garage : 1
- Être rappelé par un conseiller
- Demander plus d’infos
- Demande d'information
Chambourg-sur-Indre (37310)
Maisons à proximité
Maison neuve, 90 m²
Chambourg-sur-Indre (37310)
Chambourg-sur-Indre (37310)
Maison de 4 pièces
Maison neuve, 71 m²
Chambourg-sur-Indre (37310)
Chambourg-sur-Indre (37310)
Maison de 3 pièces
Maison neuve, 68 m²
Chambourg-sur-Indre (37310)
Chambourg-sur-Indre (37310)
Maison de 4 pièces
Maison neuve, 165 m²
Chambourg-sur-Indre (37310)
Chambourg-sur-Indre (37310)
Maison de 5 pièces
Maison neuve, 100 m²
Chambourg-sur-Indre (37310)
Chambourg-sur-Indre (37310)
Maison de 4 pièces
Maison neuve, 117 m²
Chambourg-sur-Indre (37310)
Chambourg-sur-Indre (37310)
Maison de 4 pièces
Programmes à proximité
L'Ecrin des Chartreux
Bléré (37150)
Bléré (37150)
Appartements de 2 pièces
Livraison 1er trimestre 2028
Le Domaine des Chartreux
Bléré (37150)
Bléré (37150)
Appartements de 2 à 4 pièces et maison de 3 pièces
Livraison 3ème trimestre 2027
CALICIA
Sorigny (37250)
Sorigny (37250)
Appartements de 1 à 3 pièces
Livraison 1er trimestre 2027
COURTIL MONTLOUIS - MONTLOUIS SUR LOIRE
Montlouis-sur-Loire (37270)
Montlouis-sur-Loire (37270)
Appartements de 2 à 4 pièces
Livraison 4ème trimestre 2026
Contacter MAISONS STEPHANIE pour recevoir plus d'informations
Remplissez le formulaire ci-dessous, vos informations sont transmises directement au constructeur qui vous contactera par email ou par téléphone afin de traiter votre demande. En savoir plus.
Voir tous nos programmes immobiliers neufs à Chambourg-sur-Indre