Maison neuve, 124 m² - Chambly (60230)

416 000 €
Chambly (60230)

Proposée par MAISONS FRANCE CONFORT – 6 pièces - 3 chambres - terrain 477 m²

MAISONS FRANCE CONFORT
MAISONS FRANCE CONFORT
(56 avis)
  • Demande d'information
MAISON À CONSTRUIRE : ceci est une annonce d'une maison neuve à construire.
Concrétisons ensemble votre ptojet de construction sur la commune de NEUILLY EN THELLE
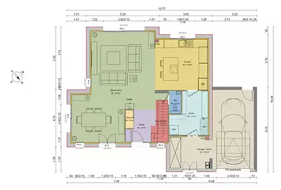
Cette maison offre 124m² habitables , au RDc un espace de vie de 55m², un cellier- buanderie de 7.40m² plus garage / atelier de 23.60 m². A l'étage une suite parentale de 23m² , 2 chambres de 10.50m² , 2sdb un palier de 9m². menuiseries alluminium , PAC air/eau plancher chauffant rdc , radiateurs étage.
Idéalement orienté sud ouest un projet de maison prête à décorée pour un montant de 416000€ , frais annexes et frais de notaire inclus.
Contacter M.AIT de notre agence MAISONS FRANCE CONFORT MOISSELLES au 06 76 76 37 16 / 01 39 91 72 46 pour plus d'informations ou imaginer ensemble un autre projet sur ce terrain.
Référence : LAO2362404_1
Terrain proposé par un partenaire foncier selon disponibilités et autorisation de publicité au prix de 120 000 €. Hors droit d'enregistrement et frais de notaire. Terrain + Maison proposés au prix de 296 000 € (Hors branchements et raccordements, papiers peints, peintures, revêtement de sol dans les chambres. Tarif modifiable sans préavis). Etiquette énergie : A. Différents modèles disponibles pour ce terrain. Assurances et garanties du constructeur (RC professionnelle, décennale, dommage ouvrage, garantie de remboursement de l'acompte, livraison à prix et délai convenu) : https://www.maisons-france-confort.fr/mentions-legales/. HEXAOM Services est enregistré auprès de l'ORIAS en tant que Courtier en financement, Niveau 1, sous le numéro 14001345.

Les informations sur les risques auxquels ce bien est exposé sont disponibles sur le site Géorisques : www.georisques.gouv.fr


Prix
  • Prix total : 416 000 €
  • Prix du modèle de maison : 296 000 €
  • Prix du terrain : 120 000 €

Terrain
  • Surface : 477 m²

Maison
  • Surface : 124 m²
  • Pièces : 6
  • Chambres : 3
  • Garage : 1

  • Être rappelé par un conseiller
  • Demander plus d’infos
  • Demande d'information
Chambly (60230)

Programmes à proximité

Coeur de Bourg
Coeur de Bourg
Saint-Martin-du-Tertre (95270)

Appartements de 2 à 4 pièces
Livraison 4ème trimestre 2027

Domaine du Cèdre
Domaine du Cèdre
Saint-Martin-du-Tertre (95270)

Appartements de 1 à 4 pièces
Livraison 1er trimestre 2028

Le Clos Savart
Le Clos Savart
Viarmes (95270)

Appartements de 2 à 4 pièces
Livraison 4ème trimestre 2027

Résidence Madria
Résidence Madria
Méry-sur-Oise (95540)

Appartements de 2 à 3 pièces et maisons de 5 pièces
Livraison 4ème trimestre 2027

CASTANEA
CASTANEA
Bouffémont (95570)

Appartements de 1 à 3 pièces
Livraison 4ème trimestre 2026

LE MADAILLAN
LE MADAILLAN
Montataire (60160)

Appartements de 2 pièces
Livraison 1er trimestre 2026

Contacter MAISONS FRANCE CONFORT pour recevoir plus d'informations

Remplissez le formulaire ci-dessous, vos informations sont transmises directement au constructeur qui vous contactera par email ou par téléphone afin de traiter votre demande. En savoir plus.

Voir tous nos programmes immobiliers neufs à Chambly